1-RU-110672-1.23

Руководство по эксплуатации

Введение

Настоящее Руководство по эксплуатации предназначено для ознакомления обслуживающего персонала с устройством, принципом действия, конструкцией, технической эксплуатацией и обслуживанием устройства управляющего многофункционального ПР205, в дальнейшем по тексту именуемых «прибор» или «ПР205».

Подключение, настройка и техобслуживание прибора должны производиться только квалифицированными специалистами после прочтения настоящего руководства по эксплуатации.

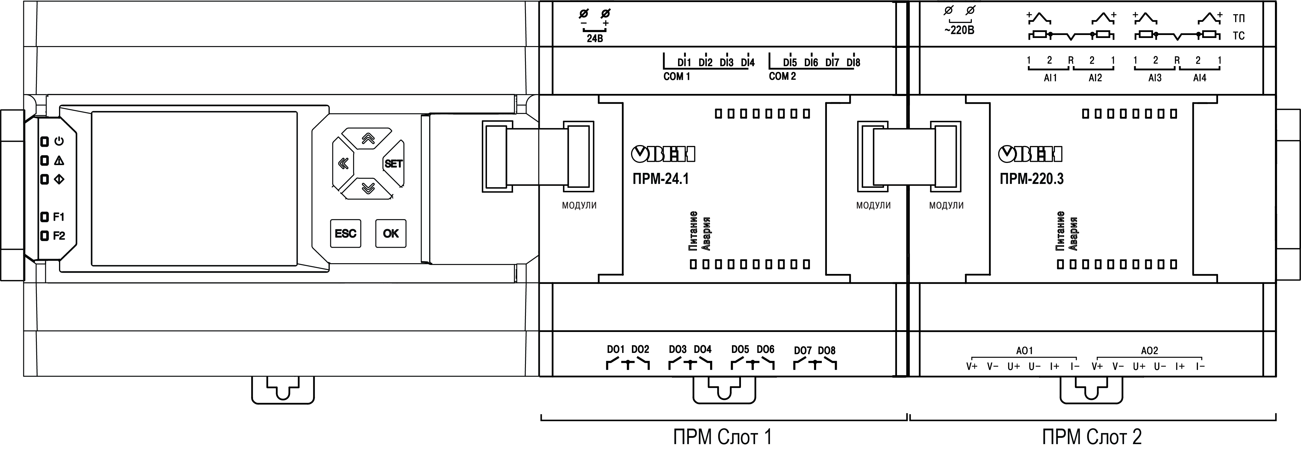
Функциональные возможности прибора могут быть расширены с помощью модулей расширения (подключаются к интерфейсу модульной шины с помощью кабеля, см. раздел):

  • ПРМ-X.1 – модуль дискретного ввода-вывода;

  • ПРМ-X.2 – комбинированный модуль расширения входов-выходов;

  • ПРМ-X.3 – модуль аналогового ввода-вывода;

  • ПРМ-X.4 – модуль дискретного ввода;

  • ПРМ-X.5 – модуль дискретного вывода;

  • ПРМ-X.6 – модуль дискретного ввода-вывода.

Прибор изготавливается в различных модификациях, указанных в коде полного условного обозначения:

Graphic
Примечание

Расшифровка буквенных обозначений приведена в таблице.

Пример наименования при заказе: ПР205-24.1211.06.2.0

Приведенное условное обозначение указывает, что изготовлению и поставке подлежит устройство управляющее многофункциональное ПР205, работающее при номинальном напряжении питания 24 В постоянного или переменного тока, оснащенное:

  • IPS ЖКИ дисплеем и шестью кнопками;

  • шестью дискретными входами для сигналов 24 В постоянного тока;
  • четырьмя универсальными входами для измерения аналоговых сигналов 0…10 В, 4…20 мА, 0…300 кОм и термосопротивлений;
  • двумя дискретными входами для сигналов с частотой 100 кГц;

  • 6 дискретными выходами типа электромагнитное реле;
  • двумя транзисторными выходами;

  • тремя универсальными аналоговыми выходами;
  • двумя интерфейсами RS-485;
  • одним интерфейсом Ethernet;

  • без предустановленного алгоритма.

Термины и аббревиатуры

  • АЦП – аналого-цифровой преобразователь.

  • Выходной элемент (ВЭ) – элемент схемы прибора, служащий для подключения исполнительных механизмов или коммутации внешнего управляющего сигнала.

  • Исполнительный механизм (ИМ) – внешнее устройство, функционирующее под управлением прибора.

  • ОЗУ – оперативное запоминающее устройство, оперативная память.

  • ПЗУ – постоянное запоминающее устройство, энергонезависимая память.

  • ПК – персональный компьютер.

  • ПО – программное обеспечение.

  • Пользовательская программа – программа, созданная в OwenLogic.

  • ТС – термопреобразователь сопротивления.

  • ШИМ – широтно-импульсная модуляция.

  • DNS (Domain Name System) – компьютерная распределенная система для получения информации о доменах.

  • Modbus – открытый протокол обмена по сети RS-485, разработан компанией ModiCon, в настоящий момент поддерживается независимой организацией Modbus-IDA (www.modbus.org).

  • Modbus TCP – протокол Modbus, адаптированный для передачи информации по протоколу TCP.

  • NТС-датчики (Negative Temperature Coefficient – отрицательный температурный коэффициент) – термисторы с отрицательным температурным коэффициентом сопротивления.

  • OwenCloud – облачный сервис компании «ОВЕН». Применяется для удаленного мониторинга, управления и хранения архивов данных приборов систем автомацизации. Доступ к сервису возможен с помощью web-браузера или из мобильного приложения.

  • OWEN Configurator – ПО для настройки устройств компании «ОВЕН».

  • OwenLogic – специализированная среда программирования приборов «ОВЕН» на основе визуального языка графических диаграмм FBD (Function Block Diagram).

  • РТС-датчики (Positive Temperature Coefficient – положительный температурный коэффициент) – термисторы с положительным температурным коэффициентом сопротивления.

  • Retain-память – энергонезависимая память для хранения значений Retain-переменных пользовательской программы

    .
  • Retain-переменные – переменные пользовательской программы, значение которых сохраняется в случае выключения питания прибора.

  • UTC (Coordinated Universal Time) – всемирное координированное время, стандарт времени, принятый на Земле. От UTC отсчитываются часовые пояса. UTC заменил устаревшее время по Гринвичу (GMT).

Назначение и функции

Прибор предназначен для решения типовых задач в системах вентиляции, отопления, сельском хозяйстве и системах автоматизации зданий.

Прибор программируется в OwenLogic.

Прибор выпускается согласно ТУ 26.51.70-044-46526536-2023.

Функции прибора:

  • работа по программе, записанной в память;
  • отображение данных и мнемосхем на ЖКИ;

  • ввод и редактирование данных с помощью кнопок на лицевой панели;

  • работа в сети RS-485 по протоколам Modbus RTU/Modbus ASCII в режиме Master или Slave;
  • работа в сети Ethernet по протоколу Modbus TCP в режиме Slave;
  • работа с удаленным сервисом OwenCloud без дополнительного шлюза;
  • обработка входных сигналов от датчиков;

  • управление подключенными устройствами с помощью дискретных или аналоговых сигналов.

Технические характеристики и условия эксплуатации

Технические характеристики

Модификации прибора
МодификацияТип питанияВИП*ВходыВыходыКоличество RS-485Ethernet
ДискретныеАналоговыеДискретныеАналоговые

ПР205-24.1211.02.0.0

=24 В/~24 В

6 Д, 2 ДС

4 ДАТ

8 Р

3 АУ

+

ПР205-24.1211.02.2.0

=24 В/~24 В

6 Д, 2 ДС

4 ДАТ

8 Р

3 АУ

2+

ПР205-24.1211.06.0.0

=24 В/~24 В

6 Д, 2 ДС

4 ДАТ

6 Р,

2 КТ

3 АУ

+

ПР205-24.1211.06.2.0

=24 В/~24 В

6 Д, 2 ДС

4 ДАТ

6 Р,

2 КТ

3 АУ

2+

ПР205-230.1211.22.0.0

~230 В+

6 Д, 2 ДС

4 ДАТ

8 Р

3 АУ

2+

ПР205-230.1211.22.2.0

~230 В+

6 Д, 2 ДС

4 ДАТ

8 Р

3 АУ

+

ПР205-230.1211.26.0.0

~230 В+

6 Д, 2 ДС

4 ДАТ

6 Р,

2 КТ

3 АУ

+

ПР205-230.1211.26.2.0

~230 В+

6 Д, 2 ДС

4 ДАТ

6 Р,

2 КТ

3 АУ

2+
Примечание

Расшифровка буквенных обозначений приведена в таблице.

* Встроенный источник питания.

Сводная таблица характеристик
ТипТаблица характеристик
Индикация и элементы управлениятаблица
Характеристики приборов с питанием 230 Втаблица
Характеристики ВИП таблица
Характеристики приборов с питанием 24 Втаблица
Дискретный вход для сигналов =24 В (вход типа «Д»)таблица
Быстрый дискретный вход для сигналов =24 В (вход типа «ДС»)таблица
Универсальный аналоговый вход (вход типа «ДАТ»)таблица
Дискретный выход типа «электромагнитное реле» (выход типа «Р»)таблица
Дискретный выход типа «транзистор n-p-n типа» (выход типа «КТ»)таблица
Универсальный аналоговый выход типа «ток 4...20 мА/напряжение 0...10 В» (выход типа «АУ»)таблица
Характеристики приборов с питанием 230 В

Наименование

Значение

Диапазон переменного напряжения питания

~90…264 В (номинальное ~230 В, при 50 Гц)

Диапазон постоянного напряжения питания

=127...373 В (номинальное =230 В)

Гальваническая развязка

Есть

Встроенный источник питания 24 ВЕсть

Электрическая прочность изоляции между входом питания и другими цепями

2300 В

Потребляемая мощность, не более

15 ВА

Характеристики встроенного источника питания 24 В

Наименование

Значение

Выходное напряжение (номинальное)

=21,6…26,4 В (=24 В)

Выходной ток

0…100 мА

Электрическая прочность изоляции относительно других цепей прибора

2300 В

Характеристики приборов с питанием 24 В

Наименование

Значение

Диапазон постоянного напряжения питания

=20…36 В (номинальное 24 В);

Диапазон переменного напряжения питания

~20...27 В (номинальное ~24 В, при 50 Гц)

Защита защита от подключения питания неправильной полярностиЕсть

Электрическая прочность изоляции между входом питания и другими цепями

510 В

Потребляемая мощность, не более

8 Вт

Общие характеристики прибора

Наименование

Значение

Вычислительные ресурсы и дополнительное оборудование

Минимальное время цикла (зависит от сложности программы)

1 мс

Объем памяти для сетевых переменных:

  режим Slave

2040 байт

  режим Master384 байт

Модули расширения

Серия ПРМ

Количество подключаемых модулей расширения, не более

2

Встроенные часы реального времени

Есть

Точность работы встроенных часов прибора при +25 °С

± 3 с/сутки

Время автономной работы часов от сменного элемента питания

5 лет

Элемент питания встроенных часов реального времени

CR2032

Flash-память (архив)
Количество циклов записи и стирания100 000
Максимальный размер файла архива2048 байт
Максимальное количество файлов архива50 шт.
Минимальный период записи архива30 с

Программирование и конфигурирование

Интерфейсы программирования и конфигурирования

USB, Ethernet

Среда программирования

OwenLogic
ПО для конфигурированияOWEN Configurator

Объем Retain-памяти

1024 байт

Объем ПЗУ

64 кб

Объем ОЗУ

320 кб

Объем памяти для программы пользователя128 кб

Интерфейсы связи

Типы сетевых интерфейсов

RS-485 и Ethernet

Интерфейс Ethernet

Протокол связи

Modbus TCP

Режим работы

Master/Slave

Скорость передачи данных по Ethernet10/100 Мбит/с

Электрическая прочность изоляции между Ethernet и другими цепями

510 В

Интерфейс RS-485

Протокол связи

Modbus-RTU/Modbus ASCII

Режим работы

Master/Slave

Скорость передачи данных по RS-485

9600, 14400, 19200, 38400, 57600, 115200 бит/с

Максимальное количество интерфейсов RS-4852

Электрическая прочность изоляции между RS-485 и другими цепями

1500 В

Работа с облачным сервисом
Работа с OwenCloudПоддерживается
Интерфейс взаимодействия с облачным сервисомEthernet

Конструкция

Тип корпуса

Для крепления на DIN-рейку (35 мм)

Габаритные размеры:

123 × 96 × 62 мм

Степень защиты корпуса по ГОСТ 14254-2015

IP54

Масса прибора, не более (для всех вариантов исполнений)

0,6 кг

Средний срок службы

8 лет

Параметры элементов индикации и управления

Параметры элементов индикации и управления
ПараметрЗначение
Дисплей
Тип дисплея (тип матрицы)Графический (IPS LCD)
Тип подсветкиCветодиодная
Количество отображаемых цветов65535
Диагональ2,4“
Рабочая зона дисплея49 × 36,7 мм
Разрешение320 × 240 пикселей
Яркость250 кд/м2
Контрастность800:1
Угол обзора слева/справа/сверху/снизу80/80/80/80°
Время наработки на отказ подсветки, не менее50 000 часов при температуре 25 °C
Управление временем работы подсветкиЕсть*
Поддерживаемые языкиРусский, английский
Светодиодные индикаторы
Описание светодиодовсм. раздел
Кнопки
Описание механических кнопоксм. раздел
Примечание
* Можно выставить таймер отключения (см. раздел). Включается нажатием на любую кнопку.

Характеристики входов

Характеристики дискретных входов типа «Д»

Наименование

Значение

Для работы с сигналами =24 В
Защита от переполюсовки входного сигналаЕсть

Напряжение «логической единицы»

8,5…40 В

Ток «логической единицы»

2…15 мА

Напряжение «логического нуля»

минус 3…плюс 5 В

Ток «логического нуля»

0…15 мА

Минимальная длительность импульса, воспринимаемая дискретным входом

5 мс

Максимальная задержка переключения из «лог. 0» в «лог. 1» и из «лог. 1» в «лог.0»

30 мс

Максимальная частота следования импульсов (зависит от времени цикла программы)

150 Гц

Гальваническая развязка

Гальваническая развязка

Групповая, по 4 входа

Электрическая прочность изоляции относительно других цепей прибора

510 В

Характеристики входов типа «ДС» для работы с сигналами =24 В

Наименование

Значение

Напряжение «логической единицы»

15…30 В

Ток «логической единицы»

2…15 мА

Напряжение «логического нуля»

минус 3…плюс 5 В

Ток «логического нуля»

0…15 мА

Минимальная длительность импульса, воспринимаемая дискретным входом

5 мкс

Максимальная частота сигнала, воспринимаемая дискретным входом

100 кГц

Гальваническая развязка

Гальваническая развязка

Групповая

Электрическая прочность изоляции относительно других цепей прибора

510 В

Характеристики дискретно-аналоговых входов типа «ДАТ»

Наименование

Значение

Разрешающая способность АЦП 12 бит12 бит

Период обновления результатов измерения всех каналов, мс, не более

1

Режим аналогового входа 1 (сигналы тока и напряжения)

Тип измеряемых сигналов, униполярный

0…10 В,

4…20 мА

Предел основной приведенной погрешности, не более

±0,5 %

Дополнительная приведенная погрешность, вызванная изменением температуры окружающей среды в пределах рабочего диапазона, на каждые 10 градусов

0,5 от основной

Предельное положительное входное напряжение, для режима дискретного входа и датчика 0…10 В

30 В

Входное сопротивление для режима 0…10 В, не менее

10 кОм

Режим аналогового входа 2 (сопротивление и термисторы)
Диапазон измерения

0...300 кОм

Значение единицы младшего разряда, не более

1 °С

Предел основной приведенной погрешности для сопротивлений 0...150 кОм, не более

± 1,0 %

Предел основной приведенной погрешности для сопротивлений 150...300 кОм, не более

± 2,0 %

Предел основной приведенной погрешности для ТС и датчиков NTC и PTC, не более

± 1,5 %

Дополнительная приведенная погрешность, вызванная изменением температуры окружающей среды в пределах рабочего диапазона, на каждые 10 градусов

0,5 от основной

Режим дискретного входа

Порог переключения входа из состояния «логическая единица» в состояние «логический ноль»1...8 В (устанавливается в OwenLogic)
Порог переключения входа из состояния «логический ноль» в состояние «логическая единица»2...9 В (устанавливается в OwenLogic)
Входной ток в режиме дискретного входа2…15 мА
Минимальная длительность импульса, воспринимаемая дискретным входом (постоянный ток)15 мс
Максимальная частота сигнала, воспринимаемая в режиме дискретного входа40 Гц
Гальваническая развязка

Гальваническая развязка

Нет
Примечание
При воздействии помех основная приведенная погрешность может увеличиваться.

Поддерживаемые датчики и сигналы

Предупреждение
Перед подключением датчика из таблицы ниже следует настроить в OwenLogic тип сигнала, подаваемый на вход.
Датчики и сигналы, подключаемые к входу типа «ДАТ»

Наименование

Диапазон измерений

Сигнал постоянного напряжения0...10 В
Сигнал постоянного тока4...20 мА
Резистивный сигнал*0...300 кОм
Примечание
*С резистивным сигналом прибор работает как омметр, диапазон которого пользователь не может задать.
Список поддерживаемых ТС входом типа «ДАТ»

Наименование датчика по ГОСТ 6651–2009

Наименование датчика в OwenLogic

Диапазон температур

Pt 500 (α = 0,00385 °С−1)*

Pt500 (а = 0,00385)

–200…+850 °С

500П (α = 0,00391 °С−1)

500П (а = 0,00391)

–200…+850 °С

Cu 500 (α = 0,00426 °С−1)

Cu500 (а = 0,00426)

–50...+200 °С

500М (α = 0,00428 °С−1)

500М (а = 0,00428)

–180...+200 °С

Ni500 (α = 0,00617 °С−1)

Ni 500 (а = 0,00617)

–60...+180 °С

Cu 1000 (α = 0,00426 °С−1)

Cu1000 (а = 0,00426)

–50...+200 °С

1000М (α = 0,00428 °С−1)

1000М (а = 0,00428)

–180...+200 °С

Pt 1000 (α = 0,00385 °С−1)

Pt1000 (а = 0,00385)

–200...+850 °С

1000П (α = 0,00391 °С−1)

1000П (а = 0,00391)

–200...+850 °С

Ni 1000 (α = 0,00617 °С−1)

Ni 1000 (а = 0,00617)

–60...+180 °С

Примечание
*  Коэффициент, определяемый по формуле Graphic, где R100, R0 — значения сопротивления термопреобразователя сопротивления по номинальной статической характеристике, при 100 и 0 °С соответственно и округляемый до пятого знака после запятой.
Поддерживаемые термисторы NTC входом типа «ДАТ»

Наименование датчика

Наименование датчика в OwenLogic

Диапазон температур

Серия B57861S, характеристика № 1008, R25 = 2 кОм

NTC1008, R25 = 2 кОм, В25/100 = 3560

–55…+100 °С

Серия B57861S, характеристика № 8016, R25 = 3 кОм

NTC8016, R25 = 3 кОм, В25/100 = 3988

–55…+125 °С

Серия B57861S, характеристика № 8016, R25 = 5 кОм

NTC8016, R25 = 5 кОм, В25/100 = 3988

–35…+140 °С

Серия B57861S, характеристика № 8016, R25 = 10 кОм

NTC8016, R25 = 10 кОм, В25/100 = 3988

–35…+155 °С

Серия B57861S, характеристика № 8018, R25 = 30 кОм

NTC8018, R25 = 30 кОм, В25/100 = 3964

–20…+155 °С

Серия B57861S, характеристика № 2901, R25 = 50 кОм

NTC2901, R25 = 50 кОм, В25/100 = 3760

–10…+155 °С

NTC3435, 10 кОм

NTC3435, R25 = 10 кОм, В25/85 = 3435

–40…+105 °С

NTC3977, 10 кОм

NTC3977, R25 = 10 кОм, В25/85 = 3977

–40…+125 °С

Поддерживаемые термисторы РТС входом типа «ДАТ»

Наименование датчика

Наименование датчика в OwenLogic

Диапазон температур

KTY82-110

KTY82-110

–55…+150 °С

KTY82-120

KTY82-120

–55…+150 °С

KTY82-121

KTY82-121

–55…+150 °С

KTY82-122

KTY82-122

–55…+150 °С

KTY82-150

KTY82-150

–55…+150 °С

KTY82-151

KTY82-151

–55…+150 °С

KTY82-152

KTY82-152

–55…+150 °С

Характеристики выходов

Характеристики дискретных выходов типа «Р»

Наименование

Значение

Тип выходного устройства

Электромагнитное реле (нормально разомкнутые контакты)

Электрическая прочность изоляции между выходом и другими цепями

  • 2300 В

Коммутируемое напряжение в нагрузке:

  • для цепи постоянного тока, не более

30 В (резистивная нагрузка)

  • для цепи переменного тока, не более

250 В (резистивная нагрузка)

Допустимый ток нагрузки, не более

  • 5 А при напряжении не более 250 В переменного тока и cos(φ) > 0,95;

  • 3 А при напряжении не более 30 В постоянного тока

Допустимый ток нагрузки, не менее

10 мА (при 5 В постоянного тока)

Электрический ресурс реле, не менее

  • 200000 циклов: 5 А при 250 В переменного тока;

  • 50000 циклов: 7 А при 250 В переменного тока;

  • 100000 циклов: 3 А, 30 В постоянного тока,

  • резистивная нагрузка

Характеристики транзисторных выходов типа «КТ»

Наименование

Значение

Тип выходного устройства

Транзистор n-p-n-типа

Тип коммутируемого сигнала

Постоянный ток

Защита от перегрузки и короткого замыкания

Есть

Тепловая защита

Есть

Гальваническая изоляция

Нет

Коммутируемое напряжение в нагрузке, постоянного тока, не более

40 В

Допустимый ток нагрузки, не более

0,5 А

Характеристики универсальных аналоговых выходов типа «АУ»
НаименованиеЗначение

Тип аналогового выхода

Универсальный

(ток или напряжение)

Разрядность ЦАП

12 бит

Напряжение питания15...30 В

Диапазон генерации тока

4…20 мА

Диапазон генерации напряжения

0…10 В

Сопротивление нагрузки для режима:
  4...20 мА, не более600 Ом
  0...10 В, не менее600 Ом

Предел основной приведенной погрешности

± 0,5 %

Дополнительная приведенная погрешность, вызванная изменением температуры окружающей среды в пределах рабочего диапазона, на каждые 10 градусов для режима:

0,5 от основной

Гальваническая изоляция

Нет

Условия эксплуатации

Прибор предназначен для эксплуатации в следующих условиях:

  • закрытые взрывобезопасные помещения без агрессивных паров и газов;
  • температура окружающего воздуха от минус 20 до плюс 70 °С;
  • верхний предел относительной влажности воздуха от 30 до 98 % без конденсации влаги;
  • допустимая степень загрязнения 1 (несущественные загрязнения или наличие только сухих непроводящих загрязнений);
  • атмосферное давление от 84,0 до 106,7 кПа.

По устойчивости к климатическим воздействиям во время эксплуатации прибор соответствует группе исполнения В4 по ГОСТ Р 52931–2008.

По устойчивости к синусоидальным вибрациям во время эксплуатации прибор соответствует группе исполнения N2 по ГОСТ Р 52931–2008 (частота вибрации от 10 до 55 Гц).

По устойчивости к воздействию атмосферного давления прибор относится к группе Р1 по ГОСТ Р 52931–2008.

Прибор отвечает требованиям по устойчивости к воздействию помех в соответствии с ГОСТ IEC 61131-2-2012.

По уровню излучения радиопомех (помехоэмиссии) прибор соответствует ГОСТ 30804.6.3.

Прибор устойчив к прерываниям, провалам и выбросам напряжения питания для переменного тока в соответствии с требованиями ГОСТ IEC 61131-2-2012.

Меры безопасности

По способу защиты обслуживающего персонала от поражения электрическим током ПР205-230.Х относится к классу II, а ПР205-24.Х к классу III ГОСТ IEC 61131-2-2012.

Во время эксплуатации и технического обслуживания прибора следует соблюдать требования ГОСТ 12.3.019–80, «Правил технической эксплуатации электроустановок потребителей электрической энергии» и «Правил охраны труда при эксплуатации электроустановок».

Во время эксплуатации прибора открытые контакты клеммника находятся под опасным для жизни напряжением. Прибор следует устанавливать в специализированных шкафах, доступных только квалифицированным специалистам.

Любые подключения к прибору и работы по его техническому обслуживанию следует производить только при отключенном питании прибора и подключенных к нему устройств.

Не допускается попадание влаги на контакты выходного разъема и внутренние электроэлементы прибора. Прибор запрещено использовать в агрессивных средах с содержанием в атмосфере кислот, щелочей, масел и т. п.

Настройка и программирование

Ввод в эксплуатацию

Для ввода в эксплуатацию прибора следует:

  1. Соединить ПК и прибор с помощью USB кабеля.

  2. Подсоединить съемный клеммник к источнику питания.

    Предупреждение

    Перед подачей питания на ПР205-230.Х следует проверить уровень напряжения питания:

    • если напряжение ниже 90 В, то прибор прекращает функционировать, но не выходит из строя, поэтому не гарантируется его работа;

    • если напряжение выше 264 В, то прибор может выйти из строя.

    Перед подачей питания постоянного тока на ПР205-24.Х следует проверить правильность подключения напряжения питания и его уровень:

    • если напряжение ниже 18 В, то прибор прекращает функционировать, но не выходит из строя, поэтому не гарантируется его работа;
    • если напряжение выше 36 В, то прибор может выйти из строя.

    Перед подачей питания переменного тока на ПР205-24.Х следует проверить правильность подключения напряжения питания и его уровень:

    • если напряжение ниже 20,4 В, то прибор прекращает функционировать, но не выходит из строя, поэтому не гарантируется его работа;
    • если напряжение выше 26,4 В, то прибор может выйти из строя.
  3. Съемный клеммник подключить к прибору.

    Предупреждение

    В случае изменения температуры окружающего воздуха с низкой на высокую в приборе возможно образование конденсата. Чтобы избежать выхода прибора из строя, рекомендуется выдержать прибор в выключенном состоянии не менее 1 часа.

  4. Подать питание на прибор.

  5. Убедиться в отсутствии ошибок (см. раздел).

  6. Запустить OwenLogic или OWEN Configurator и настроить время/дату.

  7. Снять питание и отключить провод USB от прибора.

  8. Подключить провод USB и подать питание. Проверить время/дату. В случае сброса часов заменить батарейку (см. раздел).

  9. Создать пользовательскую программу OwenLogic и записать ее в память прибора. Пользовательская программа записывается в энергонезависимую память прибора и запускается после включения питания или перезагрузки прибора.

    Примечание
    Записать в память прибора пользовательскую программу можно с помощью специально созданного исполняемого файла (см. Мастер тиражирования в справке OwenLogic).
  10. Снять питание.

  11. Подсоединить линии связи «прибор – устройства» к съемным клеммникам.

  12. Съемные части клеммников линий связи «прибор – устройства» подключить к прибору (см. Приложение Описание клеммников).

Примечание
Выполнение программы пользователя при возникновении сбоев, можно остановить. Для для остановки программы пользователя следует переключатель Работа/Стоп перевести в положение Стоп (см. раздел).

Настройка входов

Настройка универсальных входов

Меню настройки универсальных входов расположено в OwenLogic во вкладке Прибор/Настройка прибора (см. рисунок ниже).

Graphic
Настройка режима работы входа
Graphic
Меню настройки аналогового режима входа
Graphic
Настройки дискретного режима входа
Параметры универсального входа
НазваниеОписание

Режим работы входа

Выбор режима работы универсального входа: аналоговый или дискретный
Настройки режима “Аналоговый”

Тип датчика

Выбор типа входного сигнала:
  • датчики с выходным сигналом сопротивления в диапазоне от 0 до 300 кОм;

  • датчики с выходным сигналом тока в диапазоне от 4 до 20 мА;

  • датчики с выходным сигналом напряжения в диапазоне от 0 до 10 В;

  • датчики ТС и NTC/PTC

Постоянная времени фильтра

Постоянная времени фильтрации встроенного сглаживающего цифрового фильтра. Задает период обработки входного сигнала. Увеличение значения параметра улучшает помехозащищенность канала, но одновременно увеличивает его инерционность, т. е. реакция прибора на быстрые изменения входной величины замедляется

Нижняя граница измерения

Минимальный уровень измеренного сигнала

Верхняя граница измерения

Максимальный уровень измеренного сигнала
Настройки режима “Дискретный”
Фильтр антидребезгаЗадает значение встроенного дискретного фильтра, который указывает период контроля входного сигнала. Увеличение значения параметра улучшает помехозащищенность канала, но одновременно увеличивает его инерционность, т. е. реакция прибора на быстрые изменения входной величины замедляется
Уровень логического нуляЗадает верхнюю границу определения «логического нуля»
Уровень логической единицыЗадает нижнюю границу определения «логической единицы»
Работа универсального входа в аналоговом режиме

Для измерения токового сигнала 4...20 мА в прибор встроен шунтирующий резистор с номинальным сопротивлением 121 Ом для каждого канала. В приборе масштабируются шкалы измерения для сигналов «0…10 В» и «4…20 мА», после чего контролируемые физические величины отображаются непосредственно в единицах их измерения (атмосферах (кг/см2), кПа и т. д.).

Пример

Используется датчик с выходным током 4…20 мА, контролирующий давление в диапазоне 0…25 атм, в параметре «нижняя граница измерения» задается значение «0,00», а в параметре «верхняя граница измерения» — значение «25,00» (см. рисунок). Теперь значения на аналоговом входе будут измеряться в атмосферах.

Graphic
Пример задания диапазона измерения

Значения в приборе представлены в абсолютном виде (float32). Сопротивление измеряется по двухпроводной схеме, поэтому во время подключения датчиков сопротивление проводов вносит дополнительную погрешность измерения. Размер дополнительной погрешности зависит от длины и типа проводов подключаемого датчика. Коррекцию дополнительной погрешности следует предусмотреть в пользовательской программе.

Работа универсального входа в дискретном режиме

Универсальный вход работает в режиме компаратора. Минимальный уровень «логического нуля» — 0 В, максимальный уровень «логической единицы» — 30 В (см. рисунок).

Graphic
Работа универсального входа в дискретном режиме

Чтобы избежать неоднозначности определения состояния входа, следует устанавливать параметр «Уровень логической единицы» больше параметра «Уровень логического нуля» не менее, чем на 0,5 В.

Если входное напряжение попадает в диапазон dU, то состояние входа не меняется. Состояние входа изменится:

  • с «0» на «1» только в случае достижения входным напряжением «Уровень логической единицы»;

  • с «1» на «0» только в случае достижения входным напряжением «Уровень логического нуля».

Настройка дискретных входов

Graphic
Настройка инверсии дискретных входов
Параметр состояния дискретных входов
ПараметрОписание
ИнверсияПрименить инвертирование к состоянию DI. Битовая маска, расположение битов little endian
Примечание
Для подписи на скриншоте: 000000 = 0b, 111111 = 111111b
Graphic
Настройка фильтра дискретного входа
Настройки дискретных входов
НастройкаОписание
Фильтр андидребезга

Задает значение сглаживающего фильтра дребезга контактов. Увеличение значения параметра улучшает помехозащищенность канала, но одновременно увеличивает его инерционность, т. е. реакция прибора на быстрые изменения входной величины замедляется

Настройка быстрых дискретных входов

Graphic
Настройки быстрых дискретных входов
Параметр состояния быстрых дискретных входов
ПараметрОписание
Состояние

Битовая маска, расположение битов little endian.

Примечание
Для подписи на скриншоте: 0000 = 0b, 1111 = 1111b
ИнверсияПрименить инвертирование к состоянию FDI. Битовая маска, расположение битов little endian
Graphic
Настройки режима быстрых дискретных входов
Описание настроек быстрых дискретных входов
ПараметрЗначениеОписание
Режим работы

Дискретный вход

Включен режим определения логического уровня на входе

Подсчет импульсов

Включен режим счетчика импульсов, поступающих на вход

Энкодер

Включен режим обработки сигналов энкодера

Возможные значения:

 0 – дискретный вход

 1 – подсчет импульсов

 2 - энкодер

Фильтр антидребезгаНастройка задействуется в режиме “Дискретный вход”
Фронт охвата импульса

Восходящий

Счетчик срабатывает по восходящему фронту

Спадающий

Счетчик срабатывает по нисходящему фронту

Возможные значения:

 0 – восходящий

 1 – спадающий

Сброс значения счетчика импульсов

Сбросить

Обнуление счетчика будет произведено в течение 10 мс

Примечание

Если счетчик переполняется, то соответствующий регистр обнуляется автоматически.

Не сбрасывать

Счетчик не обнуляется

Возможные значения:

 0 – не сбрасывать

 1 – сбросить

Внимание
Для работы с сигналами частотой более 40 Гц при скважности 0,5 и менее не следует включать подавление дребезга контактов, так как полезный сигнал будет принят за дребезг и пропущен.
Примечание
Счетчики входов являются энергонезависимыми, их значения сохраняются после перезагрузки прибора.

К прибору можно подключать двухканальные энкодеры (без Z канала). Максимальная частота сигналов с энкодера – 100 кГц. Для каждого входа задействован 32-разрядный регистр, в котором находится накопленное количество импульсов с учетом направления вращения после обнуления, зафиксированное энкодером. Если после обнуления направление вращения производится в обратную сторону, то счет начинается с максимального и уменьшается на количество накопленных импульсов.

Настройка программируемых светодиодов F1 и F2

К состоянию пользовательских светодиодов можно привязать переменную и управлять ей из программы.

Graphic
Состояние программируемых светодиодов F1 и F2
Параметр состояния пользовательских светодиодов
ПараметрОписание
Состояние

Битовая маска, расположение битов little endian.

Примечание
Для подписи на скриншоте: 00 = 0b, 11 = 11b

Настройка параметров архива

Graphic
Настройка параметров архива

Настройка параметров архива
ПараметрОписание
Период архивированияВременной отрезок сохранения в архив
Количество архивовКоличество файлов архива
Размер архиваРазмер файла архива

Настройка выходов

Настройка дискретных выходов

Graphic
Состояние дискретных выходов

Настройка безопасного состояния дискретных выходов

Для каждого дискретного выхода прибора и подключенного модуля расширения возможна установка безопасного состояния.

Graphic
Настройка безопасного состояния дискретных выходов
Настройка безопасного состояния дискретных выходов
ПараметрОписание
Настройка безопасного состояния выхода

Выход прибора переходит в безопасное состояние, если в течение времени тайм-аута отсутствуют команды от Мастера сети. Возможные значения:

  • Без изменений;

  • 0 — выход переводится в состояние «разомкнут»;

  • 1 — выход переводится в состояние «замкнут»

Graphic
Настройка безопасного состояния дискретных выходов ПРМ
Настройка безопасного состояния ВЭ ПРМ
ПараметрОписание
Настройка безопасного состояния выхода

Параметр позволяет переключить состояние выходов модуля в случае потери связи с ним. Возможные значения:

  • Оставить без изменений;

  • Установить значение «0» — выход переводится в состояние «разомкнут»;

  • Установить значение «1» — выход переводится в состояние «замкнут»

Настройка аналоговых выходов типа «АУ»

Graphic
Настройка универсальных аналоговых выходов
Настройка аналоговых выходов типа «АУ»
ПараметрОписание
Вид сигналаОпределяет тип выходного сигнала. Возможные значения:
  • Выкл. — выход не используется;

  • Напряжение 0...10 В;

  • Ток 4...20 мА

Возможные значения:

 0 – выкл.

 1 – 0…10 В

 2 – 4…20 мА

Состояние

Диагностический параметр, доступный только для чтения. Возможные значения:

 0 – канал отключен

 1 – норма

 2 – отсутствие связи

 3 – авария

 4 – отсутствие питания

 5 – отсутствие нагрузки

Безопасное состояниеВыход переходит в безопасное состояние, если в течение времени тайм-аута отсутствуют команды от Мастера сети. На выходе устанавливается значение параметра «Безопасное состояние» в диапазоне от 0 до 1

Для управления выходным элементом аналогового типа следует подавать значение в формате «с плавающей запятой» (float32) в диапазоне от 0,0 до 1,0.

Пример
Во время подачи на выход значения «0,5», выходной ток будет равен 12 мА для работы в режиме 4…20 мА.
Пример
Во время подачи на выход значения «0,5», выходное напряжение будет равно 5 В для работы в режиме 0…10 В.

Настройка выходов типа «КТ»

Работа выхода типа «КТ» в дискретном режиме аналогична работе релейных выходов.

В режиме ШИМ выход генерирует последовательность прямоугольных импульсов с задаваемыми в OwenLogic периодом и минимальным импульсом.

Graphic
Настройка параметров работы выхода типа «КТ» в режиме ШИМ
Настройка выходов типа «КТ»
ПараметрОписание
Режим работы

Режим работы выхода:

  • Реле;

  • ШИМ

Период ШИМПериод следования импульсов
Минимальная продолжительность импульсаЗадает минимальное время между любыми соседними фронтами импульсов (минимальная длительность включенного и выключенного состояний выхода). Следует задавать большим, чем время срабатывания подключенного к нему ИМ
Безопасное состояние

Выход переходит в безопасное состояние, если в течение времени тайм-аута отсутствуют команды от Мастера сети. На выходе устанавливается значение параметра «Безопасное состояние» в диапазоне от 0 до 1

Скважность ШИМДоступны только в режиме модуля расширения (см. раздел)
Коэффициент заполнения ШИМ

В режиме ШИМ на ВЭ типа «КТ» следует подавать значение в формате «с плавающей запятой» (float32) в диапазоне от 0,0 до 1,0. Если значение поданное на вход:

  • меньше нуля или равное нулю — выход выключен;

  • в диапазоне от нуля до единицы — скважность ШИМ;

  • больше или равно единице — выход включен.

Работа с OWEN Configurator

Подключение к

Для настройки прибора можно использовать OWEN Configurator. Для настройки прибора с помощью OWEN Configurator следует:

  1. Скачать с сайта www.owen.ru архив с OWEN Configurator.

  2. Извлечь из архива файл .ехе.

  3. Запустить .ехе файл и следовать указаниям мастера установки.

Прибор можно подключить к ПК с помощью следующих интерфейсов:

  • USB (разъем micro-USB);
  • Ethernet;
  • RS-485.

Для настройки прибора следует:

  1. Подключить прибор к ПК с помощью интерфейса USB, Ethernet или RS-485.
    Предупреждение

    В случае подключения прибора к порту USB подача основного питания прибора не требуется.

    Питание прибора осуществляется от порта USB. Входы, выходы и интерфейсы прибора при этом не функционируют.

    В случае подключения по интерфейсам Ethernet и RS-485 следует подать основное питание на прибор.

  2. Открыть OWEN Configurator.
  3. Нажать кнопку «Добавить устройства».
  4. В выпадающем меню «Интерфейс» во вкладке «Сетевые настройки» выбрать:
    • Ethernet (или другую сетевую карту, к которой подключен прибор) — для подключения по Ethernet;
    • STMicroelectronics Virtual COM Port — для подключения по USB или RS-485.

      Примечание
      Название и номер COM порта, присвоенный прибору ПК, можно уточнить в Диспетчере устройств Windows.
    Graphic
    Меню выбора интерфейса
Дальнейшие шаги для поиска устройства зависят от выбора интерфейса.

Чтобы найти и добавить в проект прибор, подключенный по интерфейсу Ethernet, следует:

  1. Выбрать «Найти одно устройство».
  2. Ввести IP-адрес подключенного устройства.
  3. Нажать вкладку «Найти». В окне отобразится прибор с указанным IP-адресом.

    Предупреждение
    Значение IP-адреса по умолчанию (заводская настройка) — 192.168.1.99.

  4. Выбрать устройство (отметить галочкой) и нажать ОК. Если устройство защищено паролем, то следует ввести корректный пароль. Устройство будет добавлено в проект.

Чтобы найти и добавить в проект прибор, подключенный по USB или RS-485:

  1. В выпадающем меню «Протокол» выбрать протокол Owen Auto Detection Protocol.
    Graphic
    Выбор протокола
  2. В поле «Настройки подключения» задать Авто.

  3. Выбрать «Найти одно устройство».
  4. Если прибор подключен по USB, поле «Адрес» оставить без изменения, иначе ввести сетевой адрес прибора.
  5. Нажать кнопку «Найти». В окне отобразится прибор с указанным адресом.
  6. Выбрать устройство (отметить галочкой) и нажать ОК. Если устройство защищено паролем, то следует ввести корректный пароль. Устройство будет добавлено в проект.

Пароль доступа

Для ограничения доступа к чтению и записи параметров конфигурации и для ограничения доступа в облачный сервис OwenCloud используется пароль.

Graphic
Пароль доступа

Пароль можно установить или изменить с помощью OWEN Configurator или OwenLogic.

В случае утери пароля следует сбросить прибор до заводских настроек (см. раздел).

По умолчанию пароль не задан.

Запись архива

В прибор встроена флеш-память (flash), размеченная под файловую систему с шифрованием файлов. Алгоритм шифрования – Data Encryption Standard. В качестве ключа используется строка superkey. Вектор инициализации генерируется с помощью хеш-функции (см. Приложение Расчет вектора инициализации для шифрования файла архива).

В архиве по умолчанию сохраняются следующие данные:

  • состояние батареи;

  • статус прибора (служебная информация для обращения в сервисный центр и в группу технической поддержки).

В OwenLogic можно настроить архивирование параметров сетевого интерфейса, в том числе пользовательские сетевые переменные (подробнее см. Руководство пользователя OwenLogic).

В памяти прибора архивы хранятся в виде записей. Записи разделены символами переноса строки (0x0D0A). Каждая запись соответствует одному параметру и состоит из полей, разделенных символом «;» (без кавычек). Формат записи приведен в таблице ниже.

Формат записи в файле архива
ПараметрТипРазмерКомментарий
Метка времениBinary data4 байтаВ секундах начиная с 00:00 01.01.2000 (UTC+0)
РазделительСтрока1 байтСимвол «;» (без кавычек)
Уникальный идентификатор параметра (UID)Строка8 байтВ виде строки из HEX-символов с ведущими нулями
РазделительСтрока1 байтСимвол «;» (без кавычек)
Значение параметраСтрокаЗависит от параметраВ виде строки из HEX-символов с ведущими нулями
РазделительСтрока1 байтСимвол «;» (без кавычек)
Статус параметраBinary data1 байт

1 – значение параметра корректно;

0 – значение параметра некорректно и его дальнейшая обработка не рекомендована

Перенос строкиBinary data2 байта\n\r (0x0D0A)

Запись в архив производится циклически. Период архивации, ограничение на размер одного файла и количество файлов архива задается пользователем в OWEN Configurator или OwenLogic. Если архив полностью заполнен, то данные перезаписываются, начиная с самых старых данных самого старого файла.

Архив можно считать с помощью:

  • OWEN Configurator;

  • пользовательского ПО (с помощью 20 функции Modbus).

С помощью OWEN Configurator архив можно сохранить в формате CSV, кодировка Win-1251.

Прибор фиксирует время в архивных файлах по встроенным часам реального времени. Также можно задать часовой пояс, который будет считываться внешним ПО. Архив записывается во флэш-память (flash) с определенной частотой, рассчитанной таким образом, чтобы ресурса флеш-памяти (flash) прибора хватило на срок не менее 10 лет работы.

Архив считывается с помощью 20 функции Modbus (0x14). Данная функция возвращает содержание регистров файла расширенной памяти. Функция поддерживает возможность считывать несколько групп, которые могут быть разделены, однако посылка внутри каждой группы должна быть непрерывной.

Запрос специфицирует группу или группы для чтения. Каждая группа определяется в поле «суб-запроса», которое содержит 7 байт:

  • тип ссылки – 1 байт (должен быть специфицирован как 6);

  • номер файла расширенной памяти – 2 байта;

  • начальный адрес регистра внутри файла – 2 байта;

  • количество регистров для чтения – 2 байта.

Количество регистров для чтения, вместе с другими полями в ответе, не должно превышать допустимую длину Modbus-сообщения – 256 байт.

Каждый файл содержит 10000 регистров, адресуемых как 0х0000–0х270F.

Внимание
В случае выключения питания прибора последняя запись в файле архива может не сохраниться.

Настройка сетевых интерфейсов

Общие сведения

В приборе, в зависимости от модификации, устанавливается до двух интерфейсов RS-485 для организации работы по стандартному протоколу Modbus. Вне зависимости от модификации в приборе всегда есть один интерфейс Ethernet.

Сетевые настройки прибора можно задать с помощью OWEN Configurator или в OwenLogic.

По интерфейсу Ethernet прибор работает по протоколу Modbus TCP (см. раздел).

Примечание

По Modbus TCP прибор можно опрашивать в четыре потока.

Примечание

OwenCloud опрашивает прибор в отдельном потоке и не мешает обмену по Modbus TCP.

Работа по интерфейсу RS-485 описана в разделах и.

Параметры сетевых интерфейсов

Ethernet

Параметры интерфейса Ethernet настраиваются с помощью OWEN Configurator или OwenLogic.

Предупреждение
Для применения новых сетевых настроек следует перезагрузить прибор. Если прибор подключен по USB, его также следует отключить от порта.
Graphic
Настройки параметров Ethernet

IP-адрес может быть:

  • статический;

  • динамический.

Статический IP-адрес устанавливается с помощью OWEN Configurator, OwenLogic или сервисной кнопки.

Для обмена по сети Ethernet должны быть заданы параметры, приведенные в таблице ниже.

Параметры Ethernet
ПараметрОписание
MAC-адресУстанавливается на заводе-изготовителе и является неизменным
IP-адресМожет быть статическим или динамическим. Заводская настройка – 192.168.1.99
Маска IP-адресаЗадает видимую прибором подсеть IP-адресов других устройств. Заводская настройка – 255.255.0.0
IP-адрес шлюзаЗадает адрес шлюза для выхода в Интернет. Заводская настройка – 192.168.1.80

DNS сервер 1

Используется для получения IP-адреса по имени хоста – 8.8.8.8

DNS сервер 2

Установить IP-адресИспользуются для задания новых значений
Установить маску подсети
Установить IP-адрес шлюза
Режим DHCP

Настройка режима работы DHCP. Возможные значения:

  0 – выкл.

  1 – вкл.

  2 – разовая установка кнопкой

Для установки статического IP-адреса с помощью OWEN Configurator или OwenLogic следует:

  1. Зайти во вкладку «Сетевые настройки».

  2. Установить значение в полях «Установить IP адрес», «Установить маску подсети» и «Установить IP адрес шлюза».

Режим DHCP должен быть настроен как «Выкл».

Для установки статического IP-адреса c помощью сервисной кнопки следует:

  1. Подключить прибор к сети Ethernet.

  2. Запустить OWEN Configurator на ПК, подключенному к той же сети Ethernet.

  3. Выбрать вкладку «Назначение IP-адресов».

  4. Нажать сервисную кнопку, контролируя результат в окне программы. В окне OWEN Configurator будет отображаться информация о присвоенном статическом IP-адресе и других параметров сети.

Для назначения статического IP-адреса с помощью кнопки режим DHCP должен быть настроен как «Разовая установка кнопкой».

RS-485

Параметры интерфейса RS-485 настраиваются с помощью OWEN Configurator или OwenLogic.

Graphic
Настройки параметров RS-485
Параметры RS-485
ПараметрОписание
Скорость СОМ-порта

Скорость работы СОМ-порта. Возможные значения:

 3 – 9600 бит/с

 4 – 14400 бит/с

 5 – 19200 бит/с

 6 – 38400 бит/с

 7 – 57600 бит/с

 8 – 115200 бит/с

Размер данных

Размер данных в посылке. Возможные значения:

 0 – 8 бит

 1 – 7 бит

Кол. стоп-битов

Количество стоп-бит. Возможные значения:

 0 – нет

 1 – нечет

 2 – чет

Контроль четности

Возможные значения:

 0 – 1 стоп

 1 – 2 стопа

Slave ID

Адрес прибора в сети RS-485. По умолчанию — 16

Modbus RTU/Modbus ASCII

Прибор работает по интерфейсу RS-485 по одному из режимов обмена данными: Modbus-RTU (Master/Slave) или Modbus-ASCII (Master/Slave). Прибор автоматически распознает режим обмена Modbus-RTU или Modbus-ASCII.

Параметры работы можно настроить в OwenLogic (см. раздел).

Modbus TCP

По протоколу Modbus TCP прибор работает только через Ethernet порт. Работа по протоколу Modbus TCP настраивается в OwenLogic (см. раздел).

Примечание

Следует отключать режим DHCP в настройках Ethernet в случаях:

  • в локальной сети нет DHCP сервера;

  • прибор соединен с компьютером в сеть «точка-точка».

Режимы Master и Slave

Режим Master

Когда сетевые интерфейсы настроены в режим Master, прибор поддерживает следующие возможности:

  • чтение по таймеру;

  • чтение/запись по событию;

  • запись по изменению (используется по умолчанию).

Для RS-485 допускается наличие только одного устройства в режиме Master.

Прибор поддерживает управление до 32 устройствами и 64 переменными. Допускается использование одинаковых адресов и имен переменных для каждого устройства.

В сетевом регистре с адресом 2008 DEC (0х7D8 HEX) хранятся статусы обмена со Slave устройствами: 1 в соответствующем бите (32 бита на 32 Slave устройства) означает, что обмен с устройством есть, 0 - что обмена нет.

Регистр с адресом 2010 DEC (0х7DA HEX) существует для управления обменом со Slave устройствами: 1 в соответствующем бите (32 бита на 32 Slave устройства) - разрешить обмен с устройством, 0 - запретить обмен.

Объем памяти под сетевые переменные в режиме Master — 384 байт.

Для опроса следует добавить и настроить устройства (см. рисунок ниже).

Graphic
Настройки Modbus Master

ПараметрОписание

Имя

Имя устройства для отображения в дереве настроек

ИнтерфейсУказывается интерфейс опроса RS-485 или Ethernet
Адрес

Сетевой адрес устройства

Таймаут ответа

Время, по истечении которого попытка опроса считается неудачной

ПротоколПротокол опроса прибора

Кол-во попыток

Неудачных попыток опроса, при достижении которого изменяется Статус устройства.

Старшим регистром вперед

Определяет очередность посылки регистров во время работы с двухрегистровыми переменными

Старшим байтом вперед

Определяет очередность следования байтов в посылке

Более подробное описание приведено в Руководстве пользователя OwenLogic.

Режим Slave

Когда сетевые интерфейсы настроены в режим Slave, прибор поддерживает следующие функции:

  • чтение значений из нескольких регистров флагов, хранения и ввода;
  • чтение значений из одиночных регистров флагов, хранения и ввода;
  • запись значений в несколько регистров хранения и флагов;
  • запись значений в одиночные регистры хранения и флагов.

Переключение сетевого интерфейса в режим Slave производится с помощью OwenLogic. Карты регистров для опроса приведены в Приложении Карты регистров.

Объем памяти под сетевые переменные в режиме Slave — 2040 байт.

Настройка таймаута перехода в безопасное состояние

В случае, когда связь с Мастером сети потеряна, прибор может перейти в безопасное состояние.

Graphic
Настройка таймаута
Настройка таймаута
ПараметрОписание
Таймаут перехода в безопасное состояниеПрибор переходит в безопасное состояние, если в течение времени тайм-аута отсутствуют команды от Мастера сети. Если значение 0, то переход в безопасное состояние отключен

Работа по протоколу Modbus

Список поддерживаемых функций

Название функции

Код согласно спецификации Modbus

Описание функции

MODBUS_READ_HOLDING_REGISTERS

3 (0x03)

Чтение значений из одного или нескольких регистров хранения

MODBUS_READ_INPUT_REGISTERS

4 (0x04)

Чтение значений из одного или нескольких регистров ввода

MODBUS_WRITE_SINGLE_REGISTER

6 (0x06)

Запись значения в один регистр

MODBUS_WRITE_MULTIPLE_REGISTERS

16 (0x10)

Запись значений в несколько регистров

MODBUS_READ_FILE_RECORD

20 (0x14)

Чтение архива из файла

MODBUS_WRITE_FILE_RECORD

21 (0x15)

Запись архива в файл

Параметры битовой маски могут читаться функциями 0х03 и 0х01. В случае использования функции 0x01 номер регистра следует умножить на 16 и прибавить номер бита.

Общие регистры оперативного обмена по протоколу Modbus
НазваниеРегистрРазмерТипОписание
Название (имя) прибора для показа пользователю (DEV)0xF00032 байтаСимвольная строкаКодировка Win-1251
Версия встроенного ПО прибора для показа пользователю (VER)0xF01032 байтаСимвольная строкаКодировка Win-1251
Название платформы0xF02032 байтаСимвольная строкаКодировка Win-1251
Версия платформы0xF03032 байтаСимвольная строкаКодировка Win-1251
Версия аппаратного обеспечения0xF04016 байтСимвольная строкаКодировка Win-1251
Дополнительная символьная информация0xF04816 байтСимвольная строкаКодировка Win-1251
Время и дата0xF0804 байтаUnsigned 32В секундах с 2000 г.
Часовой пояс0xF0822 байтаSigned shortСмещение в минутах от Гринвича
Заводской номер прибора0xF08432 байтаСимвольная строкаКодировка Win-1251, используется 17 символов
Основные форматы данных
Формат данныхКол-во регистровРазмерОписание
Unsigned 1612 байтаЦелое число без знака
Unsigned 3224 байта
Signed 1612 байтаЦелое число со знаком
Date time 3224 байтаДата/Время в секундах с 1 января 2000 г.
Специальные форматы данных
Формат данныхКол-во регистровРазмерОписание
Enum 1...Enum 3711 байт

Описывает позицию выбранного параметра из списка доступных в OWEN Configurator, например, тип датчика для дискретно-аналоговых входов

Float 3224 байт

Вещественный формат представления данных

Unsigned 811 байтЦелочисленный беззнаковый формат
String 4836 байтСтрока из шести символов
String 6448 байтСтрока из восьми символов
String 128816 байтСтрока из шестнадцати символов

Список регистров Modbus можно считать с прибора с помощью OWEN Configurator во вкладке «Параметры устройства».

Список регистров Modbus представлен в таблицах Приложения Карты регистров Modbus.

При работе с переменными, занимающими два и более регистра:

  • порядок байт — старшим байтом вперед;

  • порядок регистров — младшим регистром вперед.

Обработка ошибок обмена по Modbus

Список кодов общих ошибок Modbus

Возвращаемый код*

Описание ошибки

01

В приборе не реализована обработка запрашиваемого кода функции

02

Адрес данных, указанный в запросе, отсутствует в приборе. Критерии проверки – удовлетворение диапазону начального адреса регистра и количество регистров

03

Значение, содержащееся в поле данных запроса, является недопустимой величиной. Критерий проверки – соответствие длины записываемых или читаемых данных размерности типа регистра; соответствие записываемой величины условиям минимального и максимального значений регистра

04

Невосстанавливаемая ошибка. Критерий – получение запроса при нахождении прибора в состоянии «Авария»
05

Запрос принят в работу, но на его обработку требуется много времени. Код ошибки предохраняет ведущее устройство от генерации ошибки тайм-аута. Критерий проверки – время на обработку запроса превышает заданное значение (например, при приеме запроса при исполнении программы логики)

06

Устройство занято. Критерий – прием запроса при наличии в обработке предыдущего запроса

08

Ошибка при обращении с запросами на чтение (функция 20) или запись (функция 21) файла. Критерий – неверная CRC или нарушение целостности файла при его чтении из памяти

Примечание
* Согласно спецификации Modbus.

Обработка пакетов производится в следующем порядке:

  1. Проверяется валидность пакета. Не прошедший проверку пакет отбрасывается.

  2. Проверяется адрес (SlaveID), если получен чужой пакет, то такой пакет игнорируется.

  3. Проверка на функцию Modbus.

Если приходит запрос с функцией, не из таблицы выше, то выдается ошибка «MODBUS_ILLEGAL_FUNCTION».

Расшифровка ошибок данных и файлов приведена в таблицах ниже.

Обработка ошибок данных
Используемая функцияНаименование ошибкиВозможные ситуации, приводящие к ошибке
MODBUS_READ_ HOLDING_REGISTERSMODBUS_ILLEGAL_DATA_ADDRESS

Количество запрашиваемых регистров больше максимально возможного числа (125).

Запрос несуществующего параметра

MODBUS_READ_INPUT_ REGISTERSMODBUS_ILLEGAL_DATA_ADDRESS

Количество запрашиваемых регистров больше максимально возможного числа (125).

Запрос несуществующего параметра

MODBUS_WRITE_SINGLE_ REGISTERMODBUS_ILLEGAL_DATA_ADDRESS

Попытка записи параметра, размер которого превышает 2 байта.

Попытка записи параметра, доступ на запись к которому запрещен.

Попытка записи параметра такого типа, запись в который не может быть осуществлена данной функцией.

Запрос несуществующего параметра.

Поддерживаемые типы данных:

  • знаковые и беззнаковые целые (размер не более 2 байт);

  • перечисляемые

MODBUS_ILLEGAL_DATA_VALUEВыход за пределы максимального или минимального ограничений для параметра
MODBUS_WRITE_ MULTIPLE_REGISTERSMODBUS_ILLEGAL_DATA_ADDRESS

Запись несуществующего параметра.

Попытка записи параметра, доступ на запись к которому запрещен.

Количество записываемых регистров больше максимального возможного числа (123)

MODBUS_ILLEGAL_DATA_VALUE

Не найден терминирующий символ (\0) в строковом параметре.

Размер запрашиваемых данных меньше размера первого или последнего в запросе параметра.

Выход за пределы максимального или минимального ограничений для параметра

Ошибки во время работы с файлами архива
Используемая функцияНаименование ошибкиВозможные ситуации, приводящие к ошибке
MODBUS_READ_FILE_ RECORDMODBUS_ILLEGAL_ FUNCTIONОшибочный размер данных (0x07 ≤ data length ≤ 0xF5)
MODBUS_ILLEGAL_DATA_ ADDRESS

Reference type не соответствует спецификации;

не удалось открыть файл для чтения (возможно, он отсутствует)

MODBUS_ILLEGAL_DATA_ VALUEНе удалось переместиться к нужному смещению в файле
MODBUS_SLAVE_DEVICE_ FAILURE

Ошибка удаления файла при запросе на удаление.

Запрос слишком большого количества данных (больше 250 байт).

Недопустимый record number (больше 0x270F).

Недопустимый record length (больше 0x7A)

MODBUS_WRITE_FILE_ RECORDMODBUS_ILLEGAL_ FUNCTIONОшибочный размер данных (0x09 ≤ data length ≤ 0xFB)
MODBUS_ILLEGAL_DATA_ ADDRESS

Reference type не соответствует спецификации.

Не удалось открыть файл для записи

MODBUS_SLAVE_DEVICE_ FAILURE

Запрашиваемый файл отсутствует.

Запрашиваемый файл доступен только для чтения.

Не удалось записать необходимое количество байт

Настройка параметров работы OwenCloud

Примечание

Для соединения с сервером OwenCloud в локальной сети должен быть открыт порт 26502.

Рекомендуется в настройках подключаемых приборов указывать в качестве DNS-сервера Google Public DNS (8.8.8.8).

Прибор должен быть запитан от внешнего источника питания и подключен к Интернет с помощью интерфейса Ethernet.

Для подключения прибора к OwenCloud следует:

  1. Подключить прибор к ПК и создать проект в OwenLogic с использованием сетевых переменных.

  2. Установить пароль для доступа к прибору (см. раздел).

    Предупреждение
    Если пароль для прибора не задан, то подключение к OwenCloud невозможно.
  3. В окне настроек прибора разрешить доступ к OwenCloud.

    Graphic
    Настройки подключения к OwenCloud
    Примечание

    Значение параметра Статус подключения к OwenCloud можно считать по Modbus или привязать переменную пользовательской программы. Описание параметра приведено в таблице ниже.

    Возможные состояния параметра «Статус подключения к OwenCloud»
    СостояниеЗначениеОписание
    Нет соединения0Выключен обмен с OwenCloud
    Идентификация1Устанавливается подключение к OwenCloud
    Работа2OwenCloud управляет прибором, ошибок нет
    Ошибка сети3Прибор не может установить соединение с сервером OwenCloud
    Нет пароля4Не установлен пароль на прибор

  4. Разрешить удаленный доступ к регистрам Modbus.

    Graphic
    Удаленный доступ к регистрам Modbus
    Примечание
    Настроить параметры прибора для работы с OwenCloud так же можно в OWEN Configurator. Но без загруженной программы сетевые переменные доступны не будут.
  5. Загрузить программу в прибор.

    Примечание
    Следует убедиться, что переключатель Работа/Стоп находится в положении Работа.
  6. Зайти на главную страницу сервиса OwenCloud. Если необходимо, то пройти процедуру регистрации.

  7. Перейти на вкладку Администрирование, открыть вкладку Приборы и нажать кнопку Graphic.

  8. Появится окно с выбором типа прибора.

    Graphic
    Выбор типа прибора

    Вариант ПР205 по Ethernet — Автоопределение:

    1. В появившемся окне в полях:

      • Идентификатор ввести заводской номер прибора;

      • Адрес в сети оставить без изменения адрес 1;

      • Название прибора – ввести название прибора;

      • Часовой пояс – указать часовой пояс, в котором находится прибор.

    2. Нажать кнопку «Добавить». Откроется интерфейс базовых настроек прибора.

    3. Ввести пароль от прибора. Если необходимо, можно изменить и другие настройки (например, период опроса).

    4. Нажать кнопку «Сохранить» для применения новых настроек.

    5. OwenCloud подключится к прибору и считает все параметры из него.

    Вариант ПР205 по Ethernet — Ручная настройка:

    1. В полях:

      • Идентификатор ввести заводской номер прибора;

      • Адрес в сети оставить без изменения адрес 1;

      • Название прибора – ввести название прибора;

      • Часовой пояс – указать часовой пояс, в котором находится прибор.

    2. Нажать кнопку «Добавить». Откроется интерфейс общих настроек прибора.

    3. Нажать кнопку «Сохранить» для применения новых настроек.

    4. Далее на вкладке Параметры/Настройки параметров добавить сетевые параметры прибора. Сетевые параметры можно сохранить в виде файла *.json, если воспользоваться расширением Экспорт устройства в OwenCloud OwenLogic. Для добавления параметров следует нажать на выпадающий список Импортировать и выбрать вариант Загрузить из JSON. В открывшемся меню выбрать ранее созданный файл в формате *.json и нажать кнопку Загрузить параметры.

      Graphic
      Импорт параметров

    Вариант ПР205 по RS485 - Через шлюз:

    1. В появившемся окне в полях:

      • Идентификатор ввести заводской номер шлюза;

      • Адрес в сети установить в соответствии с адресом порта к которому подключен шлюз;

      • Название прибора – ввести название прибора;

      • Часовой пояс – указать часовой пояс, в котором находится прибор.

    2. Нажать кнопку «Добавить». Появится окно настройки обмена с OwenCloud.

      Graphic
      Настройки обмена с OwenCloud

      Поля:

      • Скорость СОМ-порта

      • Настройка СОМ-порта установить в соответствии с адресом порта к которому подключен шлюз;

      • Протокол Modbus – ввести название прибора;

      должны соответствовать аналогичным настройкам порта к которому подключен шлюз.

    3. Нажать кнопку «Сохранить» для применения новых настроек.

    4. Далее на вкладке Параметры/Настройки параметров добавить сетевые параметры прибора. Сетевые параметры можно сохранить в виде файла *.json, если воспользоваться расширением Экспорт устройства в OwenCloud OwenLogic. Для добавления параметров следует нажать на выпадающий список Импортировать и выбрать вариант Загрузить из JSON. В открывшемся меню выбрать ранее созданный файл в формате *.json и нажать кнопку Загрузить параметры.

      Graphic
      Импорт параметров

Если все настройки были корректными, то на вкладке Общие данные отобразятся данные от прибора.

Если прибор не опрашивается из OwenCloud, то следует проверить:

  1. Сетевые настройки, параметр Статус подключения:

    Graphic
    Пример отображения статуса
  2. Cтатус подключения к OwenCloud.

    Graphic
    Пример отображения подключения к OwenCloud

Если значения не пишутся в прибор из OwenCloud следует проверить наличие установленной галочки в столбце Управляемый параметр.

Graphic
Управляемый параметр

Настройка часов

Настройка часов производится в ветви Часы.

Graphic
Настройка значений даты и времени

Настройка часов
ПараметрОписание
Установить дату и время компьютераПосле нажатия кнопки Записать в прибор будет записаны дата и время с ПК
Установить часовой пояс компьютераПосле нажатия кнопки Записать в прибор будет записано значение часового пояса с ПК

В ветви Часы реального времени можно привязать переменные программы пользователя к настройкам часов реального времени прибора для их изменения из программы.

Graphic
Привязка переменных к настройкам часов реального времени
Часы реального времени
ПараметрОписание
Время и дата (UTC)Текущее время в миллисекундах от 1 января 2000 г.
Часовой пояс, минЗадает часовой пояс, в котором находится прибор
Время в миллисек, мсВремя работы прибора с момента подачи питания (USB или внешнего)

Так же в узле Переменные даты и времени можно связать программу пользователя со значениями даты и времени.

Graphic
Привязка переменных к значениям даты и времени

Настройки прибора

Graphic
Настройки прибора
ПараметрОписание
Подсветка экранаНастраивает время работы подсветки экрана. Значения:
  • Всегда;

  • 10 секунд;

  • 30 секунд;

  • 1 минута;

  • 10 минут

Параметры батареи

Graphic
Параметры состояния батареи RTC

Настройка параметров статуса

В дереве параметров прибора доступны параметры статуса прибора и его батареи.

Graphic
Параметры статуса прибора
Описание значений параметра «Ошибки»

Значение

Описание

Примечание

0

Нет основной тактовой частоты

Проверяются один раз при старте

1

Не корректный ID микроконтроллера

2

Зависание микроконтроллера из-за аппаратно-зависимой ошибки в ПО

3

Не инициализируется шина SPI Flash-памяти или установлена не поддерживаемая модель Flash-памяти

4

Ошибка часов реального времени

5

Ошибка сторожевого таймера

Проверяются периодически во время работы

6

Ошибка Retain

7

Ошибка инициализации логики

Описание значений параметра «Предупреждения»

Значение

Описание

Примечание

0

Предупреждение батареи

Проверяются периодически во время работы

1

Предупреждение интерфейса Ethernet

2

Предупреждение безопасного состояния

Graphic
Параметры состояния батареи
Возможные состояния параметра «Состояние батареи»
ЗначениеОписание
0Норма
1Разряжена

Для подключенных модулей расширения доступны параметры статуса.

Graphic
Параметры статуса модулей расширения

Параметр Статус модуля расширения можно считать по Modbus или привязать переменную пользовательской программы. Значения и описание параметра приведены в таблице ниже.

Возможные состояния параметра «Статус» модуля расширения
ЗначениеОписание
0Отсутствует обмен с модулем расширения
1Есть обмен с модулем расширения

Параметр Состояние подключения модуля расширения можно считать по Modbus или привязать переменную пользовательской программы. Значения и описание параметра приведены в таблице ниже.

Возможные состояния параметра «Состояние подключения» модуля расширения
СостояниеЗначениеОписание
Не подключен0Обмен отсутствует, модуль отключен
Инициализация1Процесс подключения модуля
Обнаружен2Модуль обнаружен. Не проверено соответствие версии встроенного ПО и модели добавленного в слот модуля и не записаны настройки
Несоответствие типа модуля3Связь установлена, но подключен модуль другой модели
Несоответствие версии ПО4Связь установлена, но версия встроенного ПО модуля не актуальная
В работе5Связь установлена. Модель модуля соответствует подключенной в слот. Версия встроенного ПО модуля актуальная. Модуль можно задействовать в программе пользователя

Восстановление заводских настроек

Внимание

После восстановления заводских настроек:

  • пользовательская программа удаляется;

  • все настройки, кроме IP-адресов Ethernet, сбрасываются на заводские значения;

  • пароль удаляется.

Graphic
Восстановление заводских настроек

Для восстановления заводских настроек следует:

  1. Включить питание прибора.

  2. Подцепив за рифленую зону, открыть лицевую панель прибора.

  3. С помощью тонкого инструмента нажать и удерживать сервисную кнопку более 12 секунд.

  4. Отпустить кнопку. Прибор перезагрузится и сбросит настройки на заводские значения.

  5. Отключить питание прибора.

При следующей подаче питания прибор начнет работу с заводскими настройками.

Монтаж

Установка

Опасность
Монтаж должен производить только обученный специалист с допуском на проведение электромонтажных работ. При проведении монтажа следует использовать индивидуальные защитные средства и специальный электромонтажный инструмент с изолирующими свойствами до 1000 В.

Во время размещения прибора следует учитывать меры безопасности из раздела.

Монтаж прибора производится в шкафу, конструкция которого должна обеспечивать защиту от попадания в него влаги, грязи и посторонних предметов.

Предупреждение
Монтировать и подключать следует только предварительно сконфигурированный прибор.
Внимание
Питание каких-либо устройств от сетевых контактов прибора запрещается.

Для установки прибора на DIN-рейке следует:

  1. Подготовить на DIN-рейке место для установки в соответствии с размерами прибора (см. рисунок).
    Graphic
    Габаритные размеры прибора
  2. Вставив отвертку в проушину, оттянуть защелку (см. рисунок, 1). Прибор установить на DIN-рейку.
  3. Прибор прижать к DIN-рейке (см. рисунок, 2, стрелки 1 и 2). Отверткой вернуть защелку в исходное положение.
  4. Смонтировать внешние устройства с помощью ответных клеммников из комплекта поставки.

Для демонтажа прибора следует:

  1. Отсоединить съемные части клемм от прибора.
  2. В проушину защелки вставить острие отвертки.
  3. Защелку отжать, после чего прибор отвести от DIN-рейки.

Graphic
Монтаж прибора

«Быстрая» замена

Конструкция клемм позволяет оперативно заменить прибор без демонтажа подключенных к нему внешних линий связи.

Для «быстрой» замены прибора следует:

  1. Обесточить все линии связи, подходящие к прибору, в том числе линии питания.
  2. Отделить от прибора съемные части каждой из клемм вместе с подключенными внешними линиями связи с помощью отвертки или другого подходящего инструмента (см. рисунок).
  3. Снять прибор с DIN-рейки, на его место установить другой прибор (аналогичной модификации) с предварительно удаленными съемными частями клемм.
  4. К установленному прибору подсоединить съемные части клемм с подключенными внешними линиями связи.
Graphic
Отсоединение съемных частей клемм

Подключение

Рекомендации к подключению

В зависимости от модификации прибору требуется переменное или постоянное напряжение питания.

Прибор следует подключать к сети переменного тока от сетевого фидера, не связанного непосредственно с питанием мощного силового оборудования. Во внешней цепи рекомендуется установить выключатель, обеспечивающий отключение прибора от сети.

Внимание
Питание каких-либо устройств от сетевых контактов прибора запрещается.

Для обеспечения надежности электрических соединений рекомендуется использовать кабели медные многожильные, концы которых перед подключением следует тщательно зачистить и залудить или использовать кабельные наконечники. Жилы кабелей следует зачищать так, чтобы их оголенные концы после подключения к прибору не выступали за пределы клеммника. Сечение жил кабелей должно быть не более 2,5 мм2.

Для записи пользовательской программы прибор подключается через интерфейсный порт microUSB к USB-порту ПК.

Внимание
Перед подключением разъема USB прибор должен быть обесточен!

Аналоговые входы и выходы, транзисторные выходы «КТ» и интерфейс USB не имеют гальванической развязки между собой. Для безопасной работы с данными входами и выходами, подключаемое к ним оборудование должно иметь одинаковый потенциал заземления или иметь гальваническую изоляцию. Чтобы избежать выхода из строя прибора, перед включением оборудования следует убедиться, что подключаемые к данным входам и выходам устройства имеют одинаковый потенциал заземления. Если нет возможности обеспечить одинаковый потенциал заземления оборудования — запрещается подключать к аналоговым входам и выходам, транзисторным выходам «КТ» и USB устройства одновременно. Во время программирования прибора по USB следует отключать от аналоговых входов и выходов, а так же транзисторных выходов «КТ» кабели или использовать устройства с гальванической развязкой (устройство гальванической развязки интерфейса USB, ноутбук с питанием от батареи и т. п.).

Внимание
Запрещается объединять общие клеммы входов и выходов прибора между собой и с заземлением шкафа (за исключением дискретных входов 230 В и релейных выходов). Запрещается подключать датчики и питание прибора ПР205-24 от одного источника питания!
Предупреждение
Питание датчиков, концевых выключателей и других периферийных устройств, подключаемых к аналоговым и дискретным входам прибора, должно осуществляться только от источника питания с усиленной изоляцией согласно ГОСТ IEC 61131-2-2012, чтобы исключить появление опасного напряжения на портах прибора.

Помехи и методы их подавления

На работу прибора могут оказывать влияние внешние помехи:

  • возникающие под действием электромагнитных полей (электромагнитные помехи), наводимые на прибор и на линии связи с внешним оборудованием;
  • в питающей сети.

Для уменьшения влияния электромагнитных помех рекомендуется:

  • надежно экранировать сигнальные линии, экраны следует электрически изолировать от внешнего оборудования на протяжении всей трассы и подсоединить к заземленному контакту щита управления;
  • установить прибор в металлическом шкафу, внутри которого не должно быть никакого силового оборудования, корпус шкафа должен быть заземлен.

Для уменьшения помех, возникающих в питающей сети рекомендуется:

  • монтируя систему, в которой работает прибор, следует учитывать правила организации эффективного заземления и прокладки заземленных экранов:
    • все заземляющие линии и экраны прокладывать по схеме «звезда» с обеспечением хорошего контакта с заземляемым элементом;
    • заземляющие цепи должны быть выполнены кабелями наибольшего сечения.

Для уменьшения уровня помех можно применять программные фильтры, которые настраиваются индивидуально для каждого входа. Программные фильтры доступны для:

  • всех типов аналоговых датчиков;
  • дискретных входов с номинальным напряжением 24 В.
Примечание
Увеличение значения постоянной времени фильтра аналогового входа замедляет реакцию прибора на быстрые изменения входной величины.

Схемы гальванической развязки

Схемы гальванической развязки ПР205–230.х.х.х
ПриборСхема гальванической развязки
ПР205-230.1211.22.0.0
Graphic
ПР205-230.1211.22.2.0
Graphic
ПР205-230.1211.26.0.0
Graphic
ПР205-230.1211.26.2.0
Graphic
Схемы гальванической развязки ПР205–24.х.х.х
ПриборСхема гальванической развязки
ПР205-24.1211.02.0.0
Graphic
ПР205-24.1211.02.2.0
Graphic
ПР205-24.1211.06.0.0
Graphic
ПР205-24.1211.06.2.0
Graphic

Подключение датчиков

Подключение дискретных датчиков к входам типа «Д»

Graphic
Подключение к дискретным входам типа «Д» датчиков типа «сухой контакт»

Подключение датчиков к быстрым дискретным входам типа «ДС»

На каждом быстром дискретном входе расположен RC-фильтр с R = 750 Ом и C = 470 пФ. Минимальный уровень верхней границы «логического нуля» входа UDI lmin = 6,5 В. Максимальный уровень нижней границы «логической единицы» дискретного входа UDI hmax = 8,55 В.

Датчик с выходом push-pull

Дискретный датчик с выходом push-pull следует подключать напрямую к входу типа «ДС».

Graphic
Подключение к входам типа «ДС» датчиков с выходом push-pull
Датчик с выходом n-p-n транзистора

Датчик с выходом на n-p-n транзистора следует подключать с помощью дополнительного резистора Rд (см. рисунок ниже).

Graphic
Подключение к входам типа «ДС» датчиков с выходом n-p-n

Номинал резистора Rд зависит от:

  • напряжения питания Uпит;

  • времени нахождения транзистора датчика в закрытом состоянии (tcl_VT);

  • требуемой нижней границы уровня логической единицы.

Минимальный уровень напряжения Uпит min, который прибор будет воспринимать как «логическую единицу», рассчитывается по формуле:

Graphic

Где Iном DI – номинальный ток быстрого дискретного входа, составляющий 2,72 мА. Если Uпит будет ниже расчетного Uпит min, то прибор не воспримет такое напряжение как «логическую единицу».

Поскольку на дискретном входе прибора установлен RC-фильтр, длительность tcl_VT и напряжение Uпит влияет на то, успеет ли емкость С1 зарядиться до максимального уровня нижней границы «логической единицы» входа (UDI h max).

Если напряжение Uпит будет слишком низкое, а сопротивление Rд слишком большим, то может не хватить времени когда транзистор датчика закрыт, чтобы зарядить емкость С1 до 8,55 В.

Напряжение, до которой заряжается емкость С1, рассчитывается по формуле:

Graphic

где:

Ut – напряжение, до которого зарядится конденсатор С1;

t – время заряда.

Т рассчитывается по формуле: Graphic

Ut должно быть больше 8,55 В и находиться на таком уровне не менее 5 мкс для быстрого дискретного входа. Максимальное значение сопротивления Rд, при котором напряжение на входе UDI достигнет 8,55 В, рассчитывается по формуле:

Graphic

Длительность нахождения транзистора датчика в закрытом состоянии для быстрого дискретного входа должно быть равно Ut + 5 мкс. При этом надо подбирать датчик с выходом p–n–p транзистора с учетом допустимого тока и рассеиваемой мощности, а резистор Rд с учетом рассеиваемой мощности.

Из формулы 6.1 следует второе ограничение номинала резистора Rд:

Graphic
Пример

Дано:

Датчик n-p-n подключен к прибору и источнику питания 12 В.

tcl_VT = 5 мкс.

Расчет:

Для надежной работы напряжение UDI должно достичь 8,55 В за 3 мкс и минимум 2 мкс не опускаться ниже этого значения.

Номинал резистора Rд должен соответствовать условиям формул 6.4 и 6.5:

Graphic

 

Graphic

Таким образом, номинал Rд должен быть не больше 518 Ом.

Некоторые значения номиналов резистора Rд в зависимости от напряжения питания и длительности пассивного уровня дискретного выхода приведены в таблице ниже.

Значения номиналов резистора R

Напряжение питания быстрого дискретного входа (Uпит), В

Длительность пассивного уровня быстрого дискретного входа, мс

Сопротивление Rд, Ом

12

0,01

500

24

4500
Датчик с выходом p-n-р транзистора

Датчик с выходом на p-n-р транзистора следует подключать с помощью дополнительного резистора Rд (см. рисунок ниже).

Graphic
Подключение к входам типа «ДС» датчиков с выходом p-n-р

Номинал резистора Rд зависит от напряжения питания Uпит и от времени tcl_VT при котором транзистор датчика закрыт.

Поскольку на дискретном входе прибора установлен RC-фильтр, время нахождения транзистора датчика влияет на то, успеет ли емкость С1 разрядиться до минимального уровня верхней границы «логического нуля» дискретного входа (UDI lmin).

Если напряжение Uпит будет слишком высокое, а сопротивление Rд слишком большим, то напряжение на входе прибора может не успеть достичь напряжения 6,5 В за время пока транзистор датчика закрыт.

Напряжение, до которого разрядится емкость С1 рассчитывается по формуле:

Graphic

где

Ut – напряжение, до которого разрядится конденсатор С1;

t – время разряда.

Т рассчитывается по формуле: Graphic

Ut должно быть меньше 6,5 В и находится на таком уровне не менее 5 мкс. Максимальное значение сопротивления Rд при котором напряжение на входе UDI достигнет 6,5 В, рассчитывается по формуле:

Graphic

Длительность пассивного уровня дискретного выхода при котором транзистор закрыт, должно быть не менее Ut + 5 мкс.

При этом надо подбирать датчик с выходом транзистора p–n–p с учетом допустимого тока и рассеиваемой мощности, а Rд с учетом рассеиваемой мощности.

Некоторые значения номиналов резистора Rд и длительности пассивного уровня в зависимости от напряжения питания и длительности пассивного уровня дискретного выхода приведены в таблице ниже.

Значения номиналов резистора R и длительности пассивного уровня

Напряжение питания быстрого дискретного входа (Uпит), В

Длительность пассивного уровня быстрого дискретного входа, мс

Сопротивление Rд, кОм

40

0,005

5

30

6

24

7

Подключение дискретных датчиков к аналоговым входам

Предупреждение
Перед подключением дискретных датчиков, следует проверить, что вход прибора настроен на дискретный режим.
Graphic
Схема подключения к универсальным входам, работающим в дискретном режиме датчиков типа «сухой» контакт
Graphic
Схема подключения к универсальным входам, работающим в дискретном режиме трехпроводных дискретных датчиков, имеющих выходной транзистор p-n-p-типа с открытым коллектором
Примечание
Контакты COM1 объединены электрически внутри прибора.

Подключение аналоговых датчиков

Предупреждение
Перед подключением аналоговых датчиков следует проверить, что вход прибора настроен на аналоговый режим.

Режим работы универсального входа переключается в OwenLogic (см. раздел).

Внимание
Настройка режима работы входа в OwenLogic должна соответствовать схеме подключения датчика к клеммам входа.
Предупреждение
Для защиты входных цепей прибора от возможного пробоя зарядами статического электричества, накопленного на линиях связи «прибор – датчик», перед подключением к клеммнику прибора их жилы следует на 1–2 секунды соединить с винтом функционального заземления (FE) щита.

Во время проверки исправности датчика и линии связи следует отключить прибор от сети питания. Чтобы избежать выхода прибора из строя при «прозвонке» связей, следует использовать измерительные устройства с напряжением питания не более 4,5 В. Для более высоких напряжений питания этих устройств отключение датчика от прибора обязательно.

Параметры линии соединения прибора с датчиком приведены в таблице ниже.

Параметры линии связи прибора с датчиками
Тип датчикаДлина линий, м, не болееСопротивление линии, Ом, не болееИсполнение линии
Резистивные сигналы100—*Двухпроводная, провода равной длины и сечения
Унифицированный сигнал постоянного тока100100Двухпроводная
Унифицированный сигнал напряжения постоянного тока1005Двухпроводная
Примечание

* Для двухпроводной схемы подключения датчика сопротивление проводов, идущих к датчику, суммируется с сопротивлением датчика, и вносит пропорциональную погрешность в измерение. Фактор суммирования сопротивлений следует учитывать во время проектирования схемы подключения и соотносить сопротивление подводящих проводов с рабочим диапазоном сопротивления датчика.

Например, датчик Cu 500 (α = 0,00428 °С−1) с диапазоном измерений −50...+200 °С имеет соответствующий диапазон сопротивлений 393,5...926 Ом. Рабочий диапазон датчика составляет 532,5 Ом. Следовательно, сопротивление подводящих проводов в 1 Ом внесет погрешность (1 ∙ 100) / 532,5 = 0,19 % в показания температуры.

ТС подключается по двухпроводной схеме.

Graphic
Подключение ТС к аналоговому входу
Graphic
Подключение датчиков с выходом в виде тока
Graphic
Подключение датчиков с выходом в виде напряжения
Graphic
Подключение резистивных датчиков

Подключение нагрузки к ВЭ

Подключение нагрузки к ВЭ типа «КТ»

Graphic
Подключение нагрузки к выходу типа «КТ»

Подключение нагрузки к ВЭ типа «Р»

Graphic
Схема подключения ВЭ типа «Р»

Подключение нагрузок к выходу типа «АУ»

Примечание
Для работы ВЭ следует использовать внешний источник питания постоянного тока.
Внимание
Напряжение источника питания ЦАП должно быть не более 30 В.
Graphic
Подключение аналогового выхода, находящегося в режиме источника тока

Сопротивление нагрузки для режима работы выхода 4...20 мА должно быть не более 600 Ом.

Graphic
Подключение аналогового выхода, находящегося в режиме источника напряжения

Сопротивление нагрузки для режима работы выхода 0...10 В должно быть не менее 600 Ом.

Подключение модуля расширения

Внимание
Подключение модулей к прибору и подключение устройств к модулям выполнять только при отключенном питании всех устройств.

Модуль подключается к прибору с помощью шлейфа длиной 4,5 см из комплекта поставки модуля. После подключения шлейф следует поместить в специальное углубление под крышкой модуля (рисунок, стрелка 1), тем самым позволяя придвинуть модуль вплотную к головному устройству (рисунок, стрелка 2).

Graphic
Укладка шлейфа в углубление

Модули подключаются только последовательно. Ближайший модуль к головному устройству всегда будет располагаться в слоте 1 (см. рисунок ниже). Подключение модуля в слот 2 без модуля в слоте 1 невозможно.

Graphic
Расположение модулей расширения на шине

Во время первого подключения к прибору на модуле будет мигать светодиод «Авария», так как модуль не получает команд от головного устройства. После внесения модуля в пользовательскую программу и записи в прибор, светодиод «Авария» на модуле перестанет мигать. В противном случае следует обновить встроенное ПО модуля.

Подключение к сети RS-485

Следует обеспечить максимально-возможную близость значений сопротивления согласующего резистора Rсогл и волнового сопротивления кабеля. Стандартные кабели для организации сети RS-485 имеют волновое сопротивление 120 Ом.

Graphic
Типовая схема подключения в режиме Slave
Graphic
Типовая схема подключения в режиме Master

Подключение по интерфейсу Ethernet

Graphic
Подключение по схеме «Звезда»

Подключение к OwenCloud

Примечание
Подключать к OwenCloud следует только запрограммированный прибор.

Graphic
Подключение к OwenCloud

Для подключения к OwenCloud следует использовать интерфейс Ethernet. Обмен с OwenCloud возможен одновременно с опросом прибора по Modbus TCP.

Настройка подключения к OwenCloud описана в разделе.

Подключение к ПК

Для подключения к ПК прибор следует использовать кабель microUSB — USB или кабель Ethernet.

Graphic
Схема подключения прибора к ПК по USB
Graphic
Схема подключения прибора к ПК по Ethernet
Graphic
Схема подключения прибора к ПК по RS-485

Эксплуатация

Управление и индикация

На лицевой панели прибора расположены (см. рисунок ниже):

  • цветной графический экран;

  • шесть кнопок;

  • пять светодиодов;

  • крышка.

Graphic
Лицевая панель прибора (крышка справа показана в открытом положении)

Под крышкой расположены:

  • разъем для подключения модулей расширения;

  • переключатель Работа/Стоп;

  • microUSB порт для программирования прибора.

Переключатель Работа/Стоп
Положение переключателяФункция
РаботаПользовательская программа выполняется
СтопПользовательская программа остановлена. Можно обновить встроенное ПО прибора (разделе). Или заменить пользовательскую программу, если она вызывает некорректную работу прибора
Прибор работает в режиме модуля ввода/вывода (см. раздел)

Функции кнопок делятся на базовые и программируемые. Базовые функции приведены в таблице ниже. Программируемые описаны в разделе.

Функции кнопок
КнопкаНазначение
Режим просмотра
Graphic и Graphic

Переход или перелистывание в пределах текущего экрана.

Переход к следующему экрану, когда зона выделения на границе текущего экрана

GraphicНажать и удерживать 6 секунд для входа в системное меню
GraphicНажать и удерживать 6 секунд для выхода из системного меню
Graphic + GraphicПереход на экран аварий
Режим редактирования
Graphic

Вход в режим редактирования на текущем экране.

При нажатии становится доступным для редактирования первый доступный для редактирования элемент на экране, начинает мигать

Применение изменённого значения в режиме редактирования и переход к следующему компоненту

Graphic и Graphic

Изменение значения параметра.

Для ускорения изменения значения нажать и удерживать

Graphic

Перемещение по разрядам — на разряд выше. При подходе к максимальному разряду перескакивает на самый младший

Graphic + Graphic

Перемещение на разряд ниже

Graphic + Graphic

Перемещение на разряд выше

GraphicВыход из режима редактирования без сохранения отредактированного значения
Graphic

Выход из режима редактирования и сохранение отредактированного значения

Назначение светодиодов
СветодиодЦветСтатусНазначение

Graphic

Зеленый

СветитсяНа клеммы 1 и 2 подано питание
GraphicКрасныйСветитсяАвария (см. раздел)
МигаетНеисправности не блокирующие работу прибора. Ошибку можно определить считыванием битов регистра 61620 (0xF0B4). Подробнее см. раздел. Если считывание регистров недоступно, то прибор находится в режиме загрузчика (см. раздел)
МигаетОдновременное мигание со светодиодом Graphic — элемент питания часов реального времени разряжен
F1ЗеленыйОпределяется при программировании
F2Зеленый в приборах, выпущенных до 04.24, после 04.24 - красный

Graphic

Красный

Зеленый

Не светится

Мигает

Переключатель в положении Стоп. Прибор работает в режиме модуля ввода–вывода (см. раздел)

Красный

Зеленый

Не светится

Не светится

Программа пользователя не загружена. Прибор не настроен

Красный

Зеленый

Светится

Не светится

Нет питания на клеммах 1 и 2. Питание от USB

Красный

Зеленый

Не светится

Светится

Переключатель в положении Работа. Программа пользователя выполняется

Красный

Зеленый

Мигает

Светится

Переключатель в положении Работа. Одновременное мигание со светодиодом Graphic — элемент питания часов реального времени разряжен

Красный

Зеленый

Не светится

Мигает

Переключатель в положении Стоп. Одновременное мигание со светодиодом Graphic — элемент питания часов реального времени разряжен

Красный

Зеленый

Мигает

Не светится

Прибор не настроен. Одновременное мигание со светодиодом Graphic — элемент питания часов реального времени разряжен

Красный

Зеленый

Мигает с периодом

Светится

Авария (см. раздел)

Красный

Зеленый

Светится

Светится

Прибор в режиме ожидания загрузки встроенного ПО

Красный

Зеленый

Мигает

Мигает

Загрузка встроенного ПО

Graphic
Диаграмма индикации критических и некритических аварий

Твкл = Твыкл = 0,5 с

Тпаузы = 3 с

Индикация критических аварий

Количество импульсов

Описание

1

Ошибка микроконтроллера

2

3

4

Не инициализируется внутренняя шина

5

Неисправен генератор импульсов встроенных часов реального времени

6

Циклические перезагрузки из за некорректной программы пользователя

7

Ошибка Retain

8

Не хватило памяти для программы пользователя

9

Некорректная версия платы

Индикация некритических аварий

Количество импульсов

Описание

1

Разряжена батарея питания часов реального времени и retain-памяти

3

Неисправен интерфейс Ethernet

Более подробно об авариях см. раздел.

Graphic
Под лицевой панелью

Под лицевой панелью расположены:

  1. слот с батареей RTC.
  2. сервисная кнопка (см. раздел).

Сервисная кнопка
Длительность нажатияФункция
2 с

Настройка IP-адреса (см. раздел)

12 сВосстановление заводских значений параметров прибора (см. раздел)

Порт Ethernet снабжен двумя светодиодами. Описание светодиодов и режимов их индикации приведено на рисунке и в таблице ниже.

Graphic
Расположение светодиодов порта Ethernet: 1) оранжевый, 2) зеленый
Назначение светодиодов порта Ethernet
СветодиодСтатусНазначение
ОранжевыйНе светитсяСкорость обмена 10 Мбит/с
Светится*Скорость обмена 100 Мбит/с
Примечание
* Если провод не подключен, то указывает, что на интерфейс Ethernet подано питание
ЗеленыйНе светитсяНет связи
СветитсяСвязь установлена
МигаетИдет обмен данными

Функции ЖКИ

ЖКИ предназначен для отображения графической и текстовой информации. На экранах пользовательской визуализации можно создавать элементы управления. В OwenLogic можно создавать несколько связанных друг с другом переходами экранов, отображающими состояние управляемого объекта и с размещенными на них элементами управления.

Поддерживаются следующие виды графических объектов:

  • индикатор;

  • прогресс-бар;

  • динамический текст;

  • текстовая метка;

  • ввод/вывод float/int

и т. п.

полный список поддерживаемых элементов указан в Руководстве пользователя OwenLogic.

ЖКИ может отображать набор символов в кодировке Windows-1251. Поддерживаются дополнительные символы (см. таблицу ниже)

Дополнительные символы
ОписаниеСимвол
Градус°
Вторая степень²
Третья степень³
Альфа прописная*α
Бета прописная*β
Гамма прописная*γ
Дельта заглавная*Δ
Эта прописная*η
Сигма заглавная*Σ
Тау прописная*τ
Фи прописная*φ
Пси прописная*ψ
Омега заглавная*Ω
Номер
Примечание
* Поддержаны, начиная с версии 2.8.361 OwenLogic.

В случае, если символы не поддерживаются, Редактор экранов отобразит предупреждение:

Graphic
Предупреждение о неподдерживаемых символах

Элементы экрана могут быть редактируемыми и нередактируемыми в зависимости от типа элемента и его свойств, заданных с помощью OwenLogic.

Работа с меню

В приборе предусмотрены меню пользователя и системное меню.

Меню пользователя создается в OwenLogic с помощью «Менеджера экранов». Переходы могут осуществляться с помощью кнопок или по изменению переменной. Системное меню присутствует в приборе всегда, даже если в него не записана пользовательская программа. Принципы работы с меню пользователя и с системным меню одинаковы.

Работа с меню возможна в следующих режимах:

  • отображения;
  • редактирования.

В режиме отображения можно просматривать параметры прибора или меню пользователя.

В режиме редактирования можно редактировать параметры прибора в системном меню или пользовательскую программу с лицевой панели без остановки работы прибора. При повторном входе в режим редактирования выбирается последний редактируемый элемент.

Системное меню

Системное меню прибора доступно в случае отсутствия пользовательской программы в памяти прибора и с любого экрана программы. Для вызова системного меню следует удерживать кнопку Graphic в течение шести секунд. Для выхода из системного меню следует удерживать кнопку Graphic в течение шести секунд.

Структура системного меню приведена на рисунке ниже.

Graphic
Структура системного меню
Описание пунктов системного меню
ЭлементОписание
ЛогикаОтображаются значения времени цикла и статус программы пользователя
Дискретные входыПараметры аналогичны описанным в разделе
Быстрые дискретные входыПараметры аналогичны описанным в разделе
Дискретные выходыПараметры аналогичны описанным в разделе
Дискретно-аналоговые входыПараметры аналогичны описанным в разделе
Аналоговые выходыПараметры аналогичны описанным в разделе
Пользовательские светодиодыПараметры аналогичны описанным в разделе
Modbus SlaveПараметры аналогичны описанным в разделе
Мастер ModbusВ узле приведены параметры опроса приборов, аналогично настроенным в OwenLogic
OwenCloudПараметры и разрешения для OwenCloud (см. разделе)
Настройки порта RS-485 1 (2)Параметры аналогичны описанным в разделе
АрхивПараметры аналогичны описанным в разделе
Сетевые настройкиСодержит настройки Ethernet (см. раздел)
Часы реального времениПараметры аналогичны описанным в разделе
БатареяПараметры аналогичны описанным в разделе
Статус прибораПараметры аналогичны описанным в разделе
Настройки прибораПараметры аналогичны описанным в разделе
ПарольПараметры аналогичны описанным в разделе
ЧасыПараметры аналогичны описанным в разделе
ПРМ-х.хВ данных узлах представлены параметры модулей расширения и их статусы, если они настроены в OwenLogic. Если модули не подключены, то узлы скрыты
Примечание
Если в прибор записана программа пользователя, то в дереве настроек отображается ветка Логика. Внутри находится единственный неизменяемый параметр Время цикла, мс.

Экран аварий

На экране аварий отображаются аварии из битов регистра статуса (см. таблицу). Переход на экран аварий производится по сочетанию кнопок Graphic + Graphic.

Переходы между экранами

Для перемещения между экранами используются переходы, создаваемые пользователем с помощью OwenLogic. Переходы могут осуществляться по нажатию кнопок и по изменению переменной. Более подробно о переходах и их работе см. справку OwenLogic.

Примечание
Во время создания переходов следует помнить, что приоритет отдается командам перехода на экран.
Пример

Назначение на кнопки Graphic и Graphic перехода на другой экран не позволяет пролистывать строки или переходить на элементы на текущем экране. Назначение на кнопку Graphic перехода на другой экран не позволяет перейти в режим редактирования.

Программируемые функции кнопок

Кроме основных (см. таблицу), кнопкам прибора можно назначить дополнительные действия. Назначение дополнительных действий производится с помощью Редактора кнопок в OwenLogic. Программируемые пользователем действия назначаются на:

  • короткое нажатие (менее 2 с);

  • длинное нажатие (более 2 с);

  • удержание.

Примечание
В OwenLogic нельзя одновременно задать действия для короткое/длинное нажатий и удержания.

Действия, назначаемые кнопке:

  • переход на экран;

  • изменение значения переменной.

Режим автоформатирования

Режим автоформатирования отображает переменную с максимальной точностью в зависимости от количества зарезервированных знаков. Режим автоформатирования работает только для вещественных переменных. Режим можно включить установив в поле «Знаков после запятой» значение Авто в OwenLogic.

Режимы работы

По включению напряжения питания (основного или от USB), прибор анализирует положение переключателя Работа/Стоп. Далее прибор проводит самодиагностику.

Для программирования прибора достаточно питания от USB. При питании от USB, не работают входы, выходы и интерфейсы RS-485 и Ethernet.

Пользовательская программа, если она записана в память прибора, начинает выполняться сразу после подачи основного питания на клеммы 1 и 2.

Graphic
Схема переходов между режимами работы

Рабочий режим

В рабочем режиме прибор повторяет следующую последовательность (рабочий цикл):

  • начало цикла;
  • чтение состояния входов;
  • выполнение кода пользовательской программы;
  • запись состояния выходов;
  • переход в начало цикла.

В начале цикла прибор считывает состояния входов и копирует считанные значения в область памяти входов. Далее выполняется код пользовательской программы, которая работает с копией значений входов.

Аварийный режим

При возникновении аварийной ситуации прибор переходит в аварийный режим.

В таблице ниже представлены примеры аварийных ситуаций и рекомендации по их устранению.

Неисправности и способы их устранения

Индикация светодиода Graphic

Причина

Рекомендации по устранению

СветитсяПрибор неисправенОбратиться в сервисный центр
МигаетЕсли мигает и светодиод

Graphic

— элемент питания часов реального времени разряжен
Заменить элемент питания (см. раздел)

Если неисправность позволяет подключиться к прибору и по Modbus прочитать регистр статуса, то можно узнать вид неисправности. Назначение его бит приведено в таблице ниже.

Назначение бит регистра статуса 61620 (0xF0B4)

Номер бита

Назначение

Бит 0

Неисправность дискретных входов

Бит 1

Неисправность дискретных выходов

Бит 2

Неисправность аналоговых входов

Бит 3

Неисправность аналоговых выходов

Бит 4

Неисправность интерфейса Ethernet

Бит 5

Не используется

Бит 6

Неисправность интерфейса USB

Бит 7

Не используется

Бит 8

Неисправность RS-485 #1

Бит 9

Неисправность RS-485 #2

Бит 10

Не используется

Бит 11

Неисправность часов реального времени

Бит 12

Отсутствует напряжение на клеммах 1 и 2

Бит 13

Ошибка встроенного ПО. Или цикл логики превышает 100 мс

Бит 14

Не используется

Бит 15

Ошибка операционной системы

Бит 16

Неисправность файловой системы

Бит 17

Встроенный накопитель отформатирован

Бит 18

Нет оперативных параметров

Бит 19

Неисправность встроенного ПО. Или несоответствие версий программы пользователя и встроенного ПО

Бит 20

Программа пользователя отсутствует, настройки сброшены на заводские

Бит 21

Нет архива. Или ошибка записи архива. Или отключена запись параметров в архив из OwenLogic

Бит 22

Переключатель в положении Стоп

Бит 23

Программа пользователя отсутствует

Бит 24

Программа пользователя остановлена

Бит 25

Не используется

Бит 26

Не используется

Бит 27

Не используется

Бит 28

Не используется

Бит 29

Не используется

Бит 30

Не используется

Бит 31

Неисправность программы пользователя в retain-памяти

Режим модуля ввода-вывода

Если переключатель Работа/Стоп перевести в положение Стоп, то пользовательская программа будет остановлена. И прибор начнет работать в режиме модуля ввода-вывода.

В режиме модуля ввода-вывода доступен опрос входов и запись выходов, но сетевые переменные недоступны.

Режим загрузчика

Примечание
Для нормально функционирующего прибора обновление встроенного ПО следует производить согласно разделу.

В режиме загрузчика прибор ждет обновление встроенного ПО по интерфейсу USB. Остальные функции прибора не работают.

Прибор переходит в режим загрузчика:

  • если невозможен запуск встроенного ПО в штатном режиме (см. раздел);

  • если пользователь принудительно сменил режим работы прибора.

Для принудительного перевода прибора в режим загрузчика следует:

  1. Снять питание с прибора. Отключить кабель USB, если он был подключен.

  2. Нажать и удерживать сервисную кнопку.

  3. Подать питание на клеммы 1 и 2 или подключить кабель USB.

Работа с модулями расширения

Чтобы увеличить количество входов/выходов прибора, следует воспользоваться модулями расширения линейки ПРМ (см. раздел). Работа модулей расширения определяется пользовательской программой, написанной в OwenLogic.

Время опроса входов и записи состояния выходов модулей расширения определяется сложностью пользовательской программы и не отличается от времени работы с встроенными в прибор входами/выходами.

Часы реального времени и retain-память

Прибор оснащен встроенными часами реального времени. Все настройки прибора хранятся в retain-памяти. При наличии питания прибора часы реального времени и retain-память питаются от подаваемого на контакты 1 и 2 напряжения.

Если основное питание отсутствует, то часы реального времени и retain-память прибора питаются от сменного элемента типоразмера CR2032 (далее — «батарея»). Показания часов реального времени используется для записи в архив.

Энергии полностью заряженной батареи хватает на непрерывное питание часов реального времени и retain-памяти в течение 5 лет. В случае эксплуатации прибора при температуре на границах рабочего диапазона время непрерывного питания от батареи сокращается.

Ошибки, связанные с часами реального времени и retain-памятью, приведены в разделе.

При разряженной батарее часы реального времени и настройки, что были изменены в процессе работы по Modbus или программы пользователя, будут сброшены в случае пропадания основного питания. Если настройки сбросились, то следует заменить батарею (см. раздел).

Уровень заряда батареи можно проверить с помощью OWEN Configurator или OwenLogic.

Настройка даты и времени с лицевой панели

Для настройки даты и времени с помощью кнопок на лицевой панели следует:

  1. Нажать и удерживать кнопку Graphic. На экране появится системное меню.

  2. Выбрать пункт Часы реального времени, нажав кнопку Graphic.

  3. Нажать кнопку Graphic.

  4. Курсор начнет мигать в параметре Время и дата (UTC) у единиц секунд. С помощью кнопок Graphic и Graphic можно увеличивать или уменьшать значение. Для перехода к следующему разряду следует нажать кнопку Graphic. Для сохранения измененных значений следует нажать кнопку Graphic.

  5. Если нужно изменить параметр Часовой пояс, то с помощью кнопок Graphic и Graphic выбрать нужное значение и подтвердить выбор, нажав кнопку Graphic.

Для выхода из системного меню нажать и удерживать кнопку Graphic.

Обновление встроенного ПО

Внимание
Для обновления встроенного ПО следует отключить прибор от облачного сервиса OwenCloud.
Примечание
При обновлении встроенного ПО прибора через OwenLogic программа пользователя в приборе будет удалена.

В приборе можно обновлять встроенное ПО через интерфейсы программирования.

Для смены встроенного ПО следует:

  1. Подготовить ПК с ОС Windows Vista/7/8/10/11, установленным OWEN Configurator или OwenLogic и доступом в Интернет;

  2. Установить USB драйвер прибора на ПК.

Обновление с помощью OwenLogic
Примечание
OwenLogic может обновить ПО прибора во время записи пользовательской программы.

Если встроенное ПО не получается автоматически обновить при загрузке проекта OwenLogic, то можно обновить принудительно. Данный способ может потребоваться, если прибор не определяется в OwenLogic, но прибор корректно отображается в Диспетчере устройств.

Для принудительной смены встроенного ПО следует:

  1. Подключить прибор к ПК с помощью кабеля microUSB — USB или Ethernet.

  2. Далее:
    • если прибор подключен по USB, проверить в диспетчере устройств Windows какой СОМ-порт был присвоен прибору;

    • если прибор подключен по Ethernet, проверить сетевые настройки с помощью ПО OWEN Configurator.

  3. В OwenLogic указать уточненные в п. 2 значения в меню Прибор/Настройка порта.

  4. В меню OwenLogic выбрать пункт Прибор/Обновить встроенное ПО.

  5. OwenLogic отобразит окно, в котором будет указана модификация прибора и предложение обновить встроенное ПО.

    Примечание

    Если окно не появилось или в нем нет нужно модификации, то следует обратиться в сервисный центр.

  6. Запустить процесс смены встроенного нажатием кнопки Да.

Разрыв связи между ПК и прибором во время обновления приведет к повреждению встроенного ПО и неработоспособности прибора. Для восстановления работоспособности прибора следует повторить операцию принудительного обновления встроенного ПО. Если вышеперечисленные действия не помогли следует прибор перевести в режим «загрузчика» (см. раздел) и повторить процедуру принудительной смены встроенного ПО.

Техническое обслуживание

Техническое обслуживание

Во время выполнения работ по техническому обслуживанию прибора следует соблюдать требования безопасности из раздела.

Техническое обслуживание прибора проводится не реже одного раза в 6 месяцев и включает следующие процедуры:

  • проверка крепления прибора;
  • проверка винтовых соединений;
  • удаление пыли и грязи с клеммника прибора.

Замена элемента питания

Примечание
Во время смены элемента следует не отключать питающее напряжение от прибора. Иначе значения часов реального времени и параметров, записанных в retain-память, будут сброшены.

Для замены элемента питания следует:

  1. Открыть крышку с лицевой панелью.

  2. Отверткой подцепить батарейку справа и, придерживая ее, достать из прибора;

  3. Соблюдая полярность, вставить новую батарейку.

  4. Закрыть крышку.

Graphic
Замена элемента питания

Маркировка

На корпус прибора нанесены:

  • наименование прибора;
  • товарный знак предприятия-изготовителя;

  • степень защиты корпуса по ГОСТ 14254;
  • род питающего тока и напряжение питания;
  • потребляемая мощность;
  • маркировка класса защиты от поражения электрическим током по ГОСТ IEC 61131-2-2012;
  • единый знак обращения продукции на рынке Евразийского экономического союза;
  • страна-изготовитель;
  • заводской номер;
  • МАС-адрес;

  • QR-код, содержащий заводской номер прибора;

  • указания по монтажу;

  • месяц и год изготовления.

На потребительскую тару нанесены:

  • наименование прибора;
  • товарный знак предприятия-изготовителя;

  • единый знак обращения продукции на рынке Евразийского экономического союза;
  • почтовый адрес предприятия-изготовителя;

  • страна-изготовитель;
  • заводской номер;
  • штрих-код;

  • месяц и год изготовления.

Упаковка

Упаковка прибора производится в соответствии с ГОСТ 23088-80 в потребительскую тару, выполненную из коробочного картона по ГОСТ 7933-89.

Упаковка прибора при пересылке почтой производится по ГОСТ 9181-74.

Комплектность

НаименованиеКоличество
Прибор 1 шт.
Руководство по эксплуатации1 экз.
Паспорт и Гарантийный талон1 экз.
Комплект клеммных соединителей 1 к-т

Примечание
Изготовитель оставляет за собой право внесения дополнений в комплектность прибора.

Транспортирование и хранение

Прибор должен транспортироваться в закрытом транспорте любого вида. В транспортных средствах тара должна крепиться согласно правилам, действующим на соответствующих видах транспорта.

Транспортирование приборов в упаковке предприятия-изготовителя должно соответствовать следующим условиям:

  • температура окружающего воздуха от минус 40 до плюс 70 °С;

  • относительная влажность от 10 до 95 % без конденсации влаги;

  • атмосферное давление не менее 80 кПа (эквивалентно высоте 3000 м над уровнем моря)

Прибор следует перевозить в транспортной таре поштучно или в контейнерах с соблюдением мер защиты от ударов и вибраций.

Условия хранения в таре на складе изготовителя и потребителя должны соответствовать условиям 1 по ГОСТ 15150-69. В воздухе не должны присутствовать агрессивные примеси.

Прибор следует хранить на стеллажах.

Гарантийные обязательства

Изготовитель гарантирует соответствие прибора требованиям ТУ при соблюдении условий эксплуатации, транспортирования, хранения и монтажа.

Гарантийный срок эксплуатации – 24 месяца со дня продажи.

В случае выхода прибора из строя в течение гарантийного срока при соблюдении условий эксплуатации, транспортирования, хранения и монтажа предприятие-изготовитель обязуется осуществить его бесплатный ремонт или замену.

Порядок передачи прибора в ремонт содержится в паспорте и в гарантийном талоне.

Назначение контактов клеммника

Graphic
Расположение контактов для ПР205-230.1211.22.0.0
Назначение контактов клеммной колодки ПР205-230.1211.22.0.0

Номер контакта

Назначение контактов

Номер контакта

Назначение контактов

1

Входное напряжение питания (230 В)

5

Клемма I AI1

2

Входное напряжение питания (230 В)

6

Клемма U AI1

3Клемма «–» встроенного источника питания 24 В7Общая клемма универсальных входов 1 и 2
4Клемма «+» встроенного источника питания 24 В8

Клемма U AI2

15Общая клемма дискретных входов 1...49

Клемма I AI2

16

Дискретный вход 1 (24 В)

10

Клемма I AI3

17

Дискретный вход 2 (24 В)

11

Клемма U AI3

18

Дискретный вход 3 (24 В)

12Общая клемма универсальных входов 3 и 4
19

Дискретный вход 4 (24 В)

13

Клемма U AI4

20Общая клемма дискретных входов 5...614

Клемма I AI4

21

Дискретный вход 5 (24 В)

38

Дискретный выход 1

22

Дискретный вход 6 (24 В)

39Общая клемма дискретных выходов 1 и 2
23Общая клемма быстрых дискретных входов 1...240

Дискретный выход 2

24

Быстрый дискретный вход 1(24 В)

41

Дискретный выход 3

25

Быстрый дискретный вход 2 (24 В)

42Общая клемма дискретных выходов 3 и 4
26Клемма «V+» питания аналоговых выходов 1...343

Дискретный выход 4

27Клемма «V-» питания аналоговых выходов 1...344

Дискретный выход 5

28Клемма аналогового выхода 145Общая клемма дискретных выходов 5 и 6
29Клемма «V-» аналогового выхода 146

Дискретный выход 6

30Клемма аналогового выхода 247

Дискретный выход 7

31Клемма «V-» аналогового выхода 248Общая клемма дискретных выходов 7 и 8
32Клемма аналогового выхода 349

Дискретный выход 8

33Клемма «V-» аналогового выхода 3
Graphic
Расположение контактов для ПР205-230.1211.22.2.0
Примечание

Выходы DO1...DO6 — выходы типа «электромагнитное реле».

Выходы DO7...DO8 — выходы типа «транзистор n-p-n типа».

Назначение контактов клеммной колодки ПР205-230.1211.22.2.0

Номер контакта

Назначение контактов

Номер контакта

Назначение контактов

1

Входное напряжение питания (230 В)

36Клемма B интерфейса RS-485 (2)

2

Входное напряжение питания (230 В)

37Клемма A интерфейса RS-485 (2)
3Клемма «–» встроенного источника питания 24 В5

Клемма I AI1

4Клемма «+» встроенного источника питания 24 В6

Клемма U AI1

15Общая клемма дискретных входов 1...47Общая клемма универсальных входов 1 и 2
16

Дискретный вход 1 (24 В)

8

Клемма U AI2

17

Дискретный вход 2 (24 В)

9

Клемма I AI2

18

Дискретный вход 3 (24 В)

10

Клемма I AI3

19

Дискретный вход 4 (24 В)

11

Клемма U AI3

20Общая клемма дискретных входов 5...612Общая клемма универсальных входов 3 и 4
21

Дискретный вход 5 (24 В)

13

Клемма U AI4

22

Дискретный вход 6 (24 В)

14

Клемма I AI4

23Общая клемма быстрых дискретных входов 1...238

Дискретный выход 1

24

Быстрый дискретный вход 1(24 В)

39Общая клемма дискретных выходов 1 и 2
25

Быстрый дискретный вход 2 (24 В)

40

Дискретный выход 2

26Клемма «V+» питания аналоговых выходов 1...341

Дискретный выход 3 (24 В)

27Клемма «V-» питания аналоговых выходов 1...342Общая клемма дискретных выходов 3 и 4
28Клемма аналогового выхода 143

Дискретный выход 4

29Клемма «V-» аналогового выхода 144

Дискретный выход 5

30Клемма аналогового выхода 245Общая клемма дискретных выходов 5 и 6
31Клемма «V-» аналогового выхода 246

Дискретный выход 6

32Клемма аналогового выхода 347Транзисторный выход 1 (коллектор)
33Клемма «V-» аналогового выхода 348Транзисторные выходы 1 и 2 (общий эмиттер)
35Клемма B интерфейса RS-485 (1)49Транзисторный выход 2 (коллектор)
36Клемма A интерфейса RS-485 (1)
Graphic
Расположение контактов для ПР205-230.1211.26.0.0
Примечание

Выходы DO1...DO6 — выходы типа «электромагнитное реле».

Выходы DO7...DO8 — выходы типа «транзистор n-p-n типа».

Назначение контактов клеммной колодки ПР205-230.1211.26.0.0

Номер контакта

Назначение контактов

Номер контакта

Назначение контактов

1

Входное напряжение питания (230 В)

5

Клемма I AI1

2

Входное напряжение питания (230 В)

6

Клемма U AI1

3Клемма «–» встроенного источника питания 24 В7Общая клемма универсальных входов 1 и 2
4Клемма «+» встроенного источника питания 24 В8

Клемма U AI2

15Общая клемма дискретных входов 1...49

Клемма I AI2

16

Дискретный вход 1 (24 В)

10

Клемма I AI3

17

Дискретный вход 2 (24 В)

11

Клемма U AI3

18

Дискретный вход 3 (24 В)

12Общая клемма универсальных входов 3 и 4
19

Дискретный вход 4 (24 В)

13

Клемма U AI4

20Общая клемма дискретных входов 5...614

Клемма I AI4

21

Дискретный вход 5 (24 В)

38

Дискретный выход 1

22

Дискретный вход 6 (24 В)

39Общая клемма дискретных выходов 1 и 2
23Общая клемма быстрых дискретных входов 1...240

Дискретный выход 2

24

Быстрый дискретный вход 1(24 В)

41

Дискретный выход 3

25

Быстрый дискретный вход 2 (24 В)

42Общая клемма дискретных выходов 3 и 4
26Клемма «V+» питания аналоговых выходов 1...343

Дискретный выход 4

27Клемма «V-» питания аналоговых выходов 1...344

Дискретный выход 5

28Клемма аналогового выхода 145Общая клемма дискретных выходов 5 и 6
29Клемма «V-» аналогового выхода 146

Дискретный выход 6

30Клемма аналогового выхода 247Транзисторный выход 1 (коллектор)
31Клемма «V-» аналогового выхода 248Транзисторные выходы 1 и 2 (общий эмиттер)
32Клемма аналогового выхода 349Транзисторный выход 2 (коллектор)
33Клемма «V-» аналогового выхода 3
Graphic
Расположение контактов для ПР205-230.1211.26.2.0
Примечание

Выходы DO1...DO6 — выходы типа «электромагнитное реле».

Выходы DO7...DO8 — выходы типа «транзистор n-p-n типа».

Назначение контактов клеммной колодки ПР205-230.1211.26.2.0

Номер контакта

Назначение контактов

Номер контакта

Назначение контактов

1

Входное напряжение питания (230 В)

36Клемма B интерфейса RS-485 (2)

2

Входное напряжение питания (230 В)

37Клемма A интерфейса RS-485 (2)
3Клемма «–» встроенного источника питания 24 В5

Клемма I AI1

4Клемма «+» встроенного источника питания 24 В6

Клемма U AI1

15Общая клемма дискретных входов 1...47Общая клемма универсальных входов 1 и 2
16

Дискретный вход 1 (24 В)

8

Клемма U AI2

17

Дискретный вход 2 (24 В)

9

Клемма I AI2

18

Дискретный вход 3 (24 В)

10

Клемма I AI3

19

Дискретный вход 4 (24 В)

11

Клемма U AI3

20Общая клемма дискретных входов 5...612Общая клемма универсальных входов 3 и 4
21

Дискретный вход 5 (24 В)

13

Клемма U AI4

22

Дискретный вход 6 (24 В)

14

Клемма I AI4

23Общая клемма быстрых дискретных входов 1...238

Дискретный выход 1

24

Быстрый дискретный вход 1(24 В)

39Общая клемма дискретных выходов 1 и 2
25

Быстрый дискретный вход 2 (24 В)

40

Дискретный выход 2

26Клемма «V+» питания аналоговых выходов 1...341

Дискретный выход 3

27Клемма «V-» питания аналоговых выходов 1...342Общая клемма дискретных выходов 3 и 4
28Клемма аналогового выхода 143

Дискретный выход 4

29Клемма «V-» аналогового выхода 144

Дискретный выход 5

30Клемма аналогового выхода 245Общая клемма дискретных выходов 5 и 6
31Клемма «V-» аналогового выхода 246

Дискретный выход 6

32Клемма аналогового выхода 347Транзисторный выход 1 (коллектор)
33Клемма «V-» аналогового выхода 348Транзисторные выходы 1 и 2 (общий эмиттер)
34Клемма B интерфейса RS-485 (1)49Транзисторный выход 2 (коллектор)
35Клемма A интерфейса RS-485 (1)
Graphic
Расположение контактов для ПР205-24.1211.02.0.0
Назначение контактов клеммной колодки ПР205-24.1211.02.0.0

Номер контакта

Назначение контактов

Номер контакта

Назначение контактов

1

Клемма «–»

5

Клемма I AI1

2

Клемма «+»

6

Клемма U AI1

15Общая клемма дискретных входов 1...47Общая клемма универсальных входов 1 и 2
16

Дискретный вход 1 (24 В)

8

Клемма U AI2

17

Дискретный вход 2 (24 В)

9

Клемма I AI2

18

Дискретный вход 3 (24 В)

10

Клемма I AI3

19

Дискретный вход 4 (24 В)

11

Клемма U AI3

20Общая клемма дискретных входов 5...612Общая клемма универсальных входов 3 и 4
21

Дискретный вход 5 (24 В)

13

Клемма U AI4

22

Дискретный вход 6 (24 В)

14

Клемма I AI4

23Общая клемма быстрых дискретных входов 1...238

Дискретный выход 1

24

Быстрый дискретный вход 1(24 В)

39Общая клемма дискретных выходов 1 и 2
25

Быстрый дискретный вход 2 (24 В)

40

Дискретный выход 2

26Клемма «V+» питания аналоговых выходов 1...341

Дискретный выход 3

27Клемма «V-» питания аналоговых выходов 1...342Общая клемма дискретных выходов 3 и 4
28Клемма аналогового выхода 143

Дискретный выход 4

29Клемма «V-» аналогового выхода 144

Дискретный выход 5

30Клемма аналогового выхода 245Общая клемма дискретных выходов 5 и 6
31Клемма «V-» аналогового выхода 246

Дискретный выход 6

32Клемма аналогового выхода 347

Дискретный выход 7

33Клемма «V-» аналогового выхода 348Общая клемма дискретных выходов 7 и 8
49

Дискретный выход 8

Graphic
Расположение контактов для ПР205-24.1211.02.2.0
Назначение контактов клеммной колодки ПР205-24.1211.02.2.0

Номер контакта

Назначение контактов

Номер контакта

Назначение контактов

1

Клемма «–»

36Клемма B интерфейса RS-485 (2)

2

Клемма «+»

37Клемма A интерфейса RS-485 (2)
15Общая клемма дискретных входов 1...45

Клемма I AI1

16

Дискретный вход 1 (24 В)

6

Клемма U AI1

17

Дискретный вход 2 (24 В)

7Общая клемма универсальных входов 1 и 2
18

Дискретный вход 3 (24 В)

8

Клемма U AI2

19

Дискретный вход 4 (24 В)

9

Клемма I AI2

20Общая клемма дискретных входов 5...610

Клемма I AI3

21

Дискретный вход 5 (24 В)

11

Клемма U AI3

22

Дискретный вход 6 (24 В)

12Общая клемма универсальных входов 3 и 4
23Общая клемма быстрых дискретных входов 1...213

Клемма U AI4

24

Быстрый дискретный вход 1(24 В)

14

Клемма I AI4

25

Быстрый дискретный вход 2 (24 В)

38

Дискретный выход 1

26Клемма «V+» питания аналоговых выходов 1...339Общая клемма дискретных выходов 1 и 2
27Клемма «V-» питания аналоговых выходов 1...340

Дискретный выход 2

28Клемма аналогового выхода 141

Дискретный выход 3

29Клемма «V-» аналогового выхода 142Общая клемма дискретных выходов 3 и 4
30Клемма аналогового выхода 243

Дискретный выход 4

31Клемма «V-» аналогового выхода 244

Дискретный выход 5

32Клемма аналогового выхода 345Общая клемма дискретных выходов 5 и 6
33Клемма «V-» аналогового выхода 346

Дискретный выход 6

34Клемма B интерфейса RS-485 (1)47

Дискретный выход 7

35Клемма A интерфейса RS-485 (1)48Общая клемма дискретных выходов 7 и 8
49

Дискретный выход 8

Graphic
Расположение контактов для ПР205-24.1211.06.0.0
Примечание

Выходы DO1...DO6 — выходы типа «электромагнитное реле».

Выходы DO7...DO8 — выходы типа «транзистор n-p-n типа».

Назначение контактов клеммной колодки ПР205-24.1211.06.0.0

Номер контакта

Назначение контактов

Номер контакта

Назначение контактов

1

Клемма «–»

5

Клемма I AI1

2

Клемма «+»

6

Клемма U AI1

15Общая клемма дискретных входов 1...47Общая клемма универсальных входов 1 и 2
16

Дискретный вход 1 (24 В)

8

Клемма U AI2

17

Дискретный вход 2 (24 В)

9

Клемма I AI2

18

Дискретный вход 3 (24 В)

10

Клемма I AI3

19

Дискретный вход 4 (24 В)

11

Клемма U AI3

20Общая клемма дискретных входов 5...612Общая клемма универсальных входов 3 и 4
21

Дискретный вход 5 (24 В)

13

Клемма U AI4

22

Дискретный вход 6 (24 В)

14

Клемма I AI4

23Общая клемма быстрых дискретных входов 1...238

Дискретный выход 1

24

Быстрый дискретный вход 1(24 В)

39Общая клемма дискретных выходов 1 и 2
25

Быстрый дискретный вход 2 (24 В)

40

Дискретный выход 2

26Клемма «V+» питания аналоговых выходов 1...341

Дискретный выход 3

27Клемма «V-» питания аналоговых выходов 1...342Общая клемма дискретных выходов 3 и 4
28Клемма аналогового выхода 143

Дискретный выход 4

29Клемма «V-» аналогового выхода 144

Дискретный выход 5

30Клемма аналогового выхода 245Общая клемма дискретных выходов 5 и 6
31Клемма «V-» аналогового выхода 246

Дискретный выход 6

32Клемма аналогового выхода 347Транзисторный выход 1 (коллектор)
33Клемма «V-» аналогового выхода 348Транзисторные выходы 1 и 2 (общий эмиттер)
49Транзисторный выход 2 (коллектор)
Graphic
Расположение контактов для ПР205-24.1211.06.2.0
Примечание

Выходы DO1...DO6 — выходы типа «электромагнитное реле».

Выходы DO7...DO8 — выходы типа «транзистор n-p-n типа».

Назначение контактов клеммной колодки ПР205-24.1211.06.2.0

Номер контакта

Назначение контактов

Номер контакта

Назначение контактов

1

Клемма «–»

36Клемма B интерфейса RS-485 (2)

2

Клемма «+»

37Клемма A интерфейса RS-485 (2)
15Общая клемма дискретных входов 1...45

Клемма I AI1

16

Дискретный вход 1 (24 В)

6

Клемма U AI1

17

Дискретный вход 2 (24 В)

7Общая клемма универсальных входов 1 и 2
18

Дискретный вход 3 (24 В)

8

Клемма U AI2

19

Дискретный вход 4 (24 В)

9

Клемма I AI2

20Общая клемма дискретных входов 5...610

Клемма I AI3

21

Дискретный вход 5 (24 В)

11

Клемма U AI3

22

Дискретный вход 6 (24 В)

12Общая клемма универсальных входов 3 и 4
23Общая клемма быстрых дискретных входов 1...213

Клемма U AI4

24

Быстрый дискретный вход 1(24 В)

14

Клемма I AI4

25

Быстрый дискретный вход 2 (24 В)

38

Дискретный выход 1

26Клемма «V+» питания аналоговых выходов 1...339Общая клемма дискретных выходов 1 и 2
27Клемма «V-» питания аналоговых выходов 1...340

Дискретный выход 2

28Клемма аналогового выхода 141

Дискретный выход 3

29Клемма «V-» аналогового выхода 142Общая клемма дискретных выходов 3 и 4
30Клемма аналогового выхода 243

Дискретный выход 4

31Клемма «V-» аналогового выхода 244

Дискретный выход 5

32Клемма аналогового выхода 345Общая клемма дискретных выходов 5 и 6
33Клемма «V-» аналогового выхода 346

Дискретный выход 6

34Клемма B интерфейса RS-485 (1)47Транзисторный выход 1 (коллектор)
35Клемма A интерфейса RS-485 (1)48Транзисторные выходы 1 и 2 (общий эмиттер)
49Транзисторный выход 2 (коллектор)

Карты регистров Modbus

В таблицах ниже представлены адреса регистров, которые можно загрузить из прибора с помощью OWEN Configurator.

Карта регистров Modbus ПР205-230.1211.26.0.0

Карта регистров Modbus ПР205-230.1211.26.0.0

Параметр

Группа

Адрес

Адрес (hex)

Количество регистров

Функция чтения

Функция записи

Тип данных

Время в миллисек

Часы реального времени

61563

0xF07B

2

3

-

Unsigned 32

Время и дата (UTC)

Часы реального времени

61553

0xF071

2

3

16

Date time 32

Часовой пояс

Часы реального времени

61555

0xF073

1

3

16

Enum 38

Секунды

Переменные даты и времени

61557

0xF075

1

3

-

Unsigned 8

Минуты

Переменные даты и времени

61558

0xF076

1

3

-

Unsigned 8

Часы

Переменные даты и времени

61559

0xF077

1

3

-

Unsigned 8

Дни

Переменные даты и времени

61560

0xF078

1

3

-

Unsigned 8

Месяцы

Переменные даты и времени

61561

0xF079

1

3

-

Unsigned 8

Годы

Переменные даты и времени

61562

0xF07A

1

3

-

Unsigned 16

День недели

Переменные даты и времени

61556

0xF074

1

3

-

Enum 8

MAC адрес

Сетевые настройки

61712

0xF110

9

3

-

String 144

IP адрес

Сетевые настройки

20

0x0014

2

3

16

Unsigned 32

Маска подсети

Сетевые настройки

22

0x0016

2

3

16

Unsigned 32

IP адрес шлюза

Сетевые настройки

24

0x0018

2

3

16

Unsigned 32

DNS сервер 1

Сетевые настройки

12

0x000C

2

3

16

Unsigned 32

DNS сервер 2

Сетевые настройки

14

0x000E

2

3

16

Unsigned 32

Режим DHCP

Сетевые настройки

32

0x0020

1

3

16

Enum 2

Применить сейчас

Сетевые настройки

33

0x0021

1

3

16

Enum 2

Статус подключения

Сетевые настройки

34

0x0022

1

3

-

Enum 4

Напряжение

Батарея

801

0x0321

1

3

-

Unsigned 16

Пороговое напряжение

Батарея

800

0x0320

1

3

-

Unsigned 16

Состояние

Батарея

802

0x0322

1

3

-

Enum 2

Период обновления информации

Статус прибора

61624

0xF0B8

1

3

16

Unsigned 8

Статус

Статус прибора

61620

0xF0B4

2

3

-

Unsigned 32

ПРМ Слот 1.  Название модуля

Статус прибора

6000

0x1770

8

3

-

String 128

ПРМ Слот 1.  Версия ПО модуля

Статус прибора

6016

0x1780

4

3

-

String 64

ПРМ Слот 2.  Название модуля

Статус прибора

6032

0x1790

8

3

-

String 128

ПРМ Слот 2.  Версия ПО модуля

Статус прибора

6048

0x17A0

4

3

-

String 64

Ошибки

Статус прибора

61626

0xF0BA

1

3

-

Unsigned 16

Предупреждения

Статус прибора

61627

0xF0BB

1

3

-

Unsigned 16

Период архивирования

Архив

900

0x0384

1

3

16

Unsigned 16

Количество архивов

Архив

901

0x0385

1

3

16

Unsigned 16

Размер архива

Архив

902

0x0386

1

3

16

Unsigned 16

Последний индекс архива

Архив

903

0x0387

1

3

-

Unsigned 16

Состояние

Дискретные входы

51

0x0033

1

3

-

Unsigned 8

Инверсия

Дискретные входы

57

0x0039

1

3

16

Unsigned 8

Фильтр антидребезга

Вход  1

96

0x0060

1

3

16

Unsigned 8

Фильтр антидребезга

Вход  2

97

0x0061

1

3

16

Unsigned 8

Фильтр антидребезга

Вход  3

98

0x0062

1

3

16

Unsigned 8

Фильтр антидребезга

Вход  4

99

0x0063

1

3

16

Unsigned 8

Фильтр антидребезга

Вход  5

100

0x0064

1

3

16

Unsigned 8

Фильтр антидребезга

Вход  6

101

0x0065

1

3

16

Unsigned 8

Состояние

Быстрые дискретные входы

52

0x0034

1

3

-

Unsigned 8

Инверсия

Быстрые дискретные входы

58

0x003A

1

3

16

Unsigned 8

Режим работы

Вход  1

64

0x0040

1

3

16

Enum 3

Фильтр антидребезга

Вход  1

104

0x0068

1

3

16

Unsigned 8

Фронт захвата импульса

Вход  1

80

0x0050

1

3

16

Enum 2

Сброс счётчика импульсов

Вход  1

224

0x00E0

1

3

16

Enum 2

Диагностика

Вход  1

256

0x0100

1

3

-

Enum 2

Режим работы

Вход  2

65

0x0041

1

3

16

Enum 2

Фильтр антидребезга

Вход  2

105

0x0069

1

3

16

Unsigned 8

Фронт захвата импульса

Вход  2

81

0x0051

1

3

16

Enum 2

Сброс счётчика импульсов

Вход  2

225

0x00E1

1

3

16

Enum 2

Диагностика

Вход  2

257

0x0101

1

3

-

Enum 2

Вход  1

Измеренные значения

160

0x00A0

2

3

-

Unsigned 32

Вход  2

Измеренные значения

162

0x00A2

2

3

-

Unsigned 32

Состояние

Дискретно-аналоговые входы

4000

0x0FA0

1

3

-

Unsigned 8

Инверсия

Дискретно-аналоговые входы

4357

0x1105

1

3

16

Unsigned 8

Режим работы

Вход  1

4100

0x1004

1

3

16

Enum 2

Фильтр антидребезга

Дискретный  режим

4108

0x100C

1

3

16

Unsigned 8

Уровень логического нуля

Дискретный  режим

4111

0x100F

2

3

16

Float 32

Уровень логической единицы

Дискретный  режим

4109

0x100D

2

3

16

Float 32

Тип датчика

Аналоговый  режим

4101

0x1005

1

3

16

Enum 28

Постоянная времени фильтра

Аналоговый  режим

4106

0x100A

2

3

16

Float 32

Нижняя  граница измерения

Аналоговый  режим

4104

0x1008

2

3

16

Float 32

Верхняя  граница измерения

Аналоговый  режим

4102

0x1006

2

3

16

Float 32

Режим работы

Вход  2

4116

0x1014

1

3

16

Enum 2

Фильтр антидребезга

Дискретный  режим

4124

0x101C

1

3

16

Unsigned 8

Уровень логического нуля

Дискретный  режим

4127

0x101F

2

3

16

Float 32

Уровень логической единицы

Дискретный  режим

4125

0x101D

2

3

16

Float 32

Тип датчика

Аналоговый  режим

4117

0x1015

1

3

16

Enum 28

Постоянная времени фильтра

Аналоговый режим

4122

0x101A

2

3

16

Float 32

Нижняя  граница измерения

Аналоговый  режим

4120

0x1018

2

3

16

Float 32

Верхняя  граница измерения

Аналоговый  режим

4118

0x1016

2

3

16

Float 32

Режим работы

Вход  3

4132

0x1024

1

3

16

Enum 2

Фильтр антидребезга

Дискретный  режим

4140

0x102C

1

3

16

Unsigned 8

Уровень логического нуля

Дискретный  режим

4143

0x102F

2

3

16

Float 32

Уровень логической единицы

Дискретный  режим

4141

0x102D

2

3

16

Float 32

Тип датчика

Аналоговый  режим

4133

0x1025

1

3

16

Enum 28

Постоянная времени фильтра

Аналоговый  режим

4138

0x102A

2

3

16

Float 32

Нижняя  граница измерения

Аналоговый  режим

4136

0x1028

2

3

16

Float 32

Верхняя  граница измерения

Аналоговый  режим

4134

0x1026

2

3

16

Float 32

Режим работы

Вход  4

4148

0x1034

1

3

16

Enum 2

Фильтр антидребезга

Дискретный  режим

4156

0x103C

1

3

16

Unsigned 8

Уровень логического нуля

Дискретный  режим

4159

0x103F

2

3

16

Float 32

Уровень логической единицы

Дискретный  режим

4157

0x103D

2

3

16

Float 32

Тип датчика

Аналоговый  режим

4149

0x1035

1

3

16

Enum 28

Постоянная времени фильтра

Аналоговый  режим

4154

0x103A

2

3

16

Float 32

Нижняя  граница измерения

Аналоговый  режим

4152

0x1038

2

3

16

Float 32

Верхняя  граница измерения

Аналоговый  режим

4150

0x1036

2

3

16

Float 32

Вход  1

Измеренные значения

4002

0x0FA2

2

3

-

Float 32

Вход  2

Измеренные значения

4004

0x0FA4

2

3

-

Float 32

Вход  3

Измеренные значения

4006

0x0FA6

2

3

-

Float 32

Вход  4

Измеренные значения

4008

0x0FA8

2

3

-

Float 32

Вход  1

Состояния аналоговых входов

4014

0x0FAE

1

3

-

Enum 11

Вход  2

Состояния аналоговых входов

4015

0x0FAF

1

3

-

Enum 11

Вход  3

Состояния аналоговых входов

4016

0x0FB0

1

3

-

Enum 11

Вход  4

Состояния аналоговых входов

4017

0x0FB1

1

3

-

Enum 11

Изменить состояние

Дискретные выходы

470

0x01D6

1

3

16

Unsigned 8

Состояние

Дискретные выходы

468

0x01D4

1

3

-

Unsigned 8

Безопасное состояние

Выход  1

474

0x01DA

1

3

16

Enum 3

Безопасное состояние

Выход  2

475

0x01DB

1

3

16

Enum 3

Безопасное состояние

Выход  3

476

0x01DC

1

3

16

Enum 3

Безопасное состояние

Выход  4

477

0x01DD

1

3

16

Enum 3

Безопасное состояние

Выход  5

478

0x01DE

1

3

16

Enum 3

Безопасное состояние

Выход  6

479

0x01DF

1

3

16

Enum 3

Состояние

Дискретные ШИМ-выходы

306

0x0132

1

3

-

Unsigned 8

Режим работы

Выход  7

272

0x0110

1

3

16

Enum 2

Период ШИМ

Выход  7

308

0x0134

1

3

16

Unsigned 16

Минимальный импульс ШИМ

Выход  7

404

0x0194

1

3

16

Unsigned 16

Безопасное состояние

Выход  7

538

0x021A

2

3

16

Float 32

Режим работы

Выход  8

273

0x0111

1

3

16

Enum 2

Период ШИМ

Выход  8

309

0x0135

1

3

16

Unsigned 16

Минимальный импульс ШИМ

Выход  8

405

0x0195

1

3

16

Unsigned 16

Безопасное состояние

Выход  8

540

0x021C

2

3

16

Float 32

Выход  7

Коэффициент заполнения

340

0x0154

2

3

16

Float 32

Выход  8

Коэффициент заполнения

342

0x0156

2

3

16

Float 32

Вид сигнала

Выход  1

3160

0x0C58

1

3

16

Enum 3

Состояние

Выход  1

3128

0x0C38

1

3

-

Enum 6

Безопасное состояние

Выход  1

3032

0x0BD8

2

3

16

Float 32

Вид сигнала

Выход  2

3161

0x0C59

1

3

16

Enum 3

Состояние

Выход  2

3129

0x0C39

1

3

-

Enum 6

Безопасное состояние

Выход  2

3034

0x0BDA

2

3

16

Float 32

Вид сигнала

Выход  3

3162

0x0C5A

1

3

16

Enum 3

Состояние

Выход  3

3130

0x0C3A

1

3

-

Enum 6

Безопасное состояние

Выход  3

3036

0x0BDC

2

3

16

Float 32

Выход  1

Значения сигнала

3000

0x0BB8

2

3

16

Float 32

Выход  2

Значения сигнала

3002

0x0BBA

2

3

16

Float 32

Выход  3

Значения сигнала

3004

0x0BBC

2

3

16

Float 32

Состояние

Пользовательские светодиоды (Fn)

601

0x0259

1

3

-

Unsigned 8

Изменить состояние

Пользовательские светодиоды (Fn)

600

0x0258

1

3

16

Unsigned 8

Таймаут перехода в безопасное состояние

Modbus Slave

700

0x02BC

1

3

16

Unsigned 8

Подключение к OwenCloud

OwenCloud

35

0x0023

1

3

16

Enum 2

Статус подключения к OwenCloud

OwenCloud

36

0x0024

1

3

-

Enum 5

Разрешение конфигурирования

Права удалённого доступа из OwenCloud

701

0x02BD

1

3

16

Enum 2

Управление и запись значений

Права удалённого доступа из OwenCloud

702

0x02BE

1

3

16

Enum 2

Доступ к регистрам Modbus

Права удалённого доступа из OwenCloud

703

0x02BF

1

3

16

Enum 4

Наличие обмена

Обмен с устройствами

2008

0x07D8

2

3

-

Unsigned 32

Включить обмен

Обмен с устройствами

2010

0x07DA

2

3

16

Unsigned 32

Время цикла

Логика

61680

0xF0F0

2

3

-

Unsigned 32

Состояние логики

Логика

61682

0xF0F2

1

3

-

Enum 2

Подсветка экрана

Настройки прибора

768

0x0300

1

3

16

Enum 5

Карта регистров Modbus ПР205-230.1211.26.2.0

Карта регистров Modbus ПР205-230.1211.26.2.0

Параметр

Группа

Адрес

Адрес (hex)

Количество регистров

Функция чтения

Функция записи

Тип данных

Время в миллисек

Часы реального времени

61563

0xF07B

2

3

-

Unsigned 32

Время и дата (UTC)

Часы реального времени

61553

0xF071

2

3

16

Date time 32

Часовой пояс

Часы реального времени

61555

0xF073

1

3

16

Enum 38

Секунды

Переменные даты и времени

61557

0xF075

1

3

-

Unsigned 8

Минуты

Переменные даты и времени

61558

0xF076

1

3

-

Unsigned 8

Часы

Переменные даты и времени

61559

0xF077

1

3

-

Unsigned 8

Дни

Переменные даты и времени

61560

0xF078

1

3

-

Unsigned 8

Месяцы

Переменные даты и времени

61561

0xF079

1

3

-

Unsigned 8

Годы

Переменные даты и времени

61562

0xF07A

1

3

-

Unsigned 16

День недели

Переменные даты и времени

61556

0xF074

1

3

-

Enum 8

MAC адрес

Сетевые настройки

61712

0xF110

9

3

-

String 144

IP адрес

Сетевые настройки

20

0x0014

2

3

16

Unsigned 32

Маска подсети

Сетевые настройки

22

0x0016

2

3

16

Unsigned 32

IP адрес шлюза

Сетевые настройки

24

0x0018

2

3

16

Unsigned 32

DNS сервер 1

Сетевые настройки

12

0x000C

2

3

16

Unsigned 32

DNS сервер 2

Сетевые настройки

14

0x000E

2

3

16

Unsigned 32

Режим DHCP

Сетевые настройки

32

0x0020

1

3

16

Enum 2

Применить сейчас

Сетевые настройки

33

0x0021

1

3

16

Enum 2

Статус подключения

Сетевые настройки

34

0x0022

1

3

-

Enum 4

Напряжение

Батарея

801

0x0321

1

3

-

Unsigned 16

Пороговое напряжение

Батарея

800

0x0320

1

3

-

Unsigned 16

Состояние

Батарея

802

0x0322

1

3

-

Enum 2

Период обновления информации

Статус прибора

61624

0xF0B8

1

3

16

Unsigned 8

Статус

Статус прибора

61620

0xF0B4

2

3

-

Unsigned 32

ПРМ Слот 1.  Название модуля

Статус прибора

6000

0x1770

8

3

-

String 128

ПРМ Слот 1.  Версия ПО модуля

Статус прибора

6016

0x1780

4

3

-

String 64

ПРМ Слот 2.  Название модуля

Статус прибора

6032

0x1790

8

3

-

String 128

ПРМ Слот 2.  Версия ПО модуля

Статус прибора

6048

0x17A0

4

3

-

String 64

Ошибки

Статус прибора

61626

0xF0BA

1

3

-

Unsigned 16

Предупреждения

Статус прибора

61627

0xF0BB

1

3

-

Unsigned 16

Период архивирования

Архив

900

0x0384

1

3

16

Unsigned 16

Количество архивов

Архив

901

0x0385

1

3

16

Unsigned 16

Размер архива

Архив

902

0x0386

1

3

16

Unsigned 16

Последний индекс архива

Архив

903

0x0387

1

3

-

Unsigned 16

Состояние

Дискретные входы

51

0x0033

1

3

-

Unsigned 8

Инверсия

Дискретные входы

57

0x0039

1

3

16

Unsigned 8

Фильтр антидребезга

Вход  1

96

0x0060

1

3

16

Unsigned 8

Фильтр антидребезга

Вход  2

97

0x0061

1

3

16

Unsigned 8

Фильтр антидребезга

Вход  3

98

0x0062

1

3

16

Unsigned 8

Фильтр антидребезга

Вход  4

99

0x0063

1

3

16

Unsigned 8

Фильтр антидребезга

Вход  5

100

0x0064

1

3

16

Unsigned 8

Фильтр антидребезга

Вход  6

101

0x0065

1

3

16

Unsigned 8

Состояние

Быстрые дискретные входы

52

0x0034

1

3

-

Unsigned 8

Инверсия

Быстрые дискретные входы

58

0x003A

1

3

16

Unsigned 8

Режим работы

Вход  1

64

0x0040

1

3

16

Enum 3

Фильтр антидребезга

Вход  1

104

0x0068

1

3

16

Unsigned 8

Фронт захвата импульса

Вход  1

80

0x0050

1

3

16

Enum 2

Сброс счётчика импульсов

Вход  1

224

0x00E0

1

3

16

Enum 2

Диагностика

Вход  1

256

0x0100

1

3

-

Enum 2

Режим работы

Вход  2

65

0x0041

1

3

16

Enum 2

Фильтр антидребезга

Вход  2

105

0x0069

1

3

16

Unsigned 8

Фронт захвата импульса

Вход  2

81

0x0051

1

3

16

Enum 2

Сброс счётчика импульсов

Вход  2

225

0x00E1

1

3

16

Enum 2

Диагностика

Вход  2

257

0x0101

1

3

-

Enum 2

Вход  1

Измеренные значения

160

0x00A0

2

3

-

Unsigned 32

Вход  2

Измеренные значения

162

0x00A2

2

3

-

Unsigned 32

Состояние

Дискретно-аналоговые входы

4000

0x0FA0

1

3

-

Unsigned 8

Инверсия

Дискретно-аналоговые входы

4357

0x1105

1

3

16

Unsigned 8

Режим работы

Вход  1

4100

0x1004

1

3

16

Enum 2

Фильтр антидребезга

Дискретный  режим

4108

0x100C

1

3

16

Unsigned 8

Уровень логического нуля

Дискретный  режим

4111

0x100F

2

3

16

Float 32

Уровень логической единицы

Дискретный  режим

4109

0x100D

2

3

16

Float 32

Тип датчика

Аналоговый  режим

4101

0x1005

1

3

16

Enum 28

Постоянная времени фильтра

Аналоговый  режим

4106

0x100A

2

3

16

Float 32

Нижняя  граница измерения

Аналоговый  режим

4104

0x1008

2

3

16

Float 32

Верхняя  граница измерения

Аналоговый  режим

4102

0x1006

2

3

16

Float 32

Режим работы

Вход  2

4116

0x1014

1

3

16

Enum 2

Фильтр антидребезга

Дискретный  режим

4124

0x101C

1

3

16

Unsigned 8

Уровень логического нуля

Дискретный  режим

4127

0x101F

2

3

16

Float 32

Уровень логической единицы

Дискретный  режим

4125

0x101D

2

3

16

Float 32

Тип датчика

Аналоговый  режим

4117

0x1015

1

3

16

Enum 28

Постоянная времени фильтра

Аналоговый  режим

4122

0x101A

2

3

16

Float 32

Нижняя  граница измерения

Аналоговый  режим

4120

0x1018

2

3

16

Float 32

Верхняя  граница измерения

Аналоговый  режим

4118

0x1016

2

3

16

Float 32

Режим работы

Вход  3

4132

0x1024

1

3

16

Enum 2

Фильтр антидребезга

Дискретный  режим

4140

0x102C

1

3

16

Unsigned 8

Уровень логического нуля

Дискретный  режим

4143

0x102F

2

3

16

Float 32

Уровень логической единицы

Дискретный  режим

4141

0x102D

2

3

16

Float 32

Тип датчика

Аналоговый  режим

4133

0x1025

1

3

16

Enum 28

Постоянная времени фильтра

Аналоговый  режим

4138

0x102A

2

3

16

Float 32

Нижняя  граница измерения

Аналоговый  режим

4136

0x1028

2

3

16

Float 32

Верхняя  граница измерения

Аналоговый  режим

4134

0x1026

2

3

16

Float 32

Режим работы

Вход  4

4148

0x1034

1

3

16

Enum 2

Фильтр антидребезга

Дискретный  режим

4156

0x103C

1

3

16

Unsigned 8

Уровень логического нуля

Дискретный  режим

4159

0x103F

2

3

16

Float 32

Уровень логической единицы

Дискретный  режим

4157

0x103D

2

3

16

Float 32

Тип датчика

Аналоговый  режим

4149

0x1035

1

3

16

Enum 28

Постоянная времени фильтра

Аналоговый  режим

4154

0x103A

2

3

16

Float 32

Нижняя  граница измерения

Аналоговый  режим

4152

0x1038

2

3

16

Float 32

Верхняя  граница измерения

Аналоговый  режим

4150

0x1036

2

3

16

Float 32

Вход  1

Измеренные значения

4002

0x0FA2

2

3

-

Float 32

Вход  2

Измеренные значения

4004

0x0FA4

2

3

-

Float 32

Вход  3

Измеренные значения

4006

0x0FA6

2

3

-

Float 32

Вход  4

Измеренные значения

4008

0x0FA8

2

3

-

Float 32

Вход  1

Состояния аналоговых входов

4014

0x0FAE

1

3

-

Enum 11

Вход  2

Состояния аналоговых входов

4015

0x0FAF

1

3

-

Enum 11

Вход  3

Состояния аналоговых входов

4016

0x0FB0

1

3

-

Enum 11

Вход  4

Состояния аналоговых входов

4017

0x0FB1

1

3

-

Enum 11

Изменить состояние

Дискретные выходы

470

0x01D6

1

3

16

Unsigned 8

Состояние

Дискретные выходы

468

0x01D4

1

3

-

Unsigned 8

Безопасное состояние

Выход  1

474

0x01DA

1

3

16

Enum 3

Безопасное состояние

Выход  2

475

0x01DB

1

3

16

Enum 3

Безопасное состояние

Выход  3

476

0x01DC

1

3

16

Enum 3

Безопасное состояние

Выход  4

477

0x01DD

1

3

16

Enum 3

Безопасное состояние

Выход  5

478

0x01DE

1

3

16

Enum 3

Безопасное состояние

Выход  6

479

0x01DF

1

3

16

Enum 3

Состояние

Дискретные ШИМ-выходы

306

0x0132

1

3

-

Unsigned 8

Режим работы

Выход  7

272

0x0110

1

3

16

Enum 2

Период ШИМ

Выход  7

308

0x0134

1

3

16

Unsigned 16

Минимальный импульс ШИМ

Выход  7

404

0x0194

1

3

16

Unsigned 16

Безопасное состояние

Выход  7

538

0x021A

2

3

16

Float 32

Режим работы

Выход  8

273

0x0111

1

3

16

Enum 2

Период ШИМ

Выход  8

309

0x0135

1

3

16

Unsigned 16

Минимальный импульс ШИМ

Выход  8

405

0x0195

1

3

16

Unsigned 16

Безопасное состояние

Выход  8

540

0x021C

2

3

16

Float 32

Выход  7

Коэффициент заполнения

340

0x0154

2

3

16

Float 32

Выход  8

Коэффициент заполнения

342

0x0156

2

3

16

Float 32

Вид сигнала

Выход  1

3160

0x0C58

1

3

16

Enum 3

Состояние

Выход  1

3128

0x0C38

1

3

-

Enum 6

Безопасное состояние

Выход  1

3032

0x0BD8

2

3

16

Float 32

Вид сигнала

Выход  2

3161

0x0C59

1

3

16

Enum 3

Состояние

Выход  2

3129

0x0C39

1

3

-

Enum 6

Безопасное состояние

Выход  2

3034

0x0BDA

2

3

16

Float 32

Вид сигнала

Выход  3

3162

0x0C5A

1

3

16

Enum 3

Состояние

Выход  3

3130

0x0C3A

1

3

-

Enum 6

Безопасное состояние

Выход  3

3036

0x0BDC

2

3

16

Float 32

Выход  1

Значения сигнала

3000

0x0BB8

2

3

16

Float 32

Выход  2

Значения сигнала

3002

0x0BBA

2

3

16

Float 32

Выход  3

Значения сигнала

3004

0x0BBC

2

3

16

Float 32

Состояние

Пользовательские светодиоды (Fn)

601

0x0259

1

3

-

Unsigned 8

Изменить состояние

Пользовательские светодиоды (Fn)

600

0x0258

1

3

16

Unsigned 8

Таймаут перехода в безопасное состояние

Modbus Slave

700

0x02BC

1

3

16

Unsigned 8

Скорость

Настройки порта RS-485 1

750

0x02EE

1

3

16

Enum 6

Размер данных

Настройки порта RS-485 1

751

0x02EF

1

3

16

Enum 2

Контроль чётности

Настройки порта RS-485 1

752

0x02F0

1

3

16

Enum 3

Кол. стоп-битов

Настройки порта RS-485 1

753

0x02F1

1

3

16

Enum 2

Slave ID

Настройки порта RS-485 1

754

0x02F2

1

3

16

Unsigned 8

Скорость

Настройки порта RS-485 2

760

0x02F8

1

3

16

Enum 6

Размер данных

Настройки порта RS-485 2

761

0x02F9

1

3

16

Enum 2

Контроль чётности

Настройки порта RS-485 2

762

0x02FA

1

3

16

Enum 3

Кол. стоп-битов

Настройки порта RS-485 2

763

0x02FB

1

3

16

Enum 2

Slave ID

Настройки порта RS-485 2

764

0x02FC

1

3

16

Unsigned 8

Подключение к OwenCloud

OwenCloud

35

0x0023

1

3

16

Enum 2

Статус подключения к OwenCloud

OwenCloud

36

0x0024

1

3

-

Enum 5

Разрешение конфигурирования

Права удалённого доступа из OwenCloud

701

0x02BD

1

3

16

Enum 2

Управление и запись значений

Права удалённого доступа из OwenCloud

702

0x02BE

1

3

16

Enum 2

Доступ к регистрам Modbus

Права удалённого доступа из OwenCloud

703

0x02BF

1

3

16

Enum 4

Наличие обмена

Обмен с устройствами

2008

0x07D8

2

3

-

Unsigned 32

Включить обмен

Обмен с устройствами

2010

0x07DA

2

3

16

Unsigned 32

Время цикла

Логика

61680

0xF0F0

2

3

-

Unsigned 32

Состояние логики

Логика

61682

0xF0F2

1

3

-

Enum 2

Подсветка экрана

Настройки прибора

768

0x0300

1

3

16

Enum 5

Карта регистров Modbus ПР205-230.1211.22.0.0

Карта регистров Modbus ПР205-230.1211.22.0.0

Параметр

Группа

Адрес

Адрес (hex)

Количество регистров

Функция чтения

Функция записи

Тип данных

Время в миллисек

Часы реального времени

61563

0xF07B

2

3

-

Unsigned 32

Время и дата (UTC)

Часы реального времени

61553

0xF071

2

3

16

Date time 32

Часовой пояс

Часы реального времени

61555

0xF073

1

3

16

Enum 38

Секунды

Переменные даты и времени

61557

0xF075

1

3

-

Unsigned 8

Минуты

Переменные даты и времени

61558

0xF076

1

3

-

Unsigned 8

Часы

Переменные даты и времени

61559

0xF077

1

3

-

Unsigned 8

Дни

Переменные даты и времени

61560

0xF078

1

3

-

Unsigned 8

Месяцы

Переменные даты и времени

61561

0xF079

1

3

-

Unsigned 8

Годы

Переменные даты и времени

61562

0xF07A

1

3

-

Unsigned 16

День недели

Переменные даты и времени

61556

0xF074

1

3

-

Enum 8

MAC адрес

Сетевые настройки

61712

0xF110

9

3

-

String 144

IP адрес

Сетевые настройки

20

0x0014

2

3

16

Unsigned 32

Маска подсети

Сетевые настройки

22

0x0016

2

3

16

Unsigned 32

IP адрес шлюза

Сетевые настройки

24

0x0018

2

3

16

Unsigned 32

DNS сервер 1

Сетевые настройки

12

0x000C

2

3

16

Unsigned 32

DNS сервер 2

Сетевые настройки

14

0x000E

2

3

16

Unsigned 32

Режим DHCP

Сетевые настройки

32

0x0020

1

3

16

Enum 2

Применить сейчас

Сетевые настройки

33

0x0021

1

3

16

Enum 2

Статус подключения

Сетевые настройки

34

0x0022

1

3

-

Enum 4

Напряжение

Батарея

801

0x0321

1

3

-

Unsigned 16

Пороговое напряжение

Батарея

800

0x0320

1

3

-

Unsigned 16

Состояние

Батарея

802

0x0322

1

3

-

Enum 2

Период обновления информации

Статус прибора

61624

0xF0B8

1

3

16

Unsigned 8

Статус

Статус прибора

61620

0xF0B4

2

3

-

Unsigned 32

ПРМ Слот 1.  Название модуля

Статус прибора

6000

0x1770

8

3

-

String 128

ПРМ Слот 1.  Версия ПО модуля

Статус прибора

6016

0x1780

4

3

-

String 64

ПРМ Слот 2.  Название модуля

Статус прибора

6032

0x1790

8

3

-

String 128

ПРМ Слот 2.  Версия ПО модуля

Статус прибора

6048

0x17A0

4

3

-

String 64

Ошибки

Статус прибора

61626

0xF0BA

1

3

-

Unsigned 16

Предупреждения

Статус прибора

61627

0xF0BB

1

3

-

Unsigned 16

Период архивирования

Архив

900

0x0384

1

3

16

Unsigned 16

Количество архивов

Архив

901

0x0385

1

3

16

Unsigned 16

Размер архива

Архив

902

0x0386

1

3

16

Unsigned 16

Последний индекс архива

Архив

903

0x0387

1

3

-

Unsigned 16

Состояние

Дискретные входы

51

0x0033

1

3

-

Unsigned 8

Инверсия

Дискретные входы

57

0x0039

1

3

16

Unsigned 8

Фильтр антидребезга

Вход  1

96

0x0060

1

3

16

Unsigned 8

Фильтр антидребезга

Вход  2

97

0x0061

1

3

16

Unsigned 8

Фильтр антидребезга

Вход  3

98

0x0062

1

3

16

Unsigned 8

Фильтр антидребезга

Вход  4

99

0x0063

1

3

16

Unsigned 8

Фильтр антидребезга

Вход  5

100

0x0064

1

3

16

Unsigned 8

Фильтр антидребезга

Вход  6

101

0x0065

1

3

16

Unsigned 8

Состояние

Быстрые дискретные входы

52

0x0034

1

3

-

Unsigned 8

Инверсия

Быстрые дискретные входы

58

0x003A

1

3

16

Unsigned 8

Режим работы

Вход  1

64

0x0040

1

3

16

Enum 3

Фильтр антидребезга

Вход  1

104

0x0068

1

3

16

Unsigned 8

Фронт захвата импульса

Вход  1

80

0x0050

1

3

16

Enum 2

Сброс счётчика импульсов

Вход  1

224

0x00E0

1

3

16

Enum 2

Диагностика

Вход  1

256

0x0100

1

3

-

Enum 2

Режим работы

Вход  2

65

0x0041

1

3

16

Enum 2

Фильтр антидребезга

Вход  2

105

0x0069

1

3

16

Unsigned 8

Фронт захвата импульса

Вход  2

81

0x0051

1

3

16

Enum 2

Сброс счётчика импульсов

Вход  2

225

0x00E1

1

3

16

Enum 2

Диагностика

Вход  2

257

0x0101

1

3

-

Enum 2

Вход  1

Измеренные значения

160

0x00A0

2

3

-

Unsigned 32

Вход  2

Измеренные значения

162

0x00A2

2

3

-

Unsigned 32

Состояние

Дискретно-аналоговые входы

4000

0x0FA0

1

3

-

Unsigned 8

Инверсия

Дискретно-аналоговые входы

4357

0x1105

1

3

16

Unsigned 8

Режим работы

Вход  1

4100

0x1004

1

3

16

Enum 2

Фильтр антидребезга

Дискретный  режим

4108

0x100C

1

3

16

Unsigned 8

Уровень логического нуля

Дискретный  режим

4111

0x100F

2

3

16

Float 32

Уровень логической единицы

Дискретный  режим

4109

0x100D

2

3

16

Float 32

Тип датчика

Аналоговый  режим

4101

0x1005

1

3

16

Enum 28

Постоянная времени фильтра

Аналоговый  режим

4106

0x100A

2

3

16

Float 32

Нижняя  граница измерения

Аналоговый  режим

4104

0x1008

2

3

16

Float 32

Верхняя  граница измерения

Аналоговый  режим

4102

0x1006

2

3

16

Float 32

Режим работы

Вход  2

4116

0x1014

1

3

16

Enum 2

Фильтр антидребезга

Дискретный  режим

4124

0x101C

1

3

16

Unsigned 8

Уровень логического нуля

Дискретный  режим

4127

0x101F

2

3

16

Float 32

Уровень логической единицы

Дискретный  режим

4125

0x101D

2

3

16

Float 32

Тип датчика

Аналоговый  режим

4117

0x1015

1

3

16

Enum 28

Постоянная времени фильтра

Аналоговый  режим

4122

0x101A

2

3

16

Float 32

Нижняя  граница измерения

Аналоговый  режим

4120

0x1018

2

3

16

Float 32

Верхняя  граница измерения

Аналоговый  режим

4118

0x1016

2

3

16

Float 32

Режим работы

Вход  3

4132

0x1024

1

3

16

Enum 2

Фильтр антидребезга

Дискретный  режим

4140

0x102C

1

3

16

Unsigned 8

Уровень логического нуля

Дискретный  режим

4143

0x102F

2

3

16

Float 32

Уровень логической единицы

Дискретный  режим

4141

0x102D

2

3

16

Float 32

Тип датчика

Аналоговый  режим

4133

0x1025

1

3

16

Enum 28

Постоянная времени фильтра

Аналоговый  режим

4138

0x102A

2

3

16

Float 32

Нижняя  граница измерения

Аналоговый  режим

4136

0x1028

2

3

16

Float 32

Верхняя  граница измерения

Аналоговый  режим

4134

0x1026

2

3

16

Float 32

Режим работы

Вход  4

4148

0x1034

1

3

16

Enum 2

Фильтр антидребезга

Дискретный  режим

4156

0x103C

1

3

16

Unsigned 8

Уровень логического нуля

Дискретный  режим

4159

0x103F

2

3

16

Float 32

Уровень логической единицы

Дискретный  режим

4157

0x103D

2

3

16

Float 32

Тип датчика

Аналоговый  режим

4149

0x1035

1

3

16

Enum 28

Постоянная времени фильтра

Аналоговый  режим

4154

0x103A

2

3

16

Float 32

Нижняя  граница измерения

Аналоговый  режим

4152

0x1038

2

3

16

Float 32

Верхняя  граница измерения

Аналоговый  режим

4150

0x1036

2

3

16

Float 32

Вход  1

Измеренные значения

4002

0x0FA2

2

3

-

Float 32

Вход  2

Измеренные значения

4004

0x0FA4

2

3

-

Float 32

Вход  3

Измеренные значения

4006

0x0FA6

2

3

-

Float 32

Вход  4

Измеренные значения

4008

0x0FA8

2

3

-

Float 32

Вход  1

Состояния аналоговых входов

4014

0x0FAE

1

3

-

Enum 11

Вход  2

Состояния аналоговых входов

4015

0x0FAF

1

3

-

Enum 11

Вход  3

Состояния аналоговых входов

4016

0x0FB0

1

3

-

Enum 11

Вход  4

Состояния аналоговых входов

4017

0x0FB1

1

3

-

Enum 11

Изменить состояние

Дискретные выходы

470

0x01D6

1

3

16

Unsigned 8

Состояние

Дискретные выходы

468

0x01D4

1

3

-

Unsigned 8

Безопасное состояние

Выход  1

474

0x01DA

1

3

16

Enum 3

Безопасное состояние

Выход  2

475

0x01DB

1

3

16

Enum 3

Безопасное состояние

Выход  3

476

0x01DC

1

3

16

Enum 3

Безопасное состояние

Выход  4

477

0x01DD

1

3

16

Enum 3

Безопасное состояние

Выход  5

478

0x01DE

1

3

16

Enum 3

Безопасное состояние

Выход  6

479

0x01DF

1

3

16

Enum 3

Безопасное состояние

Выход  7

480

0x01E0

1

3

16

Enum 3

Безопасное состояние

Выход  8

481

0x01E1

1

3

16

Enum 3

Вид сигнала

Выход  1

3160

0x0C58

1

3

16

Enum 3

Состояние

Выход  1

3128

0x0C38

1

3

-

Enum 6

Безопасное состояние

Выход  1

3032

0x0BD8

2

3

16

Float 32

Вид сигнала

Выход  2

3161

0x0C59

1

3

16

Enum 3

Состояние

Выход  2

3129

0x0C39

1

3

-

Enum 6

Безопасное состояние

Выход  2

3034

0x0BDA

2

3

16

Float 32

Вид сигнала

Выход  3

3162

0x0C5A

1

3

16

Enum 3

Состояние

Выход  3

3130

0x0C3A

1

3

-

Enum 6

Безопасное состояние

Выход  3

3036

0x0BDC

2

3

16

Float 32

Выход  1

Значения сигнала

3000

0x0BB8

2

3

16

Float 32

Выход  2

Значения сигнала

3002

0x0BBA

2

3

16

Float 32

Выход  3

Значения сигнала

3004

0x0BBC

2

3

16

Float 32

Состояние

Пользовательские светодиоды (Fn)

601

0x0259

1

3

-

Unsigned 8

Изменить состояние

Пользовательские светодиоды (Fn)

600

0x0258

1

3

16

Unsigned 8

Таймаут перехода в безопасное состояние

Modbus Slave

700

0x02BC

1

3

16

Unsigned 8

Подключение к OwenCloud

OwenCloud

35

0x0023

1

3

16

Enum 2

Статус подключения к OwenCloud

OwenCloud

36

0x0024

1

3

-

Enum 5

Разрешение конфигурирования

Права удалённого доступа из OwenCloud

701

0x02BD

1

3

16

Enum 2

Управление и запись значений

Права удалённого доступа из OwenCloud

702

0x02BE

1

3

16

Enum 2

Доступ к регистрам Modbus

Права удалённого доступа из OwenCloud

703

0x02BF

1

3

16

Enum 4

Наличие обмена

Обмен с устройствами

2008

0x07D8

2

3

-

Unsigned 32

Включить обмен

Обмен с устройствами

2010

0x07DA

2

3

16

Unsigned 32

Время цикла

Логика

61680

0xF0F0

2

3

-

Unsigned 32

Состояние логики

Логика

61682

0xF0F2

1

3

-

Enum 2

Подсветка экрана

Настройки прибора

768

0x0300

1

3

16

Enum 5

Карта регистров Modbus ПР205-230.1211.22.2.0

Карта регистров Modbus ПР205-230.1211.22.2.0

Параметр

Группа

Адрес

Адрес (hex)

Количество регистров

Функция чтения

Функция записи

Тип данных

Время в миллисек

Часы реального времени

61563

0xF07B

2

3

-

Unsigned 32

Время и дата (UTC)

Часы реального времени

61553

0xF071

2

3

16

Date time 32

Часовой пояс

Часы реального времени

61555

0xF073

1

3

16

Enum 38

Секунды

Переменные даты и времени

61557

0xF075

1

3

-

Unsigned 8

Минуты

Переменные даты и времени

61558

0xF076

1

3

-

Unsigned 8

Часы

Переменные даты и времени

61559

0xF077

1

3

-

Unsigned 8

Дни

Переменные даты и времени

61560

0xF078

1

3

-

Unsigned 8

Месяцы

Переменные даты и времени

61561

0xF079

1

3

-

Unsigned 8

Годы

Переменные даты и времени

61562

0xF07A

1

3

-

Unsigned 16

День недели

Переменные даты и времени

61556

0xF074

1

3

-

Enum 8

MAC адрес

Сетевые настройки

61712

0xF110

9

3

-

String 144

IP адрес

Сетевые настройки

20

0x0014

2

3

16

Unsigned 32

Маска подсети

Сетевые настройки

22

0x0016

2

3

16

Unsigned 32

IP адрес шлюза

Сетевые настройки

24

0x0018

2

3

16

Unsigned 32

DNS сервер 1

Сетевые настройки

12

0x000C

2

3

16

Unsigned 32

DNS сервер 2

Сетевые настройки

14

0x000E

2

3

16

Unsigned 32

Режим DHCP

Сетевые настройки

32

0x0020

1

3

16

Enum 2

Применить сейчас

Сетевые настройки

33

0x0021

1

3

16

Enum 2

Статус подключения

Сетевые настройки

34

0x0022

1

3

-

Enum 4

Напряжение

Батарея

801

0x0321

1

3

-

Unsigned 16

Пороговое напряжение

Батарея

800

0x0320

1

3

-

Unsigned 16

Состояние

Батарея

802

0x0322

1

3

-

Enum 2

Период обновления информации

Статус прибора

61624

0xF0B8

1

3

16

Unsigned 8

Статус

Статус прибора

61620

0xF0B4

2

3

-

Unsigned 32

ПРМ Слот 1.  Название модуля

Статус прибора

6000

0x1770

8

3

-

String 128

ПРМ Слот 1.  Версия ПО модуля

Статус прибора

6016

0x1780

4

3

-

String 64

ПРМ Слот 2.  Название модуля

Статус прибора

6032

0x1790

8

3

-

String 128

ПРМ Слот 2.  Версия ПО модуля

Статус прибора

6048

0x17A0

4

3

-

String 64

Ошибки

Статус прибора

61626

0xF0BA

1

3

-

Unsigned 16

Предупреждения

Статус прибора

61627

0xF0BB

1

3

-

Unsigned 16

Период архивирования

Архив

900

0x0384

1

3

16

Unsigned 16

Количество архивов

Архив

901

0x0385

1

3

16

Unsigned 16

Размер архива

Архив

902

0x0386

1

3

16

Unsigned 16

Последний индекс архива

Архив

903

0x0387

1

3

-

Unsigned 16

Состояние

Дискретные входы

51

0x0033

1

3

-

Unsigned 8

Инверсия

Дискретные входы

57

0x0039

1

3

16

Unsigned 8

Фильтр антидребезга

Вход  1

96

0x0060

1

3

16

Unsigned 8

Фильтр антидребезга

Вход  2

97

0x0061

1

3

16

Unsigned 8

Фильтр антидребезга

Вход  3

98

0x0062

1

3

16

Unsigned 8

Фильтр антидребезга

Вход  4

99

0x0063

1

3

16

Unsigned 8

Фильтр антидребезга

Вход  5

100

0x0064

1

3

16

Unsigned 8

Фильтр антидребезга

Вход  6

101

0x0065

1

3

16

Unsigned 8

Состояние

Быстрые дискретные входы

52

0x0034

1

3

-

Unsigned 8

Инверсия

Быстрые дискретные входы

58

0x003A

1

3

16

Unsigned 8

Режим работы

Вход  1

64

0x0040

1

3

16

Enum 3

Фильтр антидребезга

Вход  1

104

0x0068

1

3

16

Unsigned 8

Фронт захвата импульса

Вход  1

80

0x0050

1

3

16

Enum 2

Сброс счётчика импульсов

Вход  1

224

0x00E0

1

3

16

Enum 2

Диагностика

Вход  1

256

0x0100

1

3

-

Enum 2

Режим работы

Вход  2

65

0x0041

1

3

16

Enum 2

Фильтр антидребезга

Вход  2

105

0x0069

1

3

16

Unsigned 8

Фронт захвата импульса

Вход  2

81

0x0051

1

3

16

Enum 2

Сброс счётчика импульсов

Вход  2

225

0x00E1

1

3

16

Enum 2

Диагностика

Вход  2

257

0x0101

1

3

-

Enum 2

Вход  1

Измеренные значения

160

0x00A0

2

3

-

Unsigned 32

Вход  2

Измеренные значения

162

0x00A2

2

3

-

Unsigned 32

Состояние

Дискретно-аналоговые входы

4000

0x0FA0

1

3

-

Unsigned 8

Инверсия

Дискретно-аналоговые входы

4357

0x1105

1

3

16

Unsigned 8

Режим работы

Вход  1

4100

0x1004

1

3

16

Enum 2

Фильтр антидребезга

Дискретный  режим

4108

0x100C

1

3

16

Unsigned 8

Уровень логического нуля

Дискретный  режим

4111

0x100F

2

3

16

Float 32

Уровень логической единицы

Дискретный  режим

4109

0x100D

2

3

16

Float 32

Тип датчика

Аналоговый  режим

4101

0x1005

1

3

16

Enum 28

Постоянная времени фильтра

Аналоговый  режим

4106

0x100A

2

3

16

Float 32

Нижняя  граница измерения

Аналоговый  режим

4104

0x1008

2

3

16

Float 32

Верхняя  граница измерения

Аналоговый  режим

4102

0x1006

2

3

16

Float 32

Режим работы

Вход  2

4116

0x1014

1

3

16

Enum 2

Фильтр антидребезга

Дискретный  режим

4124

0x101C

1

3

16

Unsigned 8

Уровень логического нуля

Дискретный  режим

4127

0x101F

2

3

16

Float 32

Уровень логической единицы

Дискретный  режим

4125

0x101D

2

3

16

Float 32

Тип датчика

Аналоговый  режим

4117

0x1015

1

3

16

Enum 28

Постоянная времени фильтра

Аналоговый  режим

4122

0x101A

2

3

16

Float 32

Нижняя  граница измерения

Аналоговый  режим

4120

0x1018

2

3

16

Float 32

Верхняя  граница измерения

Аналоговый  режим

4118

0x1016

2

3

16

Float 32

Режим работы

Вход  3

4132

0x1024

1

3

16

Enum 2

Фильтр антидребезга

Дискретный  режим

4140

0x102C

1

3

16

Unsigned 8

Уровень логического нуля

Дискретный  режим

4143

0x102F

2

3

16

Float 32

Уровень логической единицы

Дискретный  режим

4141

0x102D

2

3

16

Float 32

Тип датчика

Аналоговый  режим

4133

0x1025

1

3

16

Enum 28

Постоянная времени фильтра

Аналоговый  режим

4138

0x102A

2

3

16

Float 32

Нижняя  граница измерения

Аналоговый  режим

4136

0x1028

2

3

16

Float 32

Верхняя  граница измерения

Аналоговый  режим

4134

0x1026

2

3

16

Float 32

Режим работы

Вход  4

4148

0x1034

1

3

16

Enum 2

Фильтр антидребезга

Дискретный  режим

4156

0x103C

1

3

16

Unsigned 8

Уровень логического нуля

Дискретный  режим

4159

0x103F

2

3

16

Float 32

Уровень логической единицы

Дискретный  режим

4157

0x103D

2

3

16

Float 32

Тип датчика

Аналоговый  режим

4149

0x1035

1

3

16

Enum 28

Постоянная времени фильтра

Аналоговый  режим

4154

0x103A

2

3

16

Float 32

Нижняя  граница измерения

Аналоговый  режим

4152

0x1038

2

3

16

Float 32

Верхняя  граница измерения

Аналоговый  режим

4150

0x1036

2

3

16

Float 32

Вход  1

Измеренные значения

4002

0x0FA2

2

3

-

Float 32

Вход  2

Измеренные значения

4004

0x0FA4

2

3

-

Float 32

Вход  3

Измеренные значения

4006

0x0FA6

2

3

-

Float 32

Вход  4

Измеренные значения

4008

0x0FA8

2

3

-

Float 32

Вход  1

Состояния аналоговых входов

4014

0x0FAE

1

3

-

Enum 11

Вход  2

Состояния аналоговых входов

4015

0x0FAF

1

3

-

Enum 11

Вход  3

Состояния аналоговых входов

4016

0x0FB0

1

3

-

Enum 11

Вход  4

Состояния аналоговых входов

4017

0x0FB1

1

3

-

Enum 11

Изменить состояние

Дискретные выходы

470

0x01D6

1

3

16

Unsigned 8

Состояние

Дискретные выходы

468

0x01D4

1

3

-

Unsigned 8

Безопасное состояние

Выход  1

474

0x01DA

1

3

16

Enum 3

Безопасное состояние

Выход  2

475

0x01DB

1

3

16

Enum 3

Безопасное состояние

Выход  3

476

0x01DC

1

3

16

Enum 3

Безопасное состояние

Выход  4

477

0x01DD

1

3

16

Enum 3

Безопасное состояние

Выход  5

478

0x01DE

1

3

16

Enum 3

Безопасное состояние

Выход  6

479

0x01DF

1

3

16

Enum 3

Безопасное состояние

Выход  7

480

0x01E0

1

3

16

Enum 3

Безопасное состояние

Выход  8

481

0x01E1

1

3

16

Enum 3

Вид сигнала

Выход  1

3160

0x0C58

1

3

16

Enum 3

Состояние

Выход  1

3128

0x0C38

1

3

-

Enum 6

Безопасное состояние

Выход  1

3032

0x0BD8

2

3

16

Float 32

Вид сигнала

Выход  2

3161

0x0C59

1

3

16

Enum 3

Состояние

Выход  2

3129

0x0C39

1

3

-

Enum 6

Безопасное состояние

Выход  2

3034

0x0BDA

2

3

16

Float 32

Вид сигнала

Выход  3

3162

0x0C5A

1

3

16

Enum 3

Состояние

Выход  3

3130

0x0C3A

1

3

-

Enum 6

Безопасное состояние

Выход  3

3036

0x0BDC

2

3

16

Float 32

Выход  1

Значения сигнала

3000

0x0BB8

2

3

16

Float 32

Выход  2

Значения сигнала

3002

0x0BBA

2

3

16

Float 32

Выход  3

Значения сигнала

3004

0x0BBC

2

3

16

Float 32

Состояние

Пользовательские светодиоды (Fn)

601

0x0259

1

3

-

Unsigned 8

Изменить состояние

Пользовательские светодиоды (Fn)

600

0x0258

1

3

16

Unsigned 8

Таймаут перехода в безопасное состояние

Modbus Slave

700

0x02BC

1

3

16

Unsigned 8

Скорость

Настройки порта RS-485 1

750

0x02EE

1

3

16

Enum 6

Размер данных

Настройки порта RS-485 1

751

0x02EF

1

3

16

Enum 2

Контроль чётности

Настройки порта RS-485 1

752

0x02F0

1

3

16

Enum 3

Кол. стоп-битов

Настройки порта RS-485 1

753

0x02F1

1

3

16

Enum 2

Slave ID

Настройки порта RS-485 1

754

0x02F2

1

3

16

Unsigned 8

Скорость

Настройки порта RS-485 2

760

0x02F8

1

3

16

Enum 6

Размер данных

Настройки порта RS-485 2

761

0x02F9

1

3

16

Enum 2

Контроль чётности

Настройки порта RS-485 2

762

0x02FA

1

3

16

Enum 3

Кол. стоп-битов

Настройки порта RS-485 2

763

0x02FB

1

3

16

Enum 2

Slave ID

Настройки порта RS-485 2

764

0x02FC

1

3

16

Unsigned 8

Подключение к OwenCloud

OwenCloud

35

0x0023

1

3

16

Enum 2

Статус подключения к OwenCloud

OwenCloud

36

0x0024

1

3

-

Enum 5

Разрешение конфигурирования

Права удалённого доступа из OwenCloud

701

0x02BD

1

3

16

Enum 2

Управление и запись значений

Права удалённого доступа из OwenCloud

702

0x02BE

1

3

16

Enum 2

Доступ к регистрам Modbus

Права удалённого доступа из OwenCloud

703

0x02BF

1

3

16

Enum 4

Наличие обмена

Обмен с устройствами

2008

0x07D8

2

3

-

Unsigned 32

Включить обмен

Обмен с устройствами

2010

0x07DA

2

3

16

Unsigned 32

Время цикла

Логика

61680

0xF0F0

2

3

-

Unsigned 32

Состояние логики

Логика

61682

0xF0F2

1

3

-

Enum 2

Подсветка экрана

Настройки прибора

768

0x0300

1

3

16

Enum 5

Карта регистров Modbus ПР205-24.1211.06.0.0

Карта регистров Modbus ПР205-24.1211.06.0.0

Параметр

Группа

Адрес

Адрес (hex)

Количество регистров

Функция чтения

Функция записи

Тип данных

Время в миллисек

Часы реального времени

61563

0xF07B

2

3

-

Unsigned 32

Время и дата (UTC)

Часы реального времени

61553

0xF071

2

3

16

Date time 32

Часовой пояс

Часы реального времени

61555

0xF073

1

3

16

Enum 38

Секунды

Переменные даты и времени

61557

0xF075

1

3

-

Unsigned 8

Минуты

Переменные даты и времени

61558

0xF076

1

3

-

Unsigned 8

Часы

Переменные даты и времени

61559

0xF077

1

3

-

Unsigned 8

Дни

Переменные даты и времени

61560

0xF078

1

3

-

Unsigned 8

Месяцы

Переменные даты и времени

61561

0xF079

1

3

-

Unsigned 8

Годы

Переменные даты и времени

61562

0xF07A

1

3

-

Unsigned 16

День недели

Переменные даты и времени

61556

0xF074

1

3

-

Enum 8

MAC адрес

Сетевые настройки

61712

0xF110

9

3

-

String 144

IP адрес

Сетевые настройки

20

0x0014

2

3

16

Unsigned 32

Маска подсети

Сетевые настройки

22

0x0016

2

3

16

Unsigned 32

IP адрес шлюза

Сетевые настройки

24

0x0018

2

3

16

Unsigned 32

DNS сервер 1

Сетевые настройки

12

0x000C

2

3

16

Unsigned 32

DNS сервер 2

Сетевые настройки

14

0x000E

2

3

16

Unsigned 32

Режим DHCP

Сетевые настройки

32

0x0020

1

3

16

Enum 2

Применить сейчас

Сетевые настройки

33

0x0021

1

3

16

Enum 2

Статус подключения

Сетевые настройки

34

0x0022

1

3

-

Enum 4

Напряжение

Батарея

801

0x0321

1

3

-

Unsigned 16

Пороговое напряжение

Батарея

800

0x0320

1

3

-

Unsigned 16

Состояние

Батарея

802

0x0322

1

3

-

Enum 2

Период обновления информации

Статус прибора

61624

0xF0B8

1

3

16

Unsigned 8

Статус

Статус прибора

61620

0xF0B4

2

3

-

Unsigned 32

ПРМ Слот 1.  Название модуля

Статус прибора

6000

0x1770

8

3

-

String 128

ПРМ Слот 1.  Версия ПО модуля

Статус прибора

6016

0x1780

4

3

-

String 64

ПРМ Слот 2.  Название модуля

Статус прибора

6032

0x1790

8

3

-

String 128

ПРМ Слот 2.  Версия ПО модуля

Статус прибора

6048

0x17A0

4

3

-

String 64

Ошибки

Статус прибора

61626

0xF0BA

1

3

-

Unsigned 16

Предупреждения

Статус прибора

61627

0xF0BB

1

3

-

Unsigned 16

Период архивирования

Архив

900

0x0384

1

3

16

Unsigned 16

Количество архивов

Архив

901

0x0385

1

3

16

Unsigned 16

Размер архива

Архив

902

0x0386

1

3

16

Unsigned 16

Последний индекс архива

Архив

903

0x0387

1

3

-

Unsigned 16

Состояние

Дискретные входы

51

0x0033

1

3

-

Unsigned 8

Инверсия

Дискретные входы

57

0x0039

1

3

16

Unsigned 8

Фильтр антидребезга

Вход  1

96

0x0060

1

3

16

Unsigned 8

Фильтр антидребезга

Вход  2

97

0x0061

1

3

16

Unsigned 8

Фильтр антидребезга

Вход  3

98

0x0062

1

3

16

Unsigned 8

Фильтр антидребезга

Вход  4

99

0x0063

1

3

16

Unsigned 8

Фильтр антидребезга

Вход  5

100

0x0064

1

3

16

Unsigned 8

Фильтр антидребезга

Вход  6

101

0x0065

1

3

16

Unsigned 8

Состояние

Быстрые дискретные входы

52

0x0034

1

3

-

Unsigned 8

Инверсия

Быстрые дискретные входы

58

0x003A

1

3

16

Unsigned 8

Режим работы

Вход  1

64

0x0040

1

3

16

Enum 3

Фильтр антидребезга

Вход  1

104

0x0068

1

3

16

Unsigned 8

Фронт захвата импульса

Вход  1

80

0x0050

1

3

16

Enum 2

Сброс счётчика импульсов

Вход  1

224

0x00E0

1

3

16

Enum 2

Диагностика

Вход  1

256

0x0100

1

3

-

Enum 2

Режим работы

Вход  2

65

0x0041

1

3

16

Enum 2

Фильтр антидребезга

Вход  2

105

0x0069

1

3

16

Unsigned 8

Фронт захвата импульса

Вход  2

81

0x0051

1

3

16

Enum 2

Сброс счётчика импульсов

Вход  2

225

0x00E1

1

3

16

Enum 2

Диагностика

Вход  2

257

0x0101

1

3

-

Enum 2

Вход  1

Измеренные значения

160

0x00A0

2

3

-

Unsigned 32

Вход  2

Измеренные значения

162

0x00A2

2

3

-

Unsigned 32

Состояние

Дискретно-аналоговые входы

4000

0x0FA0

1

3

-

Unsigned 8

Инверсия

Дискретно-аналоговые входы

4357

0x1105

1

3

16

Unsigned 8

Режим работы

Вход  1

4100

0x1004

1

3

16

Enum 2

Фильтр антидребезга

Дискретный  режим

4108

0x100C

1

3

16

Unsigned 8

Уровень логического нуля

Дискретный  режим

4111

0x100F

2

3

16

Float 32

Уровень логической единицы

Дискретный  режим

4109

0x100D

2

3

16

Float 32

Тип датчика

Аналоговый  режим

4101

0x1005

1

3

16

Enum 28

Постоянная времени фильтра

Аналоговый  режим

4106

0x100A

2

3

16

Float 32

Нижняя  граница измерения

Аналоговый  режим

4104

0x1008

2

3

16

Float 32

Верхняя  граница измерения

Аналоговый  режим

4102

0x1006

2

3

16

Float 32

Режим работы

Вход  2

4116

0x1014

1

3

16

Enum 2

Фильтр антидребезга

Дискретный  режим

4124

0x101C

1

3

16

Unsigned 8

Уровень логического нуля

Дискретный  режим

4127

0x101F

2

3

16

Float 32

Уровень логической единицы

Дискретный  режим

4125

0x101D

2

3

16

Float 32

Тип датчика

Аналоговый  режим

4117

0x1015

1

3

16

Enum 28

Постоянная времени фильтра

Аналоговый  режим

4122

0x101A

2

3

16

Float 32

Нижняя  граница измерения

Аналоговый  режим

4120

0x1018

2

3

16

Float 32

Верхняя  граница измерения

Аналоговый  режим

4118

0x1016

2

3

16

Float 32

Режим работы

Вход  3

4132

0x1024

1

3

16

Enum 2

Фильтр антидребезга

Дискретный  режим

4140

0x102C

1

3

16

Unsigned 8

Уровень логического нуля

Дискретный  режим

4143

0x102F

2

3

16

Float 32

Уровень логической единицы

Дискретный  режим

4141

0x102D

2

3

16

Float 32

Тип датчика

Аналоговый  режим

4133

0x1025

1

3

16

Enum 28

Постоянная времени фильтра

Аналоговый  режим

4138

0x102A

2

3

16

Float 32

Нижняя  граница измерения

Аналоговый  режим

4136

0x1028

2

3

16

Float 32

Верхняя  граница измерения

Аналоговый  режим

4134

0x1026

2

3

16

Float 32

Режим работы

Вход  4

4148

0x1034

1

3

16

Enum 2

Фильтр антидребезга

Дискретный  режим

4156

0x103C

1

3

16

Unsigned 8

Уровень логического нуля

Дискретный  режим

4159

0x103F

2

3

16

Float 32

Уровень логической единицы

Дискретный  режим

4157

0x103D

2

3

16

Float 32

Тип датчика

Аналоговый  режим

4149

0x1035

1

3

16

Enum 28

Постоянная времени фильтра

Аналоговый  режим

4154

0x103A

2

3

16

Float 32

Нижняя  граница измерения

Аналоговый  режим

4152

0x1038

2

3

16

Float 32

Верхняя  граница измерения

Аналоговый  режим

4150

0x1036

2

3

16

Float 32

Вход  1

Измеренные значения

4002

0x0FA2

2

3

-

Float 32

Вход  2

Измеренные значения

4004

0x0FA4

2

3

-

Float 32

Вход  3

Измеренные значения

4006

0x0FA6

2

3

-

Float 32

Вход  4

Измеренные значения

4008

0x0FA8

2

3

-

Float 32

Вход  1

Состояния аналоговых входов

4014

0x0FAE

1

3

-

Enum 11

Вход  2

Состояния аналоговых входов

4015

0x0FAF

1

3

-

Enum 11

Вход  3

Состояния аналоговых входов

4016

0x0FB0

1

3

-

Enum 11

Вход  4

Состояния аналоговых входов

4017

0x0FB1

1

3

-

Enum 11

Изменить состояние

Дискретные выходы

470

0x01D6

1

3

16

Unsigned 8

Состояние

Дискретные выходы

468

0x01D4

1

3

-

Unsigned 8

Безопасное состояние

Выход  1

474

0x01DA

1

3

16

Enum 3

Безопасное состояние

Выход  2

475

0x01DB

1

3

16

Enum 3

Безопасное состояние

Выход  3

476

0x01DC

1

3

16

Enum 3

Безопасное состояние

Выход  4

477

0x01DD

1

3

16

Enum 3

Безопасное состояние

Выход  5

478

0x01DE

1

3

16

Enum 3

Безопасное состояние

Выход  6

479

0x01DF

1

3

16

Enum 3

Состояние

Дискретные ШИМ-выходы

306

0x0132

1

3

-

Unsigned 8

Режим работы

Выход  7

272

0x0110

1

3

16

Enum 2

Период ШИМ

Выход  7

308

0x0134

1

3

16

Unsigned 16

Минимальный импульс ШИМ

Выход  7

404

0x0194

1

3

16

Unsigned 16

Безопасное состояние

Выход  7

538

0x021A

2

3

16

Float 32

Режим работы

Выход  8

273

0x0111

1

3

16

Enum 2

Период ШИМ

Выход  8

309

0x0135

1

3

16

Unsigned 16

Минимальный импульс ШИМ

Выход  8

405

0x0195

1

3

16

Unsigned 16

Безопасное состояние

Выход  8

540

0x021C

2

3

16

Float 32

Выход  7

Коэффициент заполнения

340

0x0154

2

3

16

Float 32

Выход  8

Коэффициент заполнения

342

0x0156

2

3

16

Float 32

Вид сигнала

Выход  1

3160

0x0C58

1

3

16

Enum 3

Состояние

Выход  1

3128

0x0C38

1

3

-

Enum 6

Безопасное состояние

Выход  1

3032

0x0BD8

2

3

16

Float 32

Вид сигнала

Выход  2

3161

0x0C59

1

3

16

Enum 3

Состояние

Выход  2

3129

0x0C39

1

3

-

Enum 6

Безопасное состояние

Выход  2

3034

0x0BDA

2

3

16

Float 32

Вид сигнала

Выход  3

3162

0x0C5A

1

3

16

Enum 3

Состояние

Выход  3

3130

0x0C3A

1

3

-

Enum 6

Безопасное состояние

Выход  3

3036

0x0BDC

2

3

16

Float 32

Выход  1

Значения сигнала

3000

0x0BB8

2

3

16

Float 32

Выход  2

Значения сигнала

3002

0x0BBA

2

3

16

Float 32

Выход  3

Значения сигнала

3004

0x0BBC

2

3

16

Float 32

Состояние

Пользовательские светодиоды (Fn)

601

0x0259

1

3

-

Unsigned 8

Изменить состояние

Пользовательские светодиоды (Fn)

600

0x0258

1

3

16

Unsigned 8

Таймаут перехода в безопасное состояние

Modbus Slave

700

0x02BC

1

3

16

Unsigned 8

Подключение к OwenCloud

OwenCloud

35

0x0023

1

3

16

Enum 2

Статус подключения к OwenCloud

OwenCloud

36

0x0024

1

3

-

Enum 5

Разрешение конфигурирования

Права удалённого доступа из OwenCloud

701

0x02BD

1

3

16

Enum 2

Управление и запись значений

Права удалённого доступа из OwenCloud

702

0x02BE

1

3

16

Enum 2

Доступ к регистрам Modbus

Права удалённого доступа из OwenCloud

703

0x02BF

1

3

16

Enum 4

Наличие обмена

Обмен с устройствами

2008

0x07D8

2

3

-

Unsigned 32

Включить обмен

Обмен с устройствами

2010

0x07DA

2

3

16

Unsigned 32

Время цикла

Логика

61680

0xF0F0

2

3

-

Unsigned 32

Состояние логики

Логика

61682

0xF0F2

1

3

-

Enum 2

Подсветка экрана

Настройки прибора

768

0x0300

1

3

16

Enum 5

Карта регистров Modbus ПР205-24.1211.06.2.0

Карта регистров Modbus ПР205-24.1211.06.2.0

Параметр

Группа

Адрес

Адрес (hex)

Количество регистров

Функция чтения

Функция записи

Тип данных

Время в миллисек

Часы реального времени

61563

0xF07B

2

3

-

Unsigned 32

Время и дата (UTC)

Часы реального времени

61553

0xF071

2

3

16

Date time 32

Часовой пояс

Часы реального времени

61555

0xF073

1

3

16

Enum 38

Секунды

Переменные даты и времени

61557

0xF075

1

3

-

Unsigned 8

Минуты

Переменные даты и времени

61558

0xF076

1

3

-

Unsigned 8

Часы

Переменные даты и времени

61559

0xF077

1

3

-

Unsigned 8

Дни

Переменные даты и времени

61560

0xF078

1

3

-

Unsigned 8

Месяцы

Переменные даты и времени

61561

0xF079

1

3

-

Unsigned 8

Годы

Переменные даты и времени

61562

0xF07A

1

3

-

Unsigned 16

День недели

Переменные даты и времени

61556

0xF074

1

3

-

Enum 8

MAC адрес

Сетевые настройки

61712

0xF110

9

3

-

String 144

IP адрес

Сетевые настройки

20

0x0014

2

3

16

Unsigned 32

Маска подсети

Сетевые настройки

22

0x0016

2

3

16

Unsigned 32

IP адрес шлюза

Сетевые настройки

24

0x0018

2

3

16

Unsigned 32

DNS сервер 1

Сетевые настройки

12

0x000C

2

3

16

Unsigned 32

DNS сервер 2

Сетевые настройки

14

0x000E

2

3

16

Unsigned 32

Режим DHCP

Сетевые настройки

32

0x0020

1

3

16

Enum 2

Применить сейчас

Сетевые настройки

33

0x0021

1

3

16

Enum 2

Статус подключения

Сетевые настройки

34

0x0022

1

3

-

Enum 4

Напряжение

Батарея

801

0x0321

1

3

-

Unsigned 16

Пороговое напряжение

Батарея

800

0x0320

1

3

-

Unsigned 16

Состояние

Батарея

802

0x0322

1

3

-

Enum 2

Период обновления информации

Статус прибора

61624

0xF0B8

1

3

16

Unsigned 8

Статус

Статус прибора

61620

0xF0B4

2

3

-

Unsigned 32

ПРМ Слот 1.  Название модуля

Статус прибора

6000

0x1770

8

3

-

String 128

ПРМ Слот 1.  Версия ПО модуля

Статус прибора

6016

0x1780

4

3

-

String 64

ПРМ Слот 2.  Название модуля

Статус прибора

6032

0x1790

8

3

-

String 128

ПРМ Слот 2.  Версия ПО модуля

Статус прибора

6048

0x17A0

4

3

-

String 64

Ошибки

Статус прибора

61626

0xF0BA

1

3

-

Unsigned 16

Предупреждения

Статус прибора

61627

0xF0BB

1

3

-

Unsigned 16

Период архивирования

Архив

900

0x0384

1

3

16

Unsigned 16

Количество архивов

Архив

901

0x0385

1

3

16

Unsigned 16

Размер архива

Архив

902

0x0386

1

3

16

Unsigned 16

Последний индекс архива

Архив

903

0x0387

1

3

-

Unsigned 16

Состояние

Дискретные входы

51

0x0033

1

3

-

Unsigned 8

Инверсия

Дискретные входы

57

0x0039

1

3

16

Unsigned 8

Фильтр антидребезга

Вход  1

96

0x0060

1

3

16

Unsigned 8

Фильтр антидребезга

Вход  2

97

0x0061

1

3

16

Unsigned 8

Фильтр антидребезга

Вход  3

98

0x0062

1

3

16

Unsigned 8

Фильтр антидребезга

Вход  4

99

0x0063

1

3

16

Unsigned 8

Фильтр антидребезга

Вход  5

100

0x0064

1

3

16

Unsigned 8

Фильтр антидребезга

Вход  6

101

0x0065

1

3

16

Unsigned 8

Состояние

Быстрые дискретные входы

52

0x0034

1

3

-

Unsigned 8

Инверсия

Быстрые дискретные входы

58

0x003A

1

3

16

Unsigned 8

Режим работы

Вход  1

64

0x0040

1

3

16

Enum 3

Фильтр антидребезга

Вход  1

104

0x0068

1

3

16

Unsigned 8

Фронт захвата импульса

Вход  1

80

0x0050

1

3

16

Enum 2

Сброс счётчика импульсов

Вход  1

224

0x00E0

1

3

16

Enum 2

Диагностика

Вход  1

256

0x0100

1

3

-

Enum 2

Режим работы

Вход  2

65

0x0041

1

3

16

Enum 2

Фильтр антидребезга

Вход  2

105

0x0069

1

3

16

Unsigned 8

Фронт захвата импульса

Вход  2

81

0x0051

1

3

16

Enum 2

Сброс счётчика импульсов

Вход  2

225

0x00E1

1

3

16

Enum 2

Диагностика

Вход  2

257

0x0101

1

3

-

Enum 2

Вход  1

Измеренные значения

160

0x00A0

2

3

-

Unsigned 32

Вход  2

Измеренные значения

162

0x00A2

2

3

-

Unsigned 32

Состояние

Дискретно-аналоговые входы

4000

0x0FA0

1

3

-

Unsigned 8

Инверсия

Дискретно-аналоговые входы

4357

0x1105

1

3

16

Unsigned 8

Режим работы

Вход  1

4100

0x1004

1

3

16

Enum 2

Фильтр антидребезга

Дискретный  режим

4108

0x100C

1

3

16

Unsigned 8

Уровень логического нуля

Дискретный  режим

4111

0x100F

2

3

16

Float 32

Уровень логической единицы

Дискретный  режим

4109

0x100D

2

3

16

Float 32

Тип датчика

Аналоговый  режим

4101

0x1005

1

3

16

Enum 28

Постоянная времени фильтра

Аналоговый  режим

4106

0x100A

2

3

16

Float 32

Нижняя  граница измерения

Аналоговый  режим

4104

0x1008

2

3

16

Float 32

Верхняя  граница измерения

Аналоговый  режим

4102

0x1006

2

3

16

Float 32

Режим работы

Вход  2

4116

0x1014

1

3

16

Enum 2

Фильтр антидребезга

Дискретный  режим

4124

0x101C

1

3

16

Unsigned 8

Уровень логического нуля

Дискретный  режим

4127

0x101F

2

3

16

Float 32

Уровень логической единицы

Дискретный  режим

4125

0x101D

2

3

16

Float 32

Тип датчика

Аналоговый  режим

4117

0x1015

1

3

16

Enum 28

Постоянная времени фильтра

Аналоговый  режим

4122

0x101A

2

3

16

Float 32

Нижняя  граница измерения

Аналоговый  режим

4120

0x1018

2

3

16

Float 32

Верхняя  граница измерения

Аналоговый  режим

4118

0x1016

2

3

16

Float 32

Режим работы

Вход  3

4132

0x1024

1

3

16

Enum 2

Фильтр антидребезга

Дискретный  режим

4140

0x102C

1

3

16

Unsigned 8

Уровень логического нуля

Дискретный  режим

4143

0x102F

2

3

16

Float 32

Уровень логической единицы

Дискретный  режим

4141

0x102D

2

3

16

Float 32

Тип датчика

Аналоговый  режим

4133

0x1025

1

3

16

Enum 28

Постоянная времени фильтра

Аналоговый  режим

4138

0x102A

2

3

16

Float 32

Нижняя  граница измерения

Аналоговый  режим

4136

0x1028

2

3

16

Float 32

Верхняя  граница измерения

Аналоговый  режим

4134

0x1026

2

3

16

Float 32

Режим работы

Вход  4

4148

0x1034

1

3

16

Enum 2

Фильтр антидребезга

Дискретный  режим

4156

0x103C

1

3

16

Unsigned 8

Уровень логического нуля

Дискретный  режим

4159

0x103F

2

3

16

Float 32

Уровень логической единицы

Дискретный  режим

4157

0x103D

2

3

16

Float 32

Тип датчика

Аналоговый  режим

4149

0x1035

1

3

16

Enum 28

Постоянная времени фильтра

Аналоговый  режим

4154

0x103A

2

3

16

Float 32

Нижняя  граница измерения

Аналоговый  режим

4152

0x1038

2

3

16

Float 32

Верхняя  граница измерения

Аналоговый  режим

4150

0x1036

2

3

16

Float 32

Вход  1

Измеренные значения

4002

0x0FA2

2

3

-

Float 32

Вход  2

Измеренные значения

4004

0x0FA4

2

3

-

Float 32

Вход  3

Измеренные значения

4006

0x0FA6

2

3

-

Float 32

Вход  4

Измеренные значения

4008

0x0FA8

2

3

-

Float 32

Вход  1

Состояния аналоговых входов

4014

0x0FAE

1

3

-

Enum 11

Вход  2

Состояния аналоговых входов

4015

0x0FAF

1

3

-

Enum 11

Вход  3

Состояния аналоговых входов

4016

0x0FB0

1

3

-

Enum 11

Вход  4

Состояния аналоговых входов

4017

0x0FB1

1

3

-

Enum 11

Изменить состояние

Дискретные выходы

470

0x01D6

1

3

16

Unsigned 8

Состояние

Дискретные выходы

468

0x01D4

1

3

-

Unsigned 8

Безопасное состояние

Выход  1

474

0x01DA

1

3

16

Enum 3

Безопасное состояние

Выход  2

475

0x01DB

1

3

16

Enum 3

Безопасное состояние

Выход  3

476

0x01DC

1

3

16

Enum 3

Безопасное состояние

Выход  4

477

0x01DD

1

3

16

Enum 3

Безопасное состояние

Выход  5

478

0x01DE

1

3

16

Enum 3

Безопасное состояние

Выход  6

479

0x01DF

1

3

16

Enum 3

Состояние

Дискретные ШИМ-выходы

306

0x0132

1

3

-

Unsigned 8

Режим работы

Выход  7

272

0x0110

1

3

16

Enum 2

Период ШИМ

Выход  7

308

0x0134

1

3

16

Unsigned 16

Минимальный импульс ШИМ

Выход  7

404

0x0194

1

3

16

Unsigned 16

Безопасное состояние

Выход  7

538

0x021A

2

3

16

Float 32

Режим работы

Выход  8

273

0x0111

1

3

16

Enum 2

Период ШИМ

Выход  8

309

0x0135

1

3

16

Unsigned 16

Минимальный импульс ШИМ

Выход  8

405

0x0195

1

3

16

Unsigned 16

Безопасное состояние

Выход  8

540

0x021C

2

3

16

Float 32

Выход  7

Коэффициент заполнения

340

0x0154

2

3

16

Float 32

Выход  8

Коэффициент заполнения

342

0x0156

2

3

16

Float 32

Вид сигнала

Выход  1

3160

0x0C58

1

3

16

Enum 3

Состояние

Выход  1

3128

0x0C38

1

3

-

Enum 6

Безопасное состояние

Выход  1

3032

0x0BD8

2

3

16

Float 32

Вид сигнала

Выход  2

3161

0x0C59

1

3

16

Enum 3

Состояние

Выход  2

3129

0x0C39

1

3

-

Enum 6

Безопасное состояние

Выход  2

3034

0x0BDA

2

3

16

Float 32

Вид сигнала

Выход  3

3162

0x0C5A

1

3

16

Enum 3

Состояние

Выход  3

3130

0x0C3A

1

3

-

Enum 6

Безопасное состояние

Выход  3

3036

0x0BDC

2

3

16

Float 32

Выход  1

Значения сигнала

3000

0x0BB8

2

3

16

Float 32

Выход  2

Значения сигнала

3002

0x0BBA

2

3

16

Float 32

Выход  3

Значения сигнала

3004

0x0BBC

2

3

16

Float 32

Состояние

Пользовательские светодиоды (Fn)

601

0x0259

1

3

-

Unsigned 8

Изменить состояние

Пользовательские светодиоды (Fn)

600

0x0258

1

3

16

Unsigned 8

Таймаут перехода в безопасное состояние

Modbus Slave

700

0x02BC

1

3

16

Unsigned 8

Скорость

Настройки порта RS-485 1

750

0x02EE

1

3

16

Enum 6

Размер данных

Настройки порта RS-485 1

751

0x02EF

1

3

16

Enum 2

Контроль чётности

Настройки порта RS-485 1

752

0x02F0

1

3

16

Enum 3

Кол. стоп-битов

Настройки порта RS-485 1

753

0x02F1

1

3

16

Enum 2

Slave ID

Настройки порта RS-485 1

754

0x02F2

1

3

16

Unsigned 8

Скорость

Настройки порта RS-485 2

760

0x02F8

1

3

16

Enum 6

Размер данных

Настройки порта RS-485 2

761

0x02F9

1

3

16

Enum 2

Контроль чётности

Настройки порта RS-485 2

762

0x02FA

1

3

16

Enum 3

Кол. стоп-битов

Настройки порта RS-485 2

763

0x02FB

1

3

16

Enum 2

Slave ID

Настройки порта RS-485 2

764

0x02FC

1

3

16

Unsigned 8

Подключение к OwenCloud

OwenCloud

35

0x0023

1

3

16

Enum 2

Статус подключения к OwenCloud

OwenCloud

36

0x0024

1

3

-

Enum 5

Разрешение конфигурирования

Права удалённого доступа из OwenCloud

701

0x02BD

1

3

16

Enum 2

Управление и запись значений

Права удалённого доступа из OwenCloud

702

0x02BE

1

3

16

Enum 2

Доступ к регистрам Modbus

Права удалённого доступа из OwenCloud

703

0x02BF

1

3

16

Enum 4

Наличие обмена

Обмен с устройствами

2008

0x07D8

2

3

-

Unsigned 32

Включить обмен

Обмен с устройствами

2010

0x07DA

2

3

16

Unsigned 32

Время цикла

Логика

61680

0xF0F0

2

3

-

Unsigned 32

Состояние логики

Логика

61682

0xF0F2

1

3

-

Enum 2

Подсветка экрана

Настройки прибора

768

0x0300

1

3

16

Enum 5

Карта регистров Modbus ПР205-24.1211.02.0.0

Карта регистров Modbus ПР205-24.1211.02.0.0

Параметр

Группа

Адрес

Адрес (hex)

Количество регистров

Функция чтения

Функция записи

Тип данных

Время в миллисек

Часы реального времени

61563

0xF07B

2

3

-

Unsigned 32

Время и дата (UTC)

Часы реального времени

61553

0xF071

2

3

16

Date time 32

Часовой пояс

Часы реального времени

61555

0xF073

1

3

16

Enum 38

Секунды

Переменные даты и времени

61557

0xF075

1

3

-

Unsigned 8

Минуты

Переменные даты и времени

61558

0xF076

1

3

-

Unsigned 8

Часы

Переменные даты и времени

61559

0xF077

1

3

-

Unsigned 8

Дни

Переменные даты и времени

61560

0xF078

1

3

-

Unsigned 8

Месяцы

Переменные даты и времени

61561

0xF079

1

3

-

Unsigned 8

Годы

Переменные даты и времени

61562

0xF07A

1

3

-

Unsigned 16

День недели

Переменные даты и времени

61556

0xF074

1

3

-

Enum 8

MAC адрес

Сетевые настройки

61712

0xF110

9

3

-

String 144

IP адрес

Сетевые настройки

20

0x0014

2

3

16

Unsigned 32

Маска подсети

Сетевые настройки

22

0x0016

2

3

16

Unsigned 32

IP адрес шлюза

Сетевые настройки

24

0x0018

2

3

16

Unsigned 32

DNS сервер 1

Сетевые настройки

12

0x000C

2

3

16

Unsigned 32

DNS сервер 2

Сетевые настройки

14

0x000E

2

3

16

Unsigned 32

Режим DHCP

Сетевые настройки

32

0x0020

1

3

16

Enum 2

Применить сейчас

Сетевые настройки

33

0x0021

1

3

16

Enum 2

Статус подключения

Сетевые настройки

34

0x0022

1

3

-

Enum 4

Напряжение

Батарея

801

0x0321

1

3

-

Unsigned 16

Пороговое напряжение

Батарея

800

0x0320

1

3

-

Unsigned 16

Состояние

Батарея

802

0x0322

1

3

-

Enum 2

Период обновления информации

Статус прибора

61624

0xF0B8

1

3

16

Unsigned 8

Статус

Статус прибора

61620

0xF0B4

2

3

-

Unsigned 32

ПРМ Слот 1.  Название модуля

Статус прибора

6000

0x1770

8

3

-

String 128

ПРМ Слот 1.  Версия ПО модуля

Статус прибора

6016

0x1780

4

3

-

String 64

ПРМ Слот 2.  Название модуля

Статус прибора

6032

0x1790

8

3

-

String 128

ПРМ Слот 2.  Версия ПО модуля

Статус прибора

6048

0x17A0

4

3

-

String 64

Ошибки

Статус прибора

61626

0xF0BA

1

3

-

Unsigned 16

Предупреждения

Статус прибора

61627

0xF0BB

1

3

-

Unsigned 16

Период архивирования

Архив

900

0x0384

1

3

16

Unsigned 16

Количество архивов

Архив

901

0x0385

1

3

16

Unsigned 16

Размер архива

Архив

902

0x0386

1

3

16

Unsigned 16

Последний индекс архива

Архив

903

0x0387

1

3

-

Unsigned 16

Состояние

Дискретные входы

51

0x0033

1

3

-

Unsigned 8

Инверсия

Дискретные входы

57

0x0039

1

3

16

Unsigned 8

Фильтр антидребезга

Вход  1

96

0x0060

1

3

16

Unsigned 8

Фильтр антидребезга

Вход  2

97

0x0061

1

3

16

Unsigned 8

Фильтр антидребезга

Вход  3

98

0x0062

1

3

16

Unsigned 8

Фильтр антидребезга

Вход  4

99

0x0063

1

3

16

Unsigned 8

Фильтр антидребезга

Вход  5

100

0x0064

1

3

16

Unsigned 8

Фильтр антидребезга

Вход  6

101

0x0065

1

3

16

Unsigned 8

Состояние

Быстрые дискретные входы

52

0x0034

1

3

-

Unsigned 8

Инверсия

Быстрые дискретные входы

58

0x003A

1

3

16

Unsigned 8

Режим работы

Вход  1

64

0x0040

1

3

16

Enum 3

Фильтр антидребезга

Вход  1

104

0x0068

1

3

16

Unsigned 8

Фронт захвата импульса

Вход  1

80

0x0050

1

3

16

Enum 2

Сброс счётчика импульсов

Вход  1

224

0x00E0

1

3

16

Enum 2

Диагностика

Вход  1

256

0x0100

1

3

-

Enum 2

Режим работы

Вход  2

65

0x0041

1

3

16

Enum 2

Фильтр антидребезга

Вход  2

105

0x0069

1

3

16

Unsigned 8

Фронт захвата импульса

Вход  2

81

0x0051

1

3

16

Enum 2

Сброс счётчика импульсов

Вход  2

225

0x00E1

1

3

16

Enum 2

Диагностика

Вход  2

257

0x0101

1

3

-

Enum 2

Вход  1

Измеренные значения

160

0x00A0

2

3

-

Unsigned 32

Вход  2

Измеренные значения

162

0x00A2

2

3

-

Unsigned 32

Состояние

Дискретно-аналоговые входы

4000

0x0FA0

1

3

-

Unsigned 8

Инверсия

Дискретно-аналоговые входы

4357

0x1105

1

3

16

Unsigned 8

Режим работы

Вход  1

4100

0x1004

1

3

16

Enum 2

Фильтр антидребезга

Дискретный  режим

4108

0x100C

1

3

16

Unsigned 8

Уровень логического нуля

Дискретный  режим

4111

0x100F

2

3

16

Float 32

Уровень логической единицы

Дискретный  режим

4109

0x100D

2

3

16

Float 32

Тип датчика

Аналоговый  режим

4101

0x1005

1

3

16

Enum 28

Постоянная времени фильтра

Аналоговый  режим

4106

0x100A

2

3

16

Float 32

Нижняя  граница измерения

Аналоговый  режим

4104

0x1008

2

3

16

Float 32

Верхняя  граница измерения

Аналоговый  режим

4102

0x1006

2

3

16

Float 32

Режим работы

Вход  2

4116

0x1014

1

3

16

Enum 2

Фильтр антидребезга

Дискретный  режим

4124

0x101C

1

3

16

Unsigned 8

Уровень логического нуля

Дискретный  режим

4127

0x101F

2

3

16

Float 32

Уровень логической единицы

Дискретный  режим

4125

0x101D

2

3

16

Float 32

Тип датчика

Аналоговый  режим

4117

0x1015

1

3

16

Enum 28

Постоянная времени фильтра

Аналоговый  режим

4122

0x101A

2

3

16

Float 32

Нижняя  граница измерения

Аналоговый  режим

4120

0x1018

2

3

16

Float 32

Верхняя  граница измерения

Аналоговый  режим

4118

0x1016

2

3

16

Float 32

Режим работы

Вход  3

4132

0x1024

1

3

16

Enum 2

Фильтр антидребезга

Дискретный  режим

4140

0x102C

1

3

16

Unsigned 8

Уровень логического нуля

Дискретный  режим

4143

0x102F

2

3

16

Float 32

Уровень логической единицы

Дискретный  режим

4141

0x102D

2

3

16

Float 32

Тип датчика

Аналоговый  режим

4133

0x1025

1

3

16

Enum 28

Постоянная времени фильтра

Аналоговый  режим

4138

0x102A

2

3

16

Float 32

Нижняя  граница измерения

Аналоговый  режим

4136

0x1028

2

3

16

Float 32

Верхняя  граница измерения

Аналоговый  режим

4134

0x1026

2

3

16

Float 32

Режим работы

Вход  4

4148

0x1034

1

3

16

Enum 2

Фильтр антидребезга

Дискретный  режим

4156

0x103C

1

3

16

Unsigned 8

Уровень логического нуля

Дискретный  режим

4159

0x103F

2

3

16

Float 32

Уровень логической единицы

Дискретный  режим

4157

0x103D

2

3

16

Float 32

Тип датчика

Аналоговый  режим

4149

0x1035

1

3

16

Enum 28

Постоянная времени фильтра

Аналоговый  режим

4154

0x103A

2

3

16

Float 32

Нижняя  граница измерения

Аналоговый  режим

4152

0x1038

2

3

16

Float 32

Верхняя  граница измерения

Аналоговый  режим

4150

0x1036

2

3

16

Float 32

Вход  1

Измеренные значения

4002

0x0FA2

2

3

-

Float 32

Вход  2

Измеренные значения

4004

0x0FA4

2

3

-

Float 32

Вход  3

Измеренные значения

4006

0x0FA6

2

3

-

Float 32

Вход  4

Измеренные значения

4008

0x0FA8

2

3

-

Float 32

Вход  1

Состояния аналоговых входов

4014

0x0FAE

1

3

-

Enum 11

Вход  2

Состояния аналоговых входов

4015

0x0FAF

1

3

-

Enum 11

Вход  3

Состояния аналоговых входов

4016

0x0FB0

1

3

-

Enum 11

Вход  4

Состояния аналоговых входов

4017

0x0FB1

1

3

-

Enum 11

Изменить состояние

Дискретные выходы

470

0x01D6

1

3

16

Unsigned 8

Состояние

Дискретные выходы

468

0x01D4

1

3

-

Unsigned 8

Безопасное состояние

Выход  1

474

0x01DA

1

3

16

Enum 3

Безопасное состояние

Выход  2

475

0x01DB

1

3

16

Enum 3

Безопасное состояние

Выход  3

476

0x01DC

1

3

16

Enum 3

Безопасное состояние

Выход  4

477

0x01DD

1

3

16

Enum 3

Безопасное состояние

Выход  5

478

0x01DE

1

3

16

Enum 3

Безопасное состояние

Выход  6

479

0x01DF

1

3

16

Enum 3

Безопасное состояние

Выход  7

480

0x01E0

1

3

16

Enum 3

Безопасное состояние

Выход  8

481

0x01E1

1

3

16

Enum 3

Вид сигнала

Выход  1

3160

0x0C58

1

3

16

Enum 3

Состояние

Выход  1

3128

0x0C38

1

3

-

Enum 6

Безопасное состояние

Выход  1

3032

0x0BD8

2

3

16

Float 32

Вид сигнала

Выход  2

3161

0x0C59

1

3

16

Enum 3

Состояние

Выход  2

3129

0x0C39

1

3

-

Enum 6

Безопасное состояние

Выход  2

3034

0x0BDA

2

3

16

Float 32

Вид сигнала

Выход  3

3162

0x0C5A

1

3

16

Enum 3

Состояние

Выход  3

3130

0x0C3A

1

3

-

Enum 6

Безопасное состояние

Выход  3

3036

0x0BDC

2

3

16

Float 32

Выход  1

Значения сигнала

3000

0x0BB8

2

3

16

Float 32

Выход  2

Значения сигнала

3002

0x0BBA

2

3

16

Float 32

Выход  3

Значения сигнала

3004

0x0BBC

2

3

16

Float 32

Состояние

Пользовательские светодиоды (Fn)

601

0x0259

1

3

-

Unsigned 8

Изменить состояние

Пользовательские светодиоды (Fn)

600

0x0258

1

3

16

Unsigned 8

Таймаут перехода в безопасное состояние

Modbus Slave

700

0x02BC

1

3

16

Unsigned 8

Подключение к OwenCloud

OwenCloud

35

0x0023

1

3

16

Enum 2

Статус подключения к OwenCloud

OwenCloud

36

0x0024

1

3

-

Enum 5

Разрешение конфигурирования

Права удалённого доступа из OwenCloud

701

0x02BD

1

3

16

Enum 2

Управление и запись значений

Права удалённого доступа из OwenCloud

702

0x02BE

1

3

16

Enum 2

Доступ к регистрам Modbus

Права удалённого доступа из OwenCloud

703

0x02BF

1

3

16

Enum 4

Наличие обмена

Обмен с устройствами

2008

0x07D8

2

3

-

Unsigned 32

Включить обмен

Обмен с устройствами

2010

0x07DA

2

3

16

Unsigned 32

Время цикла

Логика

61680

0xF0F0

2

3

-

Unsigned 32

Состояние логики

Логика

61682

0xF0F2

1

3

-

Enum 2

Подсветка экрана

Настройки прибора

768

0x0300

1

3

16

Enum 5

Карта регистров Modbus ПР205-24.1211.02.2.0

Карта регистров Modbus ПР205-24.1211.02.2.0

Параметр

Группа

Адрес

Адрес (hex)

Количество регистров

Функция чтения

Функция записи

Тип данных

Время в миллисек

Часы реального времени

61563

0xF07B

2

3

-

Unsigned 32

Время и дата (UTC)

Часы реального времени

61553

0xF071

2

3

16

Date time 32

Часовой пояс

Часы реального времени

61555

0xF073

1

3

16

Enum 38

Секунды

Переменные даты и времени

61557

0xF075

1

3

-

Unsigned 8

Минуты

Переменные даты и времени

61558

0xF076

1

3

-

Unsigned 8

Часы

Переменные даты и времени

61559

0xF077

1

3

-

Unsigned 8

Дни

Переменные даты и времени

61560

0xF078

1

3

-

Unsigned 8

Месяцы

Переменные даты и времени

61561

0xF079

1

3

-

Unsigned 8

Годы

Переменные даты и времени

61562

0xF07A

1

3

-

Unsigned 16

День недели

Переменные даты и времени

61556

0xF074

1

3

-

Enum 8

MAC адрес

Сетевые настройки

61712

0xF110

9

3

-

String 144

IP адрес

Сетевые настройки

20

0x0014

2

3

16

Unsigned 32

Маска подсети

Сетевые настройки

22

0x0016

2

3

16

Unsigned 32

IP адрес шлюза

Сетевые настройки

24

0x0018

2

3

16

Unsigned 32

DNS сервер 1

Сетевые настройки

12

0x000C

2

3

16

Unsigned 32

DNS сервер 2

Сетевые настройки

14

0x000E

2

3

16

Unsigned 32

Режим DHCP

Сетевые настройки

32

0x0020

1

3

16

Enum 2

Применить сейчас

Сетевые настройки

33

0x0021

1

3

16

Enum 2

Статус подключения

Сетевые настройки

34

0x0022

1

3

-

Enum 4

Напряжение

Батарея

801

0x0321

1

3

-

Unsigned 16

Пороговое напряжение

Батарея

800

0x0320

1

3

-

Unsigned 16

Состояние

Батарея

802

0x0322

1

3

-

Enum 2

Период обновления информации

Статус прибора

61624

0xF0B8

1

3

16

Unsigned 8

Статус

Статус прибора

61620

0xF0B4

2

3

-

Unsigned 32

ПРМ Слот 1.  Название модуля

Статус прибора

6000

0x1770

8

3

-

String 128

ПРМ Слот 1.  Версия ПО модуля

Статус прибора

6016

0x1780

4

3

-

String 64

ПРМ Слот 2.  Название модуля

Статус прибора

6032

0x1790

8

3

-

String 128

ПРМ Слот 2.  Версия ПО модуля

Статус прибора

6048

0x17A0

4

3

-

String 64

Ошибки

Статус прибора

61626

0xF0BA

1

3

-

Unsigned 16

Предупреждения

Статус прибора

61627

0xF0BB

1

3

-

Unsigned 16

Период архивирования

Архив

900

0x0384

1

3

16

Unsigned 16

Количество архивов

Архив

901

0x0385

1

3

16

Unsigned 16

Размер архива

Архив

902

0x0386

1

3

16

Unsigned 16

Последний индекс архива

Архив

903

0x0387

1

3

-

Unsigned 16

Состояние

Дискретные входы

51

0x0033

1

3

-

Unsigned 8

Инверсия

Дискретные входы

57

0x0039

1

3

16

Unsigned 8

Фильтр антидребезга

Вход  1

96

0x0060

1

3

16

Unsigned 8

Фильтр антидребезга

Вход  2

97

0x0061

1

3

16

Unsigned 8

Фильтр антидребезга

Вход  3

98

0x0062

1

3

16

Unsigned 8

Фильтр антидребезга

Вход  4

99

0x0063

1

3

16

Unsigned 8

Фильтр антидребезга

Вход  5

100

0x0064

1

3

16

Unsigned 8

Фильтр антидребезга

Вход  6

101

0x0065

1

3

16

Unsigned 8

Состояние

Быстрые дискретные входы

52

0x0034

1

3

-

Unsigned 8

Инверсия

Быстрые дискретные входы

58

0x003A

1

3

16

Unsigned 8

Режим работы

Вход  1

64

0x0040

1

3

16

Enum 3

Фильтр антидребезга

Вход  1

104

0x0068

1

3

16

Unsigned 8

Фронт захвата импульса

Вход  1

80

0x0050

1

3

16

Enum 2

Сброс счётчика импульсов

Вход  1

224

0x00E0

1

3

16

Enum 2

Диагностика

Вход  1

256

0x0100

1

3

-

Enum 2

Режим работы

Вход  2

65

0x0041

1

3

16

Enum 2

Фильтр антидребезга

Вход  2

105

0x0069

1

3

16

Unsigned 8

Фронт захвата импульса

Вход  2

81

0x0051

1

3

16

Enum 2

Сброс счётчика импульсов

Вход  2

225

0x00E1

1

3

16

Enum 2

Диагностика

Вход  2

257

0x0101

1

3

-

Enum 2

Вход  1

Измеренные значения

160

0x00A0

2

3

-

Unsigned 32

Вход  2

Измеренные значения

162

0x00A2

2

3

-

Unsigned 32

Состояние

Дискретно-аналоговые входы

4000

0x0FA0

1

3

-

Unsigned 8

Инверсия

Дискретно-аналоговые входы

4357

0x1105

1

3

16

Unsigned 8

Режим работы

Вход  1

4100

0x1004

1

3

16

Enum 2

Фильтр антидребезга

Дискретный  режим

4108

0x100C

1

3

16

Unsigned 8

Уровень логического нуля

Дискретный  режим

4111

0x100F

2

3

16

Float 32

Уровень логической единицы

Дискретный  режим

4109

0x100D

2

3

16

Float 32

Тип датчика

Аналоговый  режим

4101

0x1005

1

3

16

Enum 28

Постоянная времени фильтра

Аналоговый  режим

4106

0x100A

2

3

16

Float 32

Нижняя  граница измерения

Аналоговый  режим

4104

0x1008

2

3

16

Float 32

Верхняя  граница измерения

Аналоговый  режим

4102

0x1006

2

3

16

Float 32

Режим работы

Вход  2

4116

0x1014

1

3

16

Enum 2

Фильтр антидребезга

Дискретный  режим

4124

0x101C

1

3

16

Unsigned 8

Уровень логического нуля

Дискретный  режим

4127

0x101F

2

3

16

Float 32

Уровень логической единицы

Дискретный  режим

4125

0x101D

2

3

16

Float 32

Тип датчика

Аналоговый  режим

4117

0x1015

1

3

16

Enum 28

Постоянная времени фильтра

Аналоговый  режим

4122

0x101A

2

3

16

Float 32

Нижняя  граница измерения

Аналоговый  режим

4120

0x1018

2

3

16

Float 32

Верхняя  граница измерения

Аналоговый  режим

4118

0x1016

2

3

16

Float 32

Режим работы

Вход  3

4132

0x1024

1

3

16

Enum 2

Фильтр антидребезга

Дискретный  режим

4140

0x102C

1

3

16

Unsigned 8

Уровень логического нуля

Дискретный  режим

4143

0x102F

2

3

16

Float 32

Уровень логической единицы

Дискретный  режим

4141

0x102D

2

3

16

Float 32

Тип датчика

Аналоговый  режим

4133

0x1025

1

3

16

Enum 28

Постоянная времени фильтра

Аналоговый  режим

4138

0x102A

2

3

16

Float 32

Нижняя  граница измерения

Аналоговый  режим

4136

0x1028

2

3

16

Float 32

Верхняя  граница измерения

Аналоговый  режим

4134

0x1026

2

3

16

Float 32

Режим работы

Вход  4

4148

0x1034

1

3

16

Enum 2

Фильтр антидребезга

Дискретный  режим

4156

0x103C

1

3

16

Unsigned 8

Уровень логического нуля

Дискретный  режим

4159

0x103F

2

3

16

Float 32

Уровень логической единицы

Дискретный  режим

4157

0x103D

2

3

16

Float 32

Тип датчика

Аналоговый  режим

4149

0x1035

1

3

16

Enum 28

Постоянная времени фильтра

Аналоговый  режим

4154

0x103A

2

3

16

Float 32

Нижняя  граница измерения

Аналоговый  режим

4152

0x1038

2

3

16

Float 32

Верхняя  граница измерения

Аналоговый  режим

4150

0x1036

2

3

16

Float 32

Вход  1

Измеренные значения

4002

0x0FA2

2

3

-

Float 32

Вход  2

Измеренные значения

4004

0x0FA4

2

3

-

Float 32

Вход  3

Измеренные значения

4006

0x0FA6

2

3

-

Float 32

Вход  4

Измеренные значения

4008

0x0FA8

2

3

-

Float 32

Вход  1

Состояния аналоговых входов

4014

0x0FAE

1

3

-

Enum 11

Вход  2

Состояния аналоговых входов

4015

0x0FAF

1

3

-

Enum 11

Вход  3

Состояния аналоговых входов

4016

0x0FB0

1

3

-

Enum 11

Вход  4

Состояния аналоговых входов

4017

0x0FB1

1

3

-

Enum 11

Изменить состояние

Дискретные выходы

470

0x01D6

1

3

16

Unsigned 8

Состояние

Дискретные выходы

468

0x01D4

1

3

-

Unsigned 8

Безопасное состояние

Выход  1

474

0x01DA

1

3

16

Enum 3

Безопасное состояние

Выход  2

475

0x01DB

1

3

16

Enum 3

Безопасное состояние

Выход  3

476

0x01DC

1

3

16

Enum 3

Безопасное состояние

Выход  4

477

0x01DD

1

3

16

Enum 3

Безопасное состояние

Выход  5

478

0x01DE

1

3

16

Enum 3

Безопасное состояние

Выход  6

479

0x01DF

1

3

16

Enum 3

Безопасное состояние

Выход  7

480

0x01E0

1

3

16

Enum 3

Безопасное состояние

Выход  8

481

0x01E1

1

3

16

Enum 3

Вид сигнала

Выход  1

3160

0x0C58

1

3

16

Enum 3

Состояние

Выход  1

3128

0x0C38

1

3

-

Enum 6

Безопасное состояние

Выход  1

3032

0x0BD8

2

3

16

Float 32

Вид сигнала

Выход  2

3161

0x0C59

1

3

16

Enum 3

Состояние

Выход  2

3129

0x0C39

1

3

-

Enum 6

Безопасное состояние

Выход  2

3034

0x0BDA

2

3

16

Float 32

Вид сигнала

Выход  3

3162

0x0C5A

1

3

16

Enum 3

Состояние

Выход  3

3130

0x0C3A

1

3

-

Enum 6

Безопасное состояние

Выход  3

3036

0x0BDC

2

3

16

Float 32

Выход  1

Значения сигнала

3000

0x0BB8

2

3

16

Float 32

Выход  2

Значения сигнала

3002

0x0BBA

2

3

16

Float 32

Выход  3

Значения сигнала

3004

0x0BBC

2

3

16

Float 32

Состояние

Пользовательские светодиоды (Fn)

601

0x0259

1

3

-

Unsigned 8

Изменить состояние

Пользовательские светодиоды (Fn)

600

0x0258

1

3

16

Unsigned 8

Таймаут перехода в безопасное состояние

Modbus Slave

700

0x02BC

1

3

16

Unsigned 8

Скорость

Настройки порта RS-485 1

750

0x02EE

1

3

16

Enum 6

Размер данных

Настройки порта RS-485 1

751

0x02EF

1

3

16

Enum 2

Контроль чётности

Настройки порта RS-485 1

752

0x02F0

1

3

16

Enum 3

Кол. стоп-битов

Настройки порта RS-485 1

753

0x02F1

1

3

16

Enum 2

Slave ID

Настройки порта RS-485 1

754

0x02F2

1

3

16

Unsigned 8

Скорость

Настройки порта RS-485 2

760

0x02F8

1

3

16

Enum 6

Размер данных

Настройки порта RS-485 2

761

0x02F9

1

3

16

Enum 2

Контроль чётности

Настройки порта RS-485 2

762

0x02FA

1

3

16

Enum 3

Кол. стоп-битов

Настройки порта RS-485 2

763

0x02FB

1

3

16

Enum 2

Slave ID

Настройки порта RS-485 2

764

0x02FC

1

3

16

Unsigned 8

Подключение к OwenCloud

OwenCloud

35

0x0023

1

3

16

Enum 2

Статус подключения к OwenCloud

OwenCloud

36

0x0024

1

3

-

Enum 5

Разрешение конфигурирования

Права удалённого доступа из OwenCloud

701

0x02BD

1

3

16

Enum 2

Управление и запись значений

Права удалённого доступа из OwenCloud

702

0x02BE

1

3

16

Enum 2

Доступ к регистрам Modbus

Права удалённого доступа из OwenCloud

703

0x02BF

1

3

16

Enum 4

Наличие обмена

Обмен с устройствами

2008

0x07D8

2

3

-

Unsigned 32

Включить обмен

Обмен с устройствами

2010

0x07DA

2

3

16

Unsigned 32

Время цикла

Логика

61680

0xF0F0

2

3

-

Unsigned 32

Состояние логики

Логика

61682

0xF0F2

1

3

-

Enum 2

Подсветка экрана

Настройки прибора

768

0x0300

1

3

16

Enum 5

Юстировка

Общие указания

Юстировка прибора заключается в проведении технологических операций, обеспечивающих восстановление метрологических характеристик прибора в случае изменения их после длительной эксплуатации.

Внимание
Необходимость проведения юстировки определяется по результатам поверки прибора и должна производиться только квалифицированными специалистами метрологических служб, осуществляющих эту поверку.

Юстировка проводится в OWEN Configurator.

Юстировка выполняется с помощью эталонных источников сигналов, имитирующих работу датчиков и подключаемых к контактам прибора. Во время юстировки прибор вычисляет соотношения между поступившим входным сигналом и опорным сигналом.

Вычисленные соотношения (коэффициенты юстировки) записываются в энергонезависимую память прибора и используются как базовые для выполнения всех дальнейших расчетов.

Каждый аналоговый вход имеет собственные коэффициенты юстировки для каждого типа датчика.

Если вычисленные значения коэффициентов выходят за пределы, установленные для него во время разработки прибора, в OWEN Configurator выводится сообщение о причине этой ошибки.

Юстировка универсальных входов

Для юстировки входного сигнала типа «напряжение» следует:

  1. Подключить к контактам входа прибора дифференциальный вольтметр В1-12 в режиме калибратора напряжений или аналогичный ему источник образцового напряжения с классом точности не ниже 0,05. Прибор следует соединять с калибратором по схеме, приведенной на рисунке, 1 с соблюдением полярности подключения.

    Graphic
    Подключение источника эталонного сигнала

  2. Подключить прибор к ПК с помощью USB кабеля.

  3. Подать питание на прибор.

  4. Запустить OWEN Configurator.

  5. Добавить прибор в OWEN Configurator.

  6. Выбрать в меню кнопку «Юстировать устройство» для запуска мастера юстировки. В появившемся меню выбрать (см. рисунок):

    • аналоговые входы;

    • тип датчика;

    • количество каналов;

    • метод юстировки.

    Graphic
    Выбор элементов
  7. Нажать кнопку «Далее» и следовать указаниям мастера юстировки.

В случае использования входа для измерения сигналов «ток» рекомендуется провести юстировку входа, предварительно выбрав параметр «Тип датчика» равным «4…20 мА». Схема подключения изображена на рисунке, 2. Действия аналогичны пп. 1–4.

В случае использования входа для измерения сигналов «сопротивление» (например, для ТС) рекомендуется провести юстировку входа, предварительно выбрав параметр «Тип датчика» равным «0…300 кОм». Схема подключения изображена на рисунке, 3. Действия аналогичны пп. 1–4.

Юстировка универсальных аналоговых выходов

Перед началом юстировки выходов переключатель Работа/Стоп следует перевести в положение «Стоп».

Для юстировки универсальных аналоговых выходов следует:

  1. Подключить ВЭ согласно схеме, приведенной на рисунке или рисунке.

    Graphic
    Схема подключения к ВЭ для юстировки сигналов типа «4…20 мА» (R < 300 Ом)
    Graphic
    Схема подключения нагрузки к ВЭ для юстировки сигналов типа «0...10 В»

  2. Проконтролировать напряжение источника питания — оно должно быть в диапазоне 15…30 В.

    В качестве измерителя напряжения можно использовать прибор для калибровки вольтметров Р3003 или иной прибор того же класса с разрешающей способностью 0,001 В.

  3. Подключить прибор к ПК с помощью USB кабеля.

  4. Подать питание на прибор.

  5. Запустить OWEN Configurator.

  6. Добавить прибор в OWEN Configurator.

  7. Выбрать в меню кнопку «Юстировать прибор» для запуска мастера юстировки. В появившемся меню выбрать (см. рисунок):

    • аналоговые выходы;

    • тип сигнала;

    • количество каналов.

    Graphic
    Выбор элементов
  8. Далее следовать рекомендациям мастера для юстировки.

Расчет вектора инициализации для шифрования файла архива

Для расшифровки файла архива в качестве вектора инициализации следует использовать хеш-функцию. Хеш-функция должна возвращать 8 байт (тип long long).

Пример реализации хеш-функции на языке программирования С:

typedef union {         struct {                 unsigned long lo;                 unsigned long hi;         };         long long hilo; }LONG_LONG; long long Hash8(const char *str) {     // На основе Rot13         LONG_LONG temp;         temp.lo = 0;         temp.hi = 0;         for ( ; *str; )         {                 temp.lo += (unsigned char) (*str);                 temp.lo –= (temp.lo << 13) | (temp.lo >> 19);                 str++;                 if (!str) break;                 temp.hi += (unsigned char) (*str);                 temp.hi –= (temp.hi << 13) | (temp.hi >> 19);                 str++;         }         return temp.hilo; }

Предупреждающие сообщения

В данном руководстве применяются следующие предупреждения:

Опасность

Ключевое слово ОПАСНОСТЬ сообщает о непосредственной угрозе опасной ситуации, которая приведет к смерти или серьезной травме, если ее не предотвратить.

Внимание

Ключевое слово ВНИМАНИЕ сообщает о потенциально опасной ситуации, которая может привести к небольшим травмам.

Предупреждение

Ключевое слово ПРЕДУПРЕЖДЕНИЕ сообщает о потенциально опасной ситуации , которая может привести к повреждению имущества.

Примечание

Ключевое слово ПРИМЕЧАНИЕ обращает внимание на полезные советы и рекомендации, а также информацию для эффективной и безаварийной работы оборудования.

Ограничение ответственности

Ни при каких обстоятельствах ООО «Производственное Объединение ОВЕН» и его контрагенты не будут нести юридическую ответственность и не будут признавать за собой какие-либо обязательства в связи с любым ущербом, возникшим в результате установки или использования прибора с нарушением действующей нормативно-технической документации.