1-RU-136132-1.9

Руководство по эксплуатации

Введение

Настоящее руководство по эксплуатации предназначено для ознакомления обслуживающего персонала с устройством, принципом действия, конструкцией, работой и техническим обслуживанием модуля расширения дискретного ввода/вывода ПРМ-Х.6, в дальнейшем по тексту именуемого «модуль» или «прибор».

Подключение, настройка и техобслуживание прибора должны производиться только квалифицированными специалистами после прочтения настоящего руководства по эксплуатации.

Прибор изготавливается в нескольких модификациях, отличающихся друг от друга напряжением питания и типом дискретных входов.

Прибор изготавливается в различных модификациях, указанных в коде полного условного обозначения:

Graphic
Примечание

Расшифровка буквенных обозначений приведена в таблице.

Пример наименования модуля при заказе: ПРМ-220.6

Приведенное условное обозначение указывает, что изготовлению и поставке подлежит модуль, работающий при номинальным напряжении 230 В переменного тока, оснащенный:

  • шестнадцатью дискретными входами для сигналов 230 В переменного тока;

  • двеннадцатью дискретными выходами типа «электромагнитное реле».

Термины и аббревиатуры

  • Выходной элемент (ВЭ) – элемент схемы прибора, служащий для подключения исполнительных механизмов или коммутации внешнего управляющего сигнала.

  • Исполнительный механизм (ИМ) – внешнее устройство, функционирующее под управлением прибора.

  • ПК – персональный компьютер.

  • ПО – программное обеспечение.

  • Параметры – значения, определяющие конфигурацию прибора. Задаются в OwenLogic.

  • Слот 1, Слот 2 – местоположение модуля относительно головного устройства.

  • ТУ – технические условия.

  • Формат данных – тип значений параметров (целое число, число с плавающей точкой и др.).

Назначение

Модуль не является автономным устройством и работает по сигналам, поступающим по коммуникационной шине от головного устройства. Модуль предназначен для увеличения количества входов и выходов головного устройства.

По сигналам от головного устройства модуль:

  • управляет встроенными дискретными ВЭ, которые используются для подключения исполнительных механизмов с дискретным управлением;

  • считывает состояние дискретных входов и передает их в головное устройство.

Модуль выпускается согласно ТУ27.12.40-002-46526536-2024.

Технические характеристики и условия эксплуатации

Технические характеристики

Список модификаций
МодификацияТип и номинал напряжения питанияВходыВыходы
ДискретныеДискретные
ПРМ-220.6~230 В16 ДФ*12 Р
ПРМ-24.6=24 В16 Д12 Р
Примечание
* Расшифровка обозначений приведена в таблице.
Сводная таблица характеристик
ТипТаблица характеристик
Характеристики приборов с питанием 230 Втаблица
Характеристики приборов с питанием 24 Втаблица
Дискретный вход для сигналов ~230 В (вход типа «ДФ»)таблица
Дискретный вход для сигналов =24 В (вход типа «Д»)таблица
Дискретный выход типа «электромагнитное реле» (выход типа «Р»)таблица
Характеристики приборов с питанием 230 В
НаименованиеЗначение
Диапазон переменного напряжения питанияот 90 до 264 В (номинальное 230 В, при 50 Гц)
Диапазон постоянного напряжения питанияот 127 до 373 В (номинальное 230 В)

Гальваническая развязка

Есть

Электрическая прочность изоляции

2830 В

Потребляемая мощность, не более

11 ВА

Характеристики приборов с питанием 24 В
НаименованиеЗначение
Диапазон напряжения питанияот =19 до 30 В (номинальное =24 В)

Гальваническая развязка

Есть

Электрическая прочность изоляции

510 В

Потребляемая мощность, не более

7 Вт

Защита от подключения неверной полярности питающего напряжения

Есть

Общие технические характеристики

Наименование

Значение

Программирование

Среда программирования

OwenLogic

Коммуникационный интерфейс

Скорость обмена по внутренней шине пакетами данных по 16 бит

4000 пакет/с

Частота внутренней шины

2,25 МГц

Максимальное количество модулей на шине

2 шт.

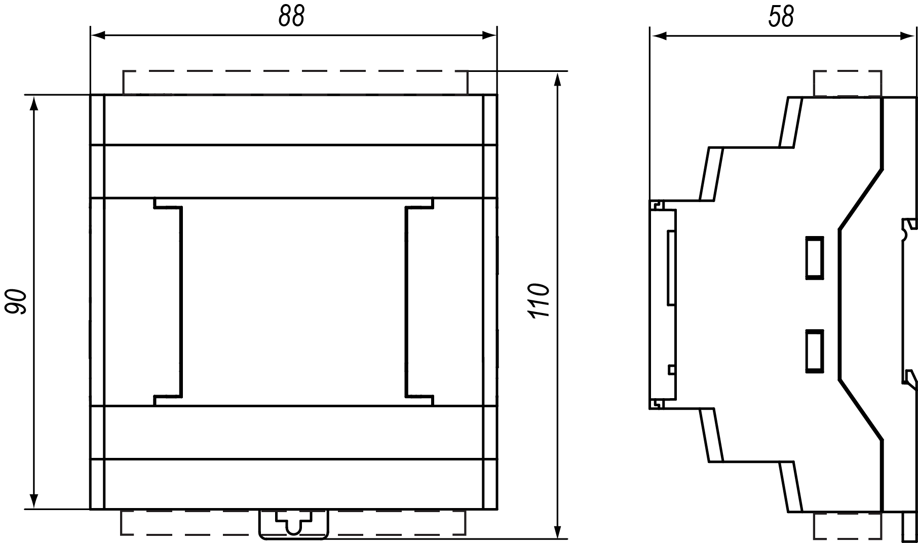
Конструкция

Тип корпуса

Для крепления на DIN-рейку (35 мм)

Габаритные размеры:

  без установленных клемм и без учета фиксатора DIN-рейки

(88 × 90 × 58) ± 1 мм

  с установленными клеммами и с учетом фиксатора DIN-рейки(88 × 110 × 58) ± 1 мм

Степень защиты корпуса по ГОСТ 14254-2015

IP20

Масса модуля, не более

0,4 кг

Средний срок службы

10 лет

Характеристики входов

Характеристики дискретных входов типа «ДФ»

Наименование

Значение

Номинальное напряжение питания

230 В (переменный ток)

Максимальное допустимое напряжение питания

264 В (переменный ток)

Тип датчика для дискретного входа

механические коммутационные устройства (контакты кнопок, выключателей, герконов, реле и т. п.)

Напряжение «логической единицы»

от 150 до 270 В

Ток «логической единицы»

от 0,4 до 5 мА

Напряжение «логического нуля»

от 0 до 50 В

Ток «логического нуля»

от 0 до 0,5 мА

Минимальная длительность импульса, воспринимаемая дискретным входом

45 мс

Максимальное время реакции прибора (изменения значения ВЭ связанного с дискретным входом)

100 мс

Электрическая прочность изоляции между входами и между другими цепями прибора

2830 В

Электрическая прочность изоляции между дискретными входами и другими цепями

1780 В

Характеристики дискретных входов типа «Д»

Наименование

Значение

Номинальное напряжение питания

24 В (постоянный ток)

Максимальное допустимое напряжение питания

30 В (постоянный ток)

Тип датчика для дискретного входа

механические коммутационные устройства (контакты кнопок, выключателей, герконов,

реле и т. п.);

датчики с выходными транзисторными ключами:

  транзистор p-n-p-типа с открытым коллектором на выходе;

  транзистор n-p-n-типа с открытым коллектором на выходе

Напряжение «логической единицы»

от 15 до 30 В

Ток «логической единицы»

от 2 до 10 мА

Напряжение «логического нуля»

от минус 3 до плюс 5 В

Ток «логического нуля»

от 0 до 0,5 мА

Минимальная длительность импульса, воспринимаемая дискретным входом

5 мс*

Максимальное время реакции прибора (изменения значения ВЭ связанного с дискретным входом)

30 мс

Электрическая прочность изоляции между входами и другими цепями прибора

510 В

* Максимальная частота воспринимаемая дискретным входом типа «Д» зависит от времени цикла пользовательской программы, скважности импульсов и установленного времени фильтра.

Характеристики выходов

Характеристики дискретных выходов типа «Р»
НаименованиеЗначение

Тип выходного устройства

Электромагнитное реле (нормально разомкнутые контакты)

Электрическая прочность изоляции между выходом и другими цепями

  • 2830 В

Коммутируемое напряжение в нагрузке:

  • для цепи постоянного тока, не более

30 В (резистивная нагрузка)

  • для цепи переменного тока, не более

250 В (резистивная нагрузка)

Допустимый ток нагрузки, не более

  • 5 А при напряжении не более 250 В переменного тока и cos(φ) > 0,95;

  • 3 А при напряжении не более 30 В постоянного тока

Допустимый ток нагрузки, не менее

10 мА (при 5 В постоянного тока)

Электрический ресурс реле, не менее

  • 200000 циклов: 5 А при 250 В переменного тока;

  • 50000 циклов: 7 А при 250 В переменного тока;

  • 100000 циклов: 3 А, 30 В постоянного тока,

  • резистивная нагрузка

Условия эксплуатации

Прибор предназначен для эксплуатации в однофазной сети в следующих условиях:

  • закрытые взрывобезопасные помещения без агрессивных паров и газов;
  • температура окружающего воздуха от минус 40 до плюс 55 °С;
  • верхний предел относительной влажности воздуха: не более 80 % без конденсации влаги;
  • допустимая степень загрязнения 1 (несущественные загрязнения или наличие только сухих непроводящих загрязнений);
  • атмосферное давление от 84,0 до 106,7 кПа.

По устойчивости к синусоидальным вибрациям при эксплуатации прибор соответствует группе исполнения N2 по ГОСТ 61131-2-2012 (частота вибрации от 10 до 55 Гц).

По устойчивости к воздействию атмосферного давления прибор относится к группе Р1 по ГОСТ Р 52931–2008.

По устойчивости к электромагнитным воздействиям прибор соответствует требованиям ГОСТ IEC 61131-2-2012 для оборудования класса А.

По уровню излучаемых радиопомех прибор не превышает допустимые значения уровня радиопомех по ГОСТ IEC 61131-2-2012 для оборудования класса Б.

Прибор устойчив к провалам напряжения питания:

  • для переменного тока в соответствии с требованиями ГОСТ Р 51841–2001 (МЭК 61131-2–2012) – степень жесткости PS2, длительность прерывания полупериода, длительность интервала от 1 с и более;

  • для постоянного тока в соответствии с ГОСТ Р 51841–2001 (МЭК 61131-2–2012) – степень жесткости PS2, длительность прерывания до 10 мс включительно, длительность интервала от 1 с и более.

Меры безопасности

По способу защиты обслуживающего персонала от поражения электрическим током ПРМ-220.Х относится к классу II, а ПРМ-24.Х к классу III ГОСТ IEC 61131-2-2012.

Во время эксплуатации и технического обслуживания прибора следует соблюдать требования ГОСТ 12.3.019–80, «Правил технической эксплуатации электроустановок потребителей электрической энергии» и «Правил охраны труда при эксплуатации электроустановок».

Во время эксплуатации прибора открытые контакты клеммника находятся под опасным для жизни напряжением. Прибор следует устанавливать в специализированных шкафах, доступных только квалифицированным специалистам.

Любые подключения к прибору и работы по его техническому обслуживанию следует производить только при отключенном питании прибора и подключенных к нему устройств.

Не допускается попадание влаги на контакты выходного разъема и внутренние электроэлементы прибора. Прибор запрещено использовать в агрессивных средах с содержанием в атмосфере кислот, щелочей, масел и т. п.

Монтаж

Установка

Для монтажа прибора следует:

  1. Подготовить на DIN-рейке место для установки прибора с учетом размеров корпуса (см. рисунок).

    Graphic
    Установка прибора
  2. Вставив отвертку в проушину, оттянуть защелку рисунок, 1).

  3. Установить прибор на DIN-рейку в соответствии с в направлении стрелки 1 (рисунок, 2);

  4. Прижать прибор к DIN-рейке в направлении, показанном стрелкой 2. Зафиксировать защелку (см. рисунок, 3).

  5. Смонтировать внешние устройства с помощью ответных клеммников из комплекта поставки.

Graphic
Габаритные размеры

Для демонтажа прибора следует:

  1. Отсоединить клеммы внешних устройств без их демонтажа.

  2. Проделать действия с рисунка в обратном порядке.

Быстрая замена

Конструкция клемм модуля позволяет оперативно заменить прибор без демонтажа подключенных к нему внешних линий связи. Для замены модуля следует:

  1. Обесточить все линии связи, подходящие к модулю, в том числе линии питания.

  2. Отделить от модуля съемные части каждой из клемм с подключенными внешними линиями связи с помощью отвертки или другого подходящего инструмента.

  3. Снять прибор с DIN-рейки, на его место установить другой прибор (аналогичной модификации по питанию) с предварительно удаленными разъемными частями клемм.

  4. К установленному модулю подсоединить разъемные части клемм с подключенными внешними линиями связи.

Подключение

Рекомендации по подключению

Для обеспечения надежности электрических соединений рекомендуется использовать медные многожильные кабели, концы которых перед подключением следует тщательно зачистить и залудить, или использовать кабельные наконечники. Жилы кабелей следует зачищать так, чтобы их оголенные концы после подключения к прибору не выступали за пределы клеммника. Сечение жил кабелей должно быть не более 2,5 мм2.

Общие требования к линиям соединений:

  • во время прокладки кабелей следует выделить линии связи, соединяющие прибор с датчиком, в самостоятельную трассу (или несколько трасс), располагая ее (или их) отдельно от силовых кабелей, а также от кабелей, создающих высокочастотные и импульсные помехи.
  • для защиты входов прибора от влияния промышленных электромагнитных помех линии связи прибора с датчиком следует экранировать. В качестве экранов могут быть использованы как специальные кабели с экранирующими оплетками, так и заземленные стальные трубы подходящего диаметра. Экраны кабелей с экранирующими оплетками следует подключить к контакту функционального заземления (FE) в щите управления.
  • фильтры сетевых помех следует устанавливать в линиях питания прибора.
  • искрогасящие фильтры следует устанавливать в линиях коммутации силового оборудования.

При монтаже системы, в которой работает прибор, следует учитывать правила организации эффективного заземления:

  • все заземляющие линии прокладывать по схеме «звезда» с обеспечением хорошего контакта с заземляемым элементом;
  • все заземляющие цепи должны быть выполнены проводами наибольшего сечения;
  • запрещается объединять клемму прибора с маркировкой «Общая» и заземляющие линии.

Порядок подключения

Опасность
После распаковки прибора следует убедиться, что во время транспортировки прибор не был поврежден.

В случае изменения температуры окружающего воздуха с низкой на высокую в приборе возможно образование конденсата. Чтобы избежать выхода прибора из строя, рекомендуется выдержать его в выключенном состоянии в помещении с температурой, соответствующей рабочему диапазону, не менее часа.

Внимание

Перед подачей постоянного питания 24 В на модуль следует проверить правильность подключения напряжения питания и его уровень:

  • если напряжение ниже 19 В, то модуль прекращает функционировать, но не выходит из строя, поэтому не гарантируется его работа;

  • если напряжение выше 30 В, то модуль может выйти из строя;

  • в случае неверного подключения к источнику постоянного напряжения (перепутана полярность) модуль не включится.

Для подключения модуля следует:

  1. Подключить модуль к головному устройству с помощью кабеля из комплекта поставки.

  2. Подключить источник питания к модулю, питание не подавать.

  3. Подготовить кабели для соединения модуля с ИМ, датчиками и источником питания.

  4. Подключить линии связи:
    • «модуль - исполнительные механизмы»;

    • датчиков к входам модуля.

  5. Подать питание на модуль и головное устройство.

Помехи и методы их подавления

На работу прибора могут оказывать влияние внешние помехи:

  • возникающие под действием электромагнитных полей (электромагнитные помехи), наводимые на прибор и на линии связи с внешним оборудованием;
  • в питающей сети.

Для уменьшения влияния электромагнитных помех рекомендуется:

  • надежно экранировать сигнальные линии, экраны следует электрически изолировать от внешнего оборудования на протяжении всей трассы и подсоединить к заземленному контакту щита управления;
  • установить прибор в металлическом шкафу, внутри которого не должно быть никакого силового оборудования, корпус шкафа должен быть заземлен.

Для уменьшения помех, возникающих в питающей сети рекомендуется:

  • монтируя систему, в которой работает прибор, следует учитывать правила организации эффективного заземления и прокладки заземленных экранов:
    • все заземляющие линии и экраны прокладывать по схеме «звезда» с обеспечением хорошего контакта с заземляемым элементом;
    • заземляющие цепи должны быть выполнены кабелями наибольшего сечения.

Для уменьшения уровня помех можно применять программные фильтры, которые настраиваются индивидуально для каждого входа. Программные фильтры доступны для дискретных входов с номинальным напряжением 24 В.

Схемы гальванической развязки

Graphic
Схемы гальванической развязки (1) 220 В и (2) 24 В модификаций

Назначение контактов клеммника

Graphic
Назначение контактов клеммника прибора с питанием 24 В
Назначение контактов клеммника прибора с питанием 24 В
Номер контактаНазначение контактаНомер контактаНазначение контакта
1Клемма «-» для питания 24 В23Клемма выхода 1
2Клемма «+» для питания 24 В24Общая клемма выхода 1
3Общая клемма входов 1...425Клемма выхода 2
4Клемма входа 126Общая клемма выхода 2
5Клемма входа 227Клемма выхода 3
6Клемма входа 328Общая клемма выхода 3
7Клемма входа 429Клемма выхода 4
8Общая клемма входов 5...830Общая клемма выхода 4
9Клемма входа 531Клемма выхода 5
10Клемма входа 632Общая клемма выхода 5
11Клемма входа 733Клемма выхода 6
12Клемма входа 834Общая клемма выхода 6
13Общая клемма входов 9...1235Клемма выхода 7
14Клемма входа 936Общая клемма выхода 7
15Клемма входа 1037Клемма выхода 8
16Клемма входа 1138Общая клемма выхода 8
17Клемма входа 1239Клемма выхода 9
18Общая клемма входов 13...1640Общая клемма выхода 9
19Клемма входа 1341Клемма выхода 10
20Клемма входа 1442Общая клемма выхода 10
21Клемма входа 1543Клемма выхода 11
22Клемма входа 1644Общая клемма выхода 11
45Клемма выхода 12
46Общая клемма выхода 12
Graphic
Назначение контактов клеммника прибора с питанием 230 В
Назначение контактов клеммника прибора с питанием 230 В
Номер контактаНазначение контактаНомер контактаНазначение контакта
1Клемма питания 230 В23Клемма выхода 1
2Клемма питания 230 В24Общая клемма выхода 1
3Общая клемма входов 1...425Клемма выхода 2
4Клемма входа 126Общая клемма выхода 2
5Клемма входа 227Клемма выхода 3
6Клемма входа 328Общая клемма выхода 3
7Клемма входа 429Клемма выхода 4
8Общая клемма входов 5...830Общая клемма выхода 4
9Клемма входа 531Клемма выхода 5
10Клемма входа 632Общая клемма выхода 5
11Клемма входа 733Клемма выхода 6
12Клемма входа 834Общая клемма выхода 6
13Общая клемма входов 9...1235Клемма выхода 7
14Клемма входа 936Общая клемма выхода 7
15Клемма входа 1037Клемма выхода 8
16Клемма входа 1138Общая клемма выхода 8
17Клемма входа 1239Клемма выхода 9
18Общая клемма входов 13...1640Общая клемма выхода 9
19Клемма входа 1341Клемма выхода 10
20Клемма входа 1442Общая клемма выхода 10
21Клемма входа 1543Клемма выхода 11
22Клемма входа 1644Общая клемма выхода 11
45Клемма выхода 12
46Общая клемма выхода 12

Подключение модуля к головному устройству

Внимание
Подключение модулей к головному устройству и подключение устройств к модулям следует выполнять только при отключенном питании всех устройств.

Модуль подключается к головному устройству с помощью шлейфа длиной 4,5 см из комплекта поставки. После подключения шлейф следует поместить в специальное углубление под крышкой модуля (рисунок, стрелка 1), тем самым позволяя придвинуть модуль вплотную к головному устройству (рисунок, стрелка 2).

Graphic
Укладка шлейфа в углубление

Модули подключаются только последовательно. Ближайший модуль к головному устройству всегда будет располагаться в слоте 1. Подключение модуля в слот 2 без модуля в слоте 1 невозможно.

Примечание
При эксплуатации крышки для подключения шлейфов должны быть закрыты.
Graphic
Расположение модулей расширения на шине

Каждый модуль запитывается независимо от головного устройства. Допускается подключение модулей с различным напряжением питания к одному головному устройству в различных комбинациях.

Например, к ПР200-24.х.х.х можно подключать одновременно ПРМ-220.х и ПРМ-24.х и, аналогично, к ПР200-220.х.х.х можно подключить ПРМ-24.х и ПРМ-220.х

В случае подключения двух модулей обмен данными между головным устройством и модулем в слоте 2 осуществляется через модуль в слоте 1. Если модуль в слоте 1 обесточить, то модуль в слоте 2 перестанет принимать команды от устройства.

Подключение датчиков

Общие сведения

Опасность
Монтаж должен производить только обученный специалист с допуском на проведение электромонтажных работ. Для монтажа следует использовать индивидуальные защитные средства и специальный электромонтажный инструмент с изолирующими свойствами до 1000 В.
Внимание
Для защиты входных цепей прибора от возможного пробоя зарядами статического электричества, накопленного на линиях связи «прибор – датчик», перед подключением к клеммнику прибора их жилы следует на 1–2 секунды соединить с винтом функционального заземления (FE) щита.

Во время проверки исправности датчика и линии связи следует отключить прибор от сети питания. Во избежание выхода прибора из строя при «прозвонке» связей следует использовать измерительные устройства с напряжением питания не более 4,5 В. Для более высоких напряжений питания этих устройств отключение датчика от прибора обязательно.

Подключение датчиков с дискретным выходом

Graphic
Схема подключения дискретных датчиков с питанием 24 В
Graphic
Схема подключения дискретных датчиков с питанием 230 В

Схема подключения дискретных датчиков с транзисторным выходом

В случае подключения дискретных датчиков можно использовать один и тот же блок питания для питания двух групп входов. Внутри одной группы можно одновременно использовать датчики с выходом типа «сухой контакт» и с выходным транзистором.

Graphic
Схема подключения датчиков с выходным транзистором p-n-p-типа
Graphic
Схема подключения датчиков с выходным транзистором n-p-n-типа

Подключение нагрузки к ВЭ

Подключение нагрузки к ВЭ типа «Р»

Graphic
Схема подключения нагрузки к ВЭ типа «Р»

Эксплуатация

Принцип работы

Модуль является пассивным устройством, которое работает по внутренней шине с головным устройством и не может функционировать как самостоятельная единица. Для подключения модуля к головному программируемому реле используется кабель из комплекта поставки.

Индикация

На лицевой панели прибора расположены элементы индикации – 30 светодиодов (см. рисунок ниже):

Graphic
Лицевая панель прибора (крышки отсеков подключения условно не показаны)
Назначение светодиодов

Светодиод

Состояние

Цвет

Значение

Питание

Светится

Зеленый

Наличие питания на модуле

Авария

Мигает

Красный

Отсутствие связи с головным устройством

В данной позиции установлен прибор модификации, не соответствующей, указанной в проекте OwenLogic
Версия встроенного ПО модуля не соответствует версии встроенного ПО головного устройства

DI 1…16

Светится

Желтый

Активное состояние соответствующего входа

DO 1…12

Светится

Желтый

Активное состояние соответствующего выхода

Под левой крышкой на лицевой панели расположен разъем «МОДУЛИ» (тип MIMS-10-TR-U) — для подключения к головному устройству или к первому модулю.

Под правой крышкой на лицевой панели расположен разъем «МОДУЛИ» (тип MIMS-10-TR-U) — для подключения второго модуля.

Настройка

Общие сведения

Высокоскоростная внутренняя шина, соединяющая головное устройство и модуль, обеспечивает быстродействие входов/выходов модулей на одинаковом уровне со встроенными входами/выходами головного устройства. Это позволяет записывать и считывать значения входов/выходов каждый цикл пользовательской программы, выполняемой в головном устройстве.

Настройка модуля производится в OwenLogic.

Добавление модулей в

Для подключения модуля в OwenLogic следует:

  1. Создать новый проект в среде OwenLogic или открыть уже существующий проект с головным устройством, поддерживающим подключение модулей.

  2. Выбрать пункт меню Прибор/Настройка прибора. Далее нажатием правой кнопки мыши по пункту меню «Модули расширения» вызвать меню. Выбрать модуль из списка (см. рисунок ).

    Graphic
    Подключение модуля в OwenLogic

Первый добавленный модуль автоматически занимает первый слот, следующий модуль — второй слот. Номер слота определяет физическое расположение модуля относительно головного устройства (см. рисунок).

Graphic
ПР200 с подключенными модулями

Удалить модуль из проекта OwenLogic можно только после отсоединения всех связей, подключенных к его входам и выходам. Допускается смена позиции модуля в проекте в любое время через меню настройки модуля. Допускается запись пользовательской программы в головное устройство без подключения модулей расширения.

После добавления модуля на холсте появятся дополнительные входы I1I16 и выходы Q1Q12. В скобках указывается номер позиции установленного модуля. Для примера на рисунке входы I6(1)...I8(1) относятся к модулю, установленному в первой позиции, входы I1(2) и I2(2) относятся к модулю, установленному во второй позиции.

Graphic
Настройка входов ПРМ

Для опроса входов или задания состояния выходов следует создать переменные соответствующего типа и связать с ними входы и выходы модуля. Если необходимо работать с состояниями входов и выходов модуля по сети, то их следует привязать к сетевым переменным.

Конфигурирование модулей в

Для каждого модуля предусмотрен параметр «Статус», к которому можно привязать булевскую переменную, и использовать ее в пользовательской программе.

Если связь с модулем установлена или модификация модуля соответствует указанной в проекте OwenLogic, то параметр Статус принимает значение 1.

Если связь с модулем потеряна или позиция установленной модификации не соответствует, указанной в проекте OwenLogic, то параметр Статус принимает значение 0.

Для каждого ВЭ модуля могут быть настроены безопасные состояния. Данная настройка находится в меню Прибор/Настройка прибора/Выходы, где для каждого выхода каждого модуля может быть установлено состояние выхода в случае потери связи с головным устройством. Это позволяет повысить безопасность системы в нештатных ситуациях.

Для модулей ПРМ-24.6 доступны настройки времени фильтрации дискретного входа, расположенные в меню Настройка прибора/Входы.

Для каждого дискретного входа может быть включено программное подавление дребезга контактов. Программное подавление задается параметром Фильтр дребезга контактов, мс (допустимые значения от 0 до 255 мс) в панели свойств дискретного входа. Данный параметр указывает в течение какого времени сигнал будет отсекаться прежде, чем изменится состояние на выходе фильтра.

Внимание
Для работы с сигналами частотой более 90 Гц при их скважности 50 % и менее не следует включать подавление дребезга контактов, т. к. полезный сигнал будет принят за дребезг и пропущен.

Обновление встроенного ПО

Для обновления встроенного ПО модуля следует:

  1. Подключить к головному устройству модуль.

  2. Далее подключить их к ПК. Подать питание на головное устройство и модуль.

  3. В OwenLogic выполнить Прибор → Обновить встроенное ПО:

    • выбрать вкладку Модули, указать номер слота и модификацию модуля;

    • нажать кнопку Выбрать.

  4. Во время обновления следить за непрерывностью подачи питания на головное устройство и модули.

Техническое обслуживание

Во время выполнения работ по техническому обслуживанию прибора следует соблюдать требования безопасности из раздела.

Техническое обслуживание прибора проводится не реже одного раза в 6 месяцев и включает следующие процедуры:

  • проверка крепления прибора;
  • проверка винтовых соединений;
  • удаление пыли и грязи с клеммника прибора.

Маркировка

На корпус прибора нанесены:

  • условное обозначение прибора;
  • товарный знак предприятия-изготовителя;

  • степень защиты корпуса по ГОСТ 14254;
  • род питающего тока и напряжение питания;
  • QR-код

  • потребляемая мощность;
  • маркировка класса защиты от поражения электрическим током по ГОСТ IEC 61131-2-2012;
  • единый знак обращения продукции на рынке Евразийского экономического союза;
  • страна-изготовитель;
  • заводской номер прибора, месяц и год изготовления.

На потребительскую тару нанесены:

  • наименование и условное обозначение прибора;
  • товарный знак предприятия-изготовителя;

  • почтовый адрес офиса изготовителя;

  • штрих-код;

  • дата упаковки;

  • единый знак обращения продукции на рынке Евразийского экономического союза;
  • страна-изготовитель;
  • заводской номер;
  • дата упаковки.

Упаковка

Упаковка прибора производится в соответствии с ГОСТ 23088-80 в потребительскую тару, выполненную из коробочного картона по ГОСТ 7933-89.

Упаковка прибора при пересылке почтой производится по ГОСТ 9181-74.

Транспортирование и хранение

Модули следует транспортировать в закрытом транспорте при температуре от минус 25 до плюс 55 °С, атмосферном давлении от 84,0 до 106,7 кПа и относительной влажности не более 95 % без конденсации влаги. При транспортировании должны соблюдаться меры защиты от ударов и вибраций.

Модули следует перевозить в транспортной таре поштучно или в контейнерах.

Хранить модули следует на стеллажах в индивидуальной упаковке или транспортной таре в закрытых помещениях при температуре воздуха от минус 25 до плюс 55 °С и относительной влажности воздуха до 95 %. В воздухе помещений должны отсутствовать кислотные, щелочные и другие агрессивные примеси.

Комплектность

НаименованиеКоличество
Модуль ПРМ1 шт.
Паспорт и Гарантийный талон1 экз.
Руководство по эксплуатации1 экз.
Кабель для подключения модуля1 шт.
Комплект клеммных соединений 1 к-т
Примечание
Изготовитель оставляет за собой право внесения дополнений в комплектность прибора.

Гарантийные обязательства

Изготовитель гарантирует соответствие прибора требованиям ТУ при соблюдении условий эксплуатации, транспортирования, хранения и монтажа.

Гарантийный срок эксплуатации – 24 месяца со дня продажи.

В случае выхода прибора из строя в течение гарантийного срока при соблюдении условий эксплуатации, транспортирования, хранения и монтажа предприятие-изготовитель обязуется осуществить его бесплатный ремонт или замену.

Порядок передачи прибора в ремонт содержится в паспорте и в гарантийном талоне.

Карта регистров ПРМ-6

При подключении модуля к головному устройству, работающему в режиме Slave, по сетевому интерфейсу доступны регистры модуля для удаленного управления.

Список поддерживаемых функций

Название функции

Код согласно спецификации Modbus

Описание функции

MODBUS_READ_HOLDING_REGISTERS

3 (0x03)

Чтение значений из одного или нескольких регистров хранения

MODBUS_WRITE_MULTIPLE_REGISTERS

16 (0x10)

Запись значений в несколько регистров
Форматы данных
Формат данныхКол-во регистровРазмерОписание
Enum Х11 байт

Описывает позицию выбранного параметра из списка доступных

Unsigned 8, Unsigned 1611 байтЦелочисленный беззнаковый формат
Карта регистров ПРМ-6
НаименованиеОписание

Адрес (DEC)

Адрес (HEX)

Кол-во регистров

Функция чтения

Функция записи

Тип данных

ПРМ-220.6
Слот 1

Статус

ПРМ-220.6, Слот 1

7348

0x1CB4

1

3

-

Enum 2:

0 - откл,

1 - подкл

Состояние подключения

ПРМ-220.6, Слот 1

7349

0x1CB5

1

3

-

Enum 6:

1 - Инициализация,

2 - Обнаружен,

3 - Несоответствие типа модуля,

4 - Несоответствие версии ПО,

5 - В работе

Изменить состояние

Дискретные выходы

7333

0x1CA5

1

3

16

Unsigned 16

Выход 1

Безопасное состояние

7308

0x1C8C

1

3

16

Enum 3:

0 - разомкнуто

1 - замкнуто

2 - без изменений

Выход 2

Безопасное состояние

7309

0x1C8D

1

3

16

Enum 3:

0 - разомкнуто

1 - замкнуто

2 - без изменений

Выход 3

Безопасное состояние

7310

0x1C8E

1

3

16

Enum 3:

0 - разомкнуто

1 - замкнуто

2 - без изменений

Выход 4

Безопасное состояние

7311

0x1C8F

1

3

16

Enum 3:

0 - разомкнуто

1 - замкнуто

2 - без изменений

Выход 5

Безопасное состояние

7312

0x1C90

1

3

16

Enum 3:

0 - разомкнуто

1 - замкнуто

2 - без изменений

Выход 6

Безопасное состояние

7313

0x1C91

1

3

16

Enum 3:

0 - разомкнуто

1 - замкнуто

2 - без изменений

Выход 7

Безопасное состояние

7314

0x1C92

1

3

16

Enum 3:

0 - разомкнуто

1 - замкнуто

2 - без изменений

Выход 8

Безопасное состояние

7315

0x1C93

1

3

16

Enum 3:

0 - разомкнуто

1 - замкнуто

2 - без изменений

Выход 9

Безопасное состояние

7316

0x1C94

1

3

16

Enum 3:

0 - разомкнуто

1 - замкнуто

2 - без изменений

Выход 10

Безопасное состояние

7317

0x1C95

1

3

16

Enum 3:

0 - разомкнуто

1 - замкнуто

2 - без изменений

Выход 11

Безопасное состояние

7318

0x1C96

1

3

16

Enum 3:

0 - разомкнуто

1 - замкнуто

2 - без изменений

Выход 12

Безопасное состояние

7319

0x1C97

1

3

16

Enum 3:

0 - разомкнуто

1 - замкнуто

2 - без изменений

Состояние

Дискретные входы

7332

0x1CA4

1

3

-

Unsigned 16

Слот 2

Статус

ПРМ-220.6, Слот 2

7398

0x1CE6

1

3

-

Enum 2:

0 - откл,

1 - подкл

Состояние подключения

ПРМ-220.6, Слот 2

7399

0x1CE7

1

3

-

Enum 6:

1 - Инициализация,

2 - Обнаружен,

3 - Несоответствие типа модуля,

4 - Несоответствие версии ПО,

5 - В работе

Изменить состояние

Дискретные выходы

7383

0x1CD7

1

3

16

Unsigned 16

Выход 1

Безопасное состояние

7358

0x1CBE

1

3

16

Enum 3:

0 - разомкнуто

1 - замкнуто

2 - без изменений

Выход 2

Безопасное состояние

7359

0x1CBF

1

3

16

Enum 3:

0 - разомкнуто

1 - замкнуто

2 - без изменений

Выход 3

Безопасное состояние

7360

0x1CC0

1

3

16

Enum 3:

0 - разомкнуто

1 - замкнуто

2 - без изменений

Выход 4

Безопасное состояние

7361

0x1CC1

1

3

16

Enum 3:

0 - разомкнуто

1 - замкнуто

2 - без изменений

Выход 5

Безопасное состояние

7362

0x1CC2

1

3

16

Enum 3:

0 - разомкнуто

1 - замкнуто

2 - без изменений

Выход 6

Безопасное состояние

7363

0x1CC3

1

3

16

Enum 3:

0 - разомкнуто

1 - замкнуто

2 - без изменений

Выход 7

Безопасное состояние

7364

0x1CC4

1

3

16

Enum 3:

0 - разомкнуто

1 - замкнуто

2 - без изменений

Выход 8

Безопасное состояние

7365

0x1CC5

1

3

16

Enum 3:

0 - разомкнуто

1 - замкнуто

2 - без изменений

Выход 9

Безопасное состояние

7366

0x1CC6

1

3

16

Enum 3:

0 - разомкнуто

1 - замкнуто

2 - без изменений

Выход 10

Безопасное состояние

7367

0x1CC7

1

3

16

Enum 3:

0 - разомкнуто

1 - замкнуто

2 - без изменений

Выход 11

Безопасное состояние

7368

0x1CC8

1

3

16

Enum 3:

0 - разомкнуто

1 - замкнуто

2 - без изменений

Выход 12

Безопасное состояние

7369

0x1CC9

1

3

16

Enum 3:

0 - разомкнуто

1 - замкнуто

2 - без изменений

Состояние

Дискретные входы

7382

0x1CD6

1

3

-

Unsigned 16

ПРМ-24.5
Слот 1

Статус

ПРМ-24.6, Слот 1

7248

0x1C50

1

3

-

Enum 2:

0 - откл,

1 - подкл

Состояние подключения

ПРМ-24.6, Слот 1

7249

0x1C51

1

3

-

Enum 6:

1 - Инициализация,

2 - Обнаружен,

3 - Несоответствие типа модуля,

4 - Несоответствие версии ПО,

5 - В работе

Состояние

Дискретные входы

7232

0x1C40

1

3

-

Unsigned 16

Вход 1

Фильтр антидребезга

7200

0x1C20

1

3

16

Unsigned 8

Вход 2

Фильтр антидребезга

7201

0x1C21

1

3

16

Unsigned 8

Вход 3

Фильтр антидребезга

7202

0x1C22

1

3

16

Unsigned 8

Вход 4

Фильтр антидребезга

7203

0x1C23

1

3

16

Unsigned 8

Вход 5

Фильтр антидребезга

7204

0x1C24

1

3

16

Unsigned 8

Вход 6

Фильтр антидребезга

7205

0x1C25

1

3

16

Unsigned 8

Вход 7

Фильтр антидребезга

7206

0x1C26

1

3

16

Unsigned 8

Вход 8

Фильтр антидребезга

7207

0x1C27

1

3

16

Unsigned 8

Вход 9

Фильтр антидребезга

7208

0x1C28

1

3

16

Unsigned 8

Вход 10

Фильтр антидребезга

7209

0x1C29

1

3

16

Unsigned 8

Вход 11

Фильтр антидребезга

7210

0x1C2A

1

3

16

Unsigned 8

Вход 12

Фильтр антидребезга

7211

0x1C2B

1

3

16

Unsigned 8

Вход 13

Фильтр антидребезга

7212

0x1C2C

1

3

16

Unsigned 8

Вход 14

Фильтр антидребезга

7213

0x1C2D

1

3

16

Unsigned 8

Вход 15

Фильтр антидребезга

7214

0x1C2E

1

3

16

Unsigned 8

Вход 16

Фильтр антидребезга

7215

0x1C2F

1

3

16

Unsigned 8

Изменить состояние

Дискретные выходы

7233

0x1C41

1

3

16

Unsigned 16

Выход 1

Безопасное состояние

7216

0x1C30

1

3

16

Enum 3:

0 - разомкнуто

1 - замкнуто

2 - без изменений

Выход 2

Безопасное состояние

7217

0x1C31

1

3

16

Enum 3:

0 - разомкнуто

1 - замкнуто

2 - без изменений

Выход 3

Безопасное состояние

7218

0x1C32

1

3

16

Enum 3:

0 - разомкнуто

1 - замкнуто

2 - без изменений

Выход 4

Безопасное состояние

7219

0x1C33

1

3

16

Enum 3:

0 - разомкнуто

1 - замкнуто

2 - без изменений

Выход 5

Безопасное состояние

7220

0x1C34

1

3

16

Enum 3:

0 - разомкнуто

1 - замкнуто

2 - без изменений

Выход 6

Безопасное состояние

7221

0x1C35

1

3

16

Enum 3:

0 - разомкнуто

1 - замкнуто

2 - без изменений

Выход 7

Безопасное состояние

7222

0x1C36

1

3

16

Enum 3:

0 - разомкнуто

1 - замкнуто

2 - без изменений

Выход 8

Безопасное состояние

7223

0x1C37

1

3

16

Enum 3:

0 - разомкнуто

1 - замкнуто

2 - без изменений

Выход 9

Безопасное состояние

7224

0x1C38

1

3

16

Enum 3:

0 - разомкнуто

1 - замкнуто

2 - без изменений

Выход 10

Безопасное состояние

7225

0x1C39

1

3

16

Enum 3:

0 - разомкнуто

1 - замкнуто

2 - без изменений

Выход 11

Безопасное состояние

7226

0x1C3A

1

3

16

Enum 3:

0 - разомкнуто

1 - замкнуто

2 - без изменений

Выход 12

Безопасное состояние

7227

0x1C3B

1

3

16

Enum 3:

0 - разомкнуто

1 - замкнуто

2 - без изменений

Слот 2

Статус

ПРМ-24.6, Слот 2

7298

0x1C82

1

3

-

Enum 2:

0 - откл,

1 - подкл

Состояние подключения

ПРМ-24.6, Слот 2

7299

0x1C83

1

3

-

Enum 6:

1 - Инициализация,

2 - Обнаружен,

3 - Несоответствие типа модуля,

4 - Несоответствие версии ПО,

5 - В работе

Состояние

Дискретные входы

7282

0x1C72

1

3

-

Unsigned 16

Вход 1

Фильтр антидребезга

7250

0x1C52

1

3

16

Unsigned 8

Вход 2

Фильтр антидребезга

7251

0x1C53

1

3

16

Unsigned 8

Вход 3

Фильтр антидребезга

7252

0x1C54

1

3

16

Unsigned 8

Вход 4

Фильтр антидребезга

7253

0x1C55

1

3

16

Unsigned 8

Вход 5

Фильтр антидребезга

7254

0x1C56

1

3

16

Unsigned 8

Вход 6

Фильтр антидребезга

7255

0x1C57

1

3

16

Unsigned 8

Вход 7

Фильтр антидребезга

7256

0x1C58

1

3

16

Unsigned 8

Вход 8

Фильтр антидребезга

7257

0x1C59

1

3

16

Unsigned 8

Вход 9

Фильтр антидребезга

7258

0x1C5A

1

3

16

Unsigned 8

Вход 10

Фильтр антидребезга

7259

0x1C5B

1

3

16

Unsigned 8

Вход 11

Фильтр антидребезга

7260

0x1C5C

1

3

16

Unsigned 8

Вход 12

Фильтр антидребезга

7261

0x1C5D

1

3

16

Unsigned 8

Вход 13

Фильтр антидребезга

7262

0x1C5E

1

3

16

Unsigned 8

Вход 14

Фильтр антидребезга

7263

0x1C5F

1

3

16

Unsigned 8

Вход 15

Фильтр антидребезга

7264

0x1C60

1

3

16

Unsigned 8

Вход 16

Фильтр антидребезга

7265

0x1C61

1

3

16

Unsigned 8

Изменить состояние

Дискретные выходы

7283

0x1C73

1

3

16

Unsigned 16

Выход 1

Безопасное состояние

7266

0x1C62

1

3

16

Enum 3:

0 - разомкнуто

1 - замкнуто

2 - без изменений

Выход 2

Безопасное состояние

7267

0x1C63

1

3

16

Enum 3:

0 - разомкнуто

1 - замкнуто

2 - без изменений

Выход 3

Безопасное состояние

7268

0x1C64

1

3

16

Enum 3:

0 - разомкнуто

1 - замкнуто

2 - без изменений

Выход 4

Безопасное состояние

7269

0x1C65

1

3

16

Enum 3:

0 - разомкнуто

1 - замкнуто

2 - без изменений

Выход 5

Безопасное состояние

7270

0x1C66

1

3

16

Enum 3:

0 - разомкнуто

1 - замкнуто

2 - без изменений

Выход 6

Безопасное состояние

7271

0x1C67

1

3

16

Enum 3:

0 - разомкнуто

1 - замкнуто

2 - без изменений

Выход 7

Безопасное состояние

7272

0x1C68

1

3

16

Enum 3:

0 - разомкнуто

1 - замкнуто

2 - без изменений

Выход 8

Безопасное состояние

7273

0x1C69

1

3

16

Enum 3:

0 - разомкнуто

1 - замкнуто

2 - без изменений

Выход 9

Безопасное состояние

7274

0x1C6A

1

3

16

Enum 3:

0 - разомкнуто

1 - замкнуто

2 - без изменений

Выход 10

Безопасное состояние

7275

0x1C6B

1

3

16

Enum 3:

0 - разомкнуто

1 - замкнуто

2 - без изменений

Выход 11

Безопасное состояние

7276

0x1C6C

1

3

16

Enum 3:

0 - разомкнуто

1 - замкнуто

2 - без изменений

Выход 12

Безопасное состояние

7277

0x1C6D

1

3

16

Enum 3:

0 - разомкнуто

1 - замкнуто

2 - без изменений

Предупреждающие сообщения

В данном руководстве применяются следующие предупреждения:

Опасность

Ключевое слово ОПАСНОСТЬ сообщает о непосредственной угрозе опасной ситуации, которая приведет к смерти или серьезной травме, если ее не предотвратить.

Внимание

Ключевое слово ВНИМАНИЕ сообщает о потенциально опасной ситуации, которая может привести к небольшим травмам.

Предупреждение

Ключевое слово ПРЕДУПРЕЖДЕНИЕ сообщает о потенциально опасной ситуации , которая может привести к повреждению имущества.

Примечание

Ключевое слово ПРИМЕЧАНИЕ обращает внимание на полезные советы и рекомендации, а также информацию для эффективной и безаварийной работы оборудования.

Ограничение ответственности

Ни при каких обстоятельствах ООО «Производственное Объединение ОВЕН» и его контрагенты не будут нести юридическую ответственность и не будут признавать за собой какие-либо обязательства в связи с любым ущербом, возникшим в результате установки или использования прибора с нарушением действующей нормативно-технической документации.